Prodej bytu 2+1 s lodžií, 52 m², Uherské Hradiště - Štěpnick
- [4.11. 2025]Smazat/ Upravit/ Topovat



























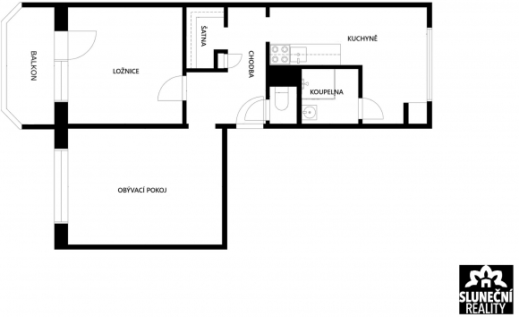
Nabízíme k prodeji byt o dispozici 2+1 s podlahovou plochou 52 m² + lodžie a vlastní sklepní kóje, který se nachází v oblíbené lokalitě na ulici Štěpnická v Uherském Hradišti. Bytový dům je po revitalizaci a je situován v klidné části města s výbornou dostupností občanské vybavenosti. Byt se nachází ve 2.NP a je vybaven starší kuchyňskou linkou. V chodbě se nachází prostorná šatna, která poskytuje dostatek úložného prostoru. K bytu náleží vlastní komora umístěná v mezipatře a možnost využívat společnou kolárnu v suterénu domu. Byt je vhodný jak k vlastnímu bydlení, tak i jako investice k následnému pronájmu. Pro více informací nebo domluvu prohlídky nás kontaktujte telefonicky či e-mailem. Prohlídky jsou možné po předchozí domluvě.
|
| |||||||||||||||||||||||||||||||
Kontaktovat inzerenta emailem
Kontaktovat emailem může pouze ověřený uživatel.
Ověření je zdarma.
Vaše telefonní číslo *
Kontaktovat emailem může pouze ověřený uživatel.
Ověření je zdarma.
Vaše telefonní číslo *
Podobné inzeráty
Prodej bytu 3+1, 70 m², Uherské Hradiště, ul. Stará Tenice - [19.12. 2025]Nabízíme k prodeji prostorný byt 3+1 se šatnou, dvěma lodžiemi a sklepem v atraktivní lokalitě Stará Tenice. Byt se nachází ve 3. nadzemním podlaží domu bez výtahu po revitalizaci – nové lodžie, plastová okna, částečně vyměněné rozvody a zateplená fa ...
4 750 000 Kč
Uherské Hradiště
686 01
686 01
38 x
Označit špatný inzerát Chybnou kategorii Ohodnotit uživatele Smazat/Upravit/Topovat
Prodej bytu 2+1 Uh.Hradiště - ul.Rostislavova - [17.12. 2025]Nabízíme k převodu atraktivní družstevní byt 2+1 se soukromým vlastním vstupem do bytu, v dosahu centra Uherského Hradiště - ul. Rostislavova. Byt má výměru 56 m2, nachází se v 1.patře zděného domu a vzhledem k jeho poloze se jedná o velmi žádané byd ...
4 490 000 Kč
Uherské Hradiště
686 01
686 01
143 x
Označit špatný inzerát Chybnou kategorii Ohodnotit uživatele Smazat/Upravit/Topovat
Byt 3+1 na prodej, osobní vlastnictví, centrum UH - [16.12. 2025]Prodej krásného bytu 3+1 v osobním vlastnictví, centrum města Uherské Hradiště, Tř. Maršála Malinovského. Podlahová plocha bytu 58,6m2, byt umístěn v 8. NP z celkových 11. NP, výtah ano, panelový dům po revitalizaci - výtah, zateplení fasády, výměna ...
5 200 000 Kč
Uherské Hradiště
686 01
686 01
153 x
Označit špatný inzerát Chybnou kategorii Ohodnotit uživatele Smazat/Upravit/Topovat
Prodej byt 2+kk se zahrádkou, Uherské Hradiště - [10.12. 2025]Prodáme byt v osobním vlastnictví v Uherském Hradišti, v okrese Uherské Hradiště ve Zlínském kraji v České republice. Jedná se o novostavbu cihlového bytu se zahrádkou v nově postaveném domě. Jde o precizní realizaci stavby a kvalitní standardní vyba ...
6 000 000 Kč
Uherské Hradiště
686 01
686 01
211 x
Označit špatný inzerát Chybnou kategorii Ohodnotit uživatele Smazat/Upravit/Topovat
Prodej, byt 2+1, 62m2, Uherské Hradiště - Jarošov - [8.12. 2025]Nabízíme k prodeji byt 2+1 v osobním vlastnictví, nacházející se v klidném prostředí sídliště v Uherském Hradišti části Jarošov. Tento panelový byt je umístěn na druhém patře čtyřpodlažního domu bez výtahu. Vzhledem k umístění na sídlišti má byt skvě ...
4 000 000 Kč
Uherské Hradiště
686 01
686 01
314 x
Označit špatný inzerát Chybnou kategorii Ohodnotit uživatele Smazat/Upravit/Topovat
Prodej byt OV 1+kk Uherské Hradiště, okr. Uh. Hradiště - [2.12. 2025]Prodáme byt v osobním vlastnictví o velikosti 1+kk, Uherské Hradiště, okr. Uherské Hradiště, Zlínský kraj, ČR. Jedná se o novostavbu cihlového bytu s balkonem v nově postaveném domě. Jde o precizní realizaci stavby a kvalitní standardní vybavení bytu ...
4 000 000 Kč
Uherské Hradiště
686 01
686 01
368 x
Označit špatný inzerát Chybnou kategorii Ohodnotit uživatele Smazat/Upravit/Topovat
Prodej bytu 3+1 Uherské Hradiště - Na rybníku - TOP - [16.12. 2025]Prodej bytu 3+1 v osobním vlastnictví, Uherské Hradiště, ulice Na rybníku.
Nabízíme k prodeji prostorný a světlý byt 3+1 v osobním vlastnictví, který se nachází v pátém patře zrekonstruovaného bytového domu na klidné ulici Na rybníku v Uherském Hrad ...
5 490 000 Kč
Uherské Hradiště
686 01
686 01
611 x
Označit špatný inzerát Chybnou kategorii Ohodnotit uživatele Smazat/Upravit/Topovat
OV 3+1 Staré Město, Uherské Hradiště - TOP - [8.12. 2025]PRODEJ BYTU cihlový OV 3+1 s lodžií v pěkném stavu, Staré Město, ul. Michalská, skvělá poloha v blízkosti centra Uherského Hradiště, centra Starého Města a obchodní zóny.
Celkem 73m2 + lodžie 6m2, 2. podlaží(1.patro), vynikající parkování.
Dispozi ...
5 300 000 Kč
Uherské Hradiště
686 01
686 01
1019 x
Označit špatný inzerát Chybnou kategorii Ohodnotit uživatele Smazat/Upravit/Topovat
Novostavba byt 1kk Zahradky - [18.11. 2025]Prodam byt 1kk v rezidenci Zahradky s terasou. V bytě se nachází vestavná skříň, kuchyně na míru a jídelní stůl. Bez realitky. V případě zájmu o bližší informace mne kontaktujte.
3 999 000 Kč
Uherské Hradiště
686 01
686 01
521 x
Označit špatný inzerát Chybnou kategorii Ohodnotit uživatele Smazat/Upravit/Topovat
Prodej bytu 2kk se zahradou, pergolou a sklepem - [17.11. 2025]Nabízím k prodeji byt 2kk na Sadské Výšině o velikosti 40 m2. K bytu náleží zahrada - taktéž 40 m2 a přímo vedle bytu sklep (i s elektřinou). Pro bližší informace mne prosím kontaktujte. Bez realitky.
5 999 000 Kč
Uherské Hradiště
686 01
686 01
455 x
Označit špatný inzerát Chybnou kategorii Ohodnotit uživatele Smazat/Upravit/Topovat






