Pronájem nebytových prostor (360 m2), Agora Flora, Praha 3 -
- [6.11. 2025]Smazat/ Upravit/ Topovat






Neplatíte provizi RK!
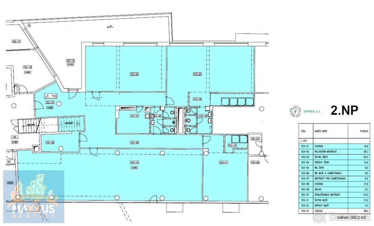
Nabízíme k dlouhodobému pronájmu nebytové prostory o ploše 360 m2 ve 2. nadzemním podlaží objektu AGORA FLORA se vstupem z pasáže, která spojuje ulici Hradeckou a Chrudimskou.
Aktuálně jsou prostory provozovány jako studio HOT YOGA. Prostory jsou zkolaudovány jako „centrum volného času“, takže jsou vhodné pro aktivity podobného zaměření (yoga, pilates, pohybové aktivity, taneční studio, masáže apod.). Případně lze prostory po úpravě a změně užívání využít i jako kanceláře či zdravotnické zařízení. Termín počátku nájemního vztahu dle dohody. Po dohodě se stávajícím nájemcem lze za odstupné převzít zařízení a vybavení studia.
Nájemné bude každoročně indexováno dle aktuálních údajů ČSÚ o průměrném
růstu indexu spotřebitelských cen za předchozí kalendářní rok. Pronajímatel preferuje nájemní smlouvu na dobu určitou, min. 3 roky. Jistota ve výši 2 měsíčních nájmů včetně DPH a 2 záloh na služby.
Technická specifikace nebytového prostoru:
o elektrická energie, přívod teplé a studené vody, centrální vytápění
o vlastní sociální zázemí
o klimatizační systém – topení a chlazení
o vstup do společných prostor na čipy
o světlá výška 2,9 m
Vybavení budovy:
o ostraha 24/7
o EPS, CCTV
o vstup na čipy
o podzemní garáže
Pronajímatel je připraven:
o konzultovat technické požadavky nájemce na úpravu prostor
o realizovat stavební úpravy prostor
o zajistit projednávání požadovaných změn s dotčenými orgány
Nabízíme k dlouhodobému pronájmu nebytové prostory o ploše 360 m2 ve 2. nadzemním podlaží objektu AGORA FLORA se vstupem z pasáže, která spojuje ulici Hradeckou a Chrudimskou.
Aktuálně jsou prostory provozovány jako studio HOT YOGA. Prostory jsou zkolaudovány jako „centrum volného času“, takže jsou vhodné pro aktivity podobného zaměření (yoga, pilates, pohybové aktivity, taneční studio, masáže apod.). Případně lze prostory po úpravě a změně užívání využít i jako kanceláře či zdravotnické zařízení. Termín počátku nájemního vztahu dle dohody. Po dohodě se stávajícím nájemcem lze za odstupné převzít zařízení a vybavení studia.
Nájemné bude každoročně indexováno dle aktuálních údajů ČSÚ o průměrném
růstu indexu spotřebitelských cen za předchozí kalendářní rok. Pronajímatel preferuje nájemní smlouvu na dobu určitou, min. 3 roky. Jistota ve výši 2 měsíčních nájmů včetně DPH a 2 záloh na služby.
Technická specifikace nebytového prostoru:
o elektrická energie, přívod teplé a studené vody, centrální vytápění
o vlastní sociální zázemí
o klimatizační systém – topení a chlazení
o vstup do společných prostor na čipy
o světlá výška 2,9 m
Vybavení budovy:
o ostraha 24/7
o EPS, CCTV
o vstup na čipy
o podzemní garáže
Pronajímatel je připraven:
o konzultovat technické požadavky nájemce na úpravu prostor
o realizovat stavební úpravy prostor
o zajistit projednávání požadovaných změn s dotčenými orgány
|
| |||||||||||||||||||||||||||||||
Kontaktovat inzerenta emailem
Kontaktovat emailem může pouze ověřený uživatel.
Ověření je zdarma.
Vaše telefonní číslo *
Kontaktovat emailem může pouze ověřený uživatel.
Ověření je zdarma.
Vaše telefonní číslo *