Pronájem 1+kk 31m2 + sklep 2m2 nezař. novostavba 4patro výt
- [7.11. 2025]Smazat/ Upravit/ Topovat






























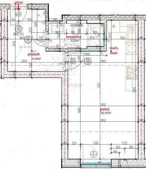
Exkluzivně nabízíme nový světlý byt o velikosti 1+kk o velikosti 31 se sklepem 2m2, v novostavbě rezidenčního bytového komplexu Bydlení Brandýs z roku 2024 v ulici Augustina Lukeše v Brandýse nad Labem.
Byt se nachází ve 4. patře s výtahem, je vybaven novou kuch. linkou s vestavěnými spotřebiči (el. a mikrovlnná trouba, sklokeramická varná deska, myčka, lednice s mrazákem) a pračkou, jinak je byt nezařízený. V koupelně je sprchový kout a WC, na podlahách je plovoucí podlaha nebo dalžba, okna mají el. předokenní žaluzie, v bytě kabel pro internet. K bytu náleží zděný sklep v přízemí domu.
Byt je skvětlý se západní orientací, vytápění bytu je ústřední dálkové, parkování je možné před domem nebo v okolních ulicích.
Byt je volný od 1.1. 2026, ideální pro 1 max 2 osoby bez zvířat. Měsíční nájemné činí 14.500,-Kč+ poplatky 2.300,-Kč + elektřina cca 500,-Kč + internet. Při podpisu smlouvy je nutné uhradit 1. nájem za leden 2026, kauci 40.tis. a provizi RK 14.500,-Kč.
Dopravní dostupnost je výborná- příměstská doprava v rámci PID (7min chůze)- 35min na metro Černý most, 40m na metro Letňany nebo rychlostní komunikace R10 směrem Praha a Mladá Boleslav ( autem do 15min. stanice metra B Černý Most a 20 min metro C Letňany ). Občanská vybavenost do 7 min. chůzí (supermarket Lidl, Kaufland a Tesco, restaurace, kavárny, lékař). Lokalita nabízí i možnost relaxace v blízkých lesích a sportovní vyžití- cyklostezky podél Labe, koupání a vodní sporty (jezera Lhota a Proboštská jezera), workoutová hřiště, houbaření atd.
2300 Třída energetické náročnosti: B - velmi úsporná (dle vyhláška č. 264/2020 Sb.) Cena: 14 500 Kč/měs
Byt se nachází ve 4. patře s výtahem, je vybaven novou kuch. linkou s vestavěnými spotřebiči (el. a mikrovlnná trouba, sklokeramická varná deska, myčka, lednice s mrazákem) a pračkou, jinak je byt nezařízený. V koupelně je sprchový kout a WC, na podlahách je plovoucí podlaha nebo dalžba, okna mají el. předokenní žaluzie, v bytě kabel pro internet. K bytu náleží zděný sklep v přízemí domu.
Byt je skvětlý se západní orientací, vytápění bytu je ústřední dálkové, parkování je možné před domem nebo v okolních ulicích.
Byt je volný od 1.1. 2026, ideální pro 1 max 2 osoby bez zvířat. Měsíční nájemné činí 14.500,-Kč+ poplatky 2.300,-Kč + elektřina cca 500,-Kč + internet. Při podpisu smlouvy je nutné uhradit 1. nájem za leden 2026, kauci 40.tis. a provizi RK 14.500,-Kč.
Dopravní dostupnost je výborná- příměstská doprava v rámci PID (7min chůze)- 35min na metro Černý most, 40m na metro Letňany nebo rychlostní komunikace R10 směrem Praha a Mladá Boleslav ( autem do 15min. stanice metra B Černý Most a 20 min metro C Letňany ). Občanská vybavenost do 7 min. chůzí (supermarket Lidl, Kaufland a Tesco, restaurace, kavárny, lékař). Lokalita nabízí i možnost relaxace v blízkých lesích a sportovní vyžití- cyklostezky podél Labe, koupání a vodní sporty (jezera Lhota a Proboštská jezera), workoutová hřiště, houbaření atd.
2300 Třída energetické náročnosti: B - velmi úsporná (dle vyhláška č. 264/2020 Sb.) Cena: 14 500 Kč/měs
|
| |||||||||||||||||||||||||||||||
Kontaktovat inzerenta emailem
Kontaktovat emailem může pouze ověřený uživatel.
Ověření je zdarma.
Vaše telefonní číslo *
Kontaktovat emailem může pouze ověřený uživatel.
Ověření je zdarma.
Vaše telefonní číslo *









