Prodej bytu 1+kk 42 m², Praha - Smíchov, ev.č. N08526
- [10.11. 2025]Smazat/ Upravit/ Topovat






























Ev.č. N08526
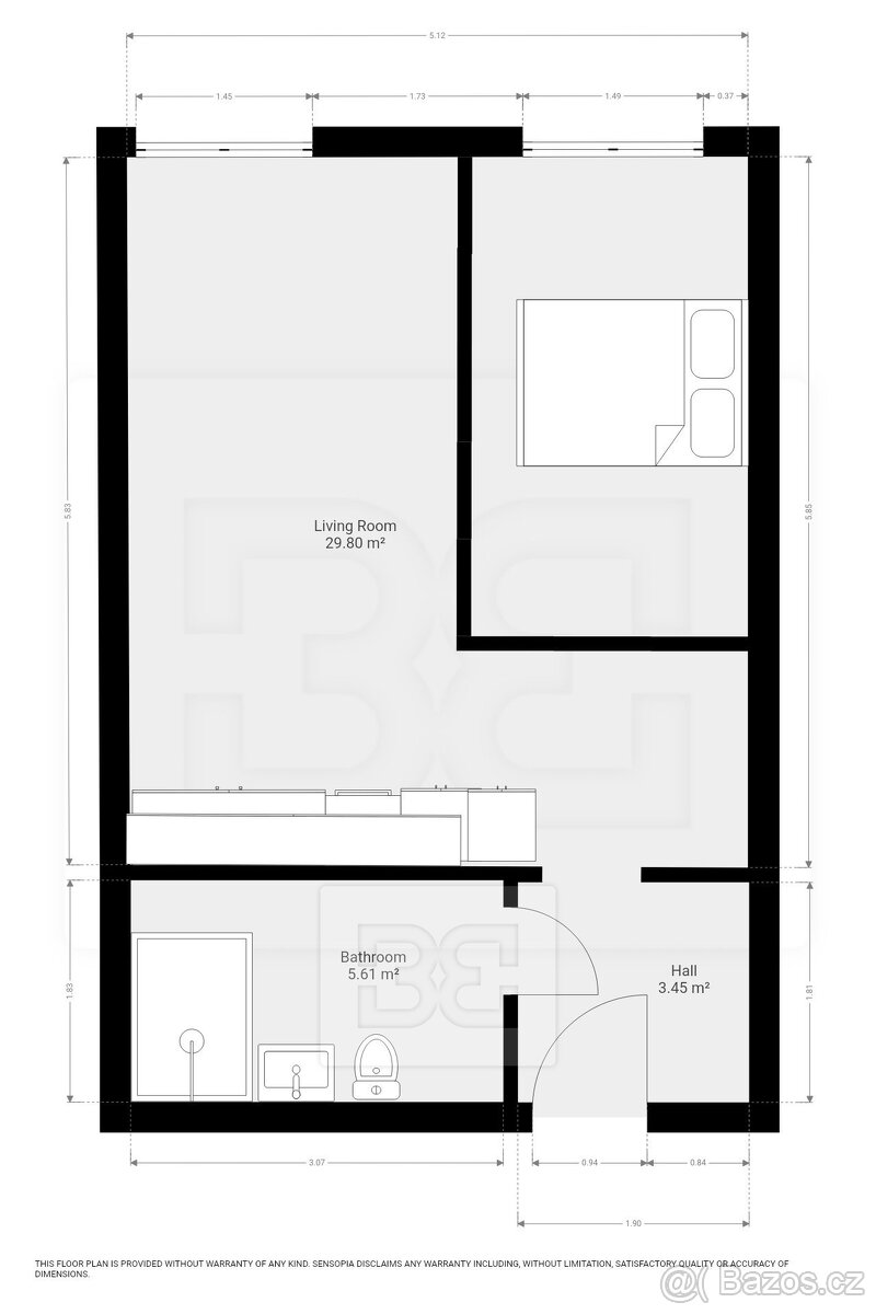
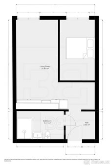
Nabízíme k prodeji prostorný a světlý byt o dispozici 1+kk a užitné ploše 39 m², který se nachází ve 3. nadzemním podlaží moderní novostavby z roku 2024 od renomovaného developera Sekyra Group. Dům se nachází v žádané lokalitě Prahy 5 – Smíchov, v těsné blízkosti metra a plné občanské vybavenosti.
Byt je orientovaný na západ a nabízí příjemnou atmosféru i dostatek denního světla. Dispozice zahrnuje obývací pokoj s moderně vybavenou kuchyňskou linkou (lednice, myčka, trouba, indukční varná deska a digestoř), prostorná s a koupelnu se sprchovým koutem a toaletou. V koupelně najdeme dále i bidetovou sprchu, topný žebřík a prostor na pračku a sušičku. K bytu náleží i sklepní kóje o výměře 1,8m2.
Byt díky šikovné dispozici a dvou oknům se dá rozdělit až na 2+kk.
Lokalita Smíchov nabízí veškeré pohodlí městského života – v docházkové vzdálenosti naleznete kavárny, obchody, lékárny i obchodní centrum. Výborná dopravní dostupnost: pár kroků od metra B (Smíchovské nádraží), tramvajových i autobusových zastávek, s přímým napojením i na vlakové spoje.
Pro volnočasové aktivity je k dispozici oblíbená náplavka či nedaleké Prokopské údolí.
V případě zájmu Vám rád pošlu odkaz na virtuální prohlídku, abyste měli úplnou představu o nabízené nemovitosti (360C prohlídka s možností orientace ve videu dle vašich představ).
En. náročnost b.: B - Velmi úsporná (58 kWh/m2 za rok)
Cena: včetně provize a právního servisu, včetně DPH, včetně provize, včetně právního servisu.
Nabízíme k prodeji prostorný a světlý byt o dispozici 1+kk a užitné ploše 39 m², který se nachází ve 3. nadzemním podlaží moderní novostavby z roku 2024 od renomovaného developera Sekyra Group. Dům se nachází v žádané lokalitě Prahy 5 – Smíchov, v těsné blízkosti metra a plné občanské vybavenosti.
Byt je orientovaný na západ a nabízí příjemnou atmosféru i dostatek denního světla. Dispozice zahrnuje obývací pokoj s moderně vybavenou kuchyňskou linkou (lednice, myčka, trouba, indukční varná deska a digestoř), prostorná s a koupelnu se sprchovým koutem a toaletou. V koupelně najdeme dále i bidetovou sprchu, topný žebřík a prostor na pračku a sušičku. K bytu náleží i sklepní kóje o výměře 1,8m2.
Byt díky šikovné dispozici a dvou oknům se dá rozdělit až na 2+kk.
Lokalita Smíchov nabízí veškeré pohodlí městského života – v docházkové vzdálenosti naleznete kavárny, obchody, lékárny i obchodní centrum. Výborná dopravní dostupnost: pár kroků od metra B (Smíchovské nádraží), tramvajových i autobusových zastávek, s přímým napojením i na vlakové spoje.
Pro volnočasové aktivity je k dispozici oblíbená náplavka či nedaleké Prokopské údolí.
V případě zájmu Vám rád pošlu odkaz na virtuální prohlídku, abyste měli úplnou představu o nabízené nemovitosti (360C prohlídka s možností orientace ve videu dle vašich představ).
En. náročnost b.: B - Velmi úsporná (58 kWh/m2 za rok)
Cena: včetně provize a právního servisu, včetně DPH, včetně provize, včetně právního servisu.
|
| |||||||||||||||||||||||||||||||
Kontaktovat inzerenta emailem
Kontaktovat emailem může pouze ověřený uživatel.
Ověření je zdarma.
Vaše telefonní číslo *
Kontaktovat emailem může pouze ověřený uživatel.
Ověření je zdarma.
Vaše telefonní číslo *
Podobné inzeráty
Prodej bytu 4+kk, 126 m², Praha, ul. Vltavská - [15.11. 2025]Smíchov je místem, kde se potkává energie města s atmosférou staré Prahy.
A právě zde, jen pár kroků od náplavky, vznikl originální mezonet 4+kk, který vás okamžitě zaujme svou vzdušností, mimořádným prostorem a designovou duší.
Má podlahovou plochu ...
16 490 000 Kč
Praha 5
150 00
150 00
55 x
Označit špatný inzerát Chybnou kategorii Ohodnotit uživatele Smazat/Upravit/Topovat
Prodej bytu 1+kk, 28 m², Praha, ul. Plzeňská - [14.11. 2025]Nabízíme prodej bytu o dispozici 1+kk a podlahové ploše 28,6 m2, v katastru vedeného jako ateliér, situovaného ve 3. patře bytového domu v klidné části Praha 5 - Motol, ul. Plzeňská. Budova byla kolaudována v roce 2015, jedná se tak v podstatě o záno ...
5 700 000 Kč
Praha 5
150 00
150 00
164 x
Označit špatný inzerát Chybnou kategorii Ohodnotit uživatele Smazat/Upravit/Topovat
Prodej bytu 2+1 49 m², Praha – Hlubočepy - [13.11. 2025]Prodej bytu 2+1 49 m²
Praha – Hlubočepy
INZERÁT PLATÍ DO SMAZANÍ TO ZNAMENÁ, ŽE POKUD INZERÁT VIDÍTE NABÍDKA JE AKTUÁLNÍ!
ZPROSTŘEDKOVATELE NEOVLAJTE A NEPIŠTĚ OPAKUJEME NEOVLAJTE A NEPIŠTĚ!
Prodej světlého a udržovaného bytu v osobním vlastnict ...
8 330 000 Kč
Praha 5
150 00
150 00
66 x
Označit špatný inzerát Chybnou kategorii Ohodnotit uživatele Smazat/Upravit/Topovat
Prodej bytu 3+1 88 m², Praha - Smíchov, ev.č. 00006 - TOP - [17.11. 2025]Ev.č. 00006
Nebytová jednotka 3+1 (88 m²) – Lesnická ulice, Praha 5 – Smíchov
Bydlení a podnikání v jednom. Výjimečná adresa kousek od Janáčkova nábřeží a Smíchovské náplavky.
Nabízíme k prodeji prostornou nebytovou jednotku o dispozici 3+1 (88 ...
13 990 000 Kč
Praha 5
150 00
150 00
97 x
Označit špatný inzerát Chybnou kategorii Ohodnotit uživatele Smazat/Upravit/Topovat
Prodej bytu 1+KK 40m2 Lidická, Praha - [10.11. 2025]Nabízím k prodeji byt 1+KK o výměře 40M2. Byt má dva oddělené pokoje. Koupelna a WC společně. Nachází se v těsné blízkosti nákupního centra Smíchov. Velmi dobré spojení s MHD a vlakovým nádražím.
Výhody:
-Osobní vlastnictví
-Vše na dosah
-Do ...
6 800 000 Kč
Praha 5
150 00
150 00
205 x
Označit špatný inzerát Chybnou kategorii Ohodnotit uživatele Smazat/Upravit/Topovat
Prodej bytu 3+kk 117 m², Praha - Košíře, ev.č. 02667 - [8.11. 2025]Ev.č. 02667
Nabízíme k prodeji nádherný byt 3+kk o celkové ploše 117 m², podlahová plocha bytu je 92 m² ale byt je rozšířený o lodžii o velikosti 10 m² a dvě galerie o celkové ploše 15 m². Byt je situován ve 3 patře s výhledem z obývacího pokoje do v ...
17 690 000 Kč
Praha 5
150 00
150 00
121 x
Označit špatný inzerát Chybnou kategorii Ohodnotit uživatele Smazat/Upravit/Topovat
Prodej bytu 3+kk/T, 106 m2, Plzeňská, Praha 5, Smíchov - [7.11. 2025]Altoja Living Vám zprostředkuje prodej mezonetového bytu 3+kk (105,9 m2) s terasou (2,9m2) a dvěma koupelnami na Plzeňské ulici, Smíchov, Praha 5 v těsném sousedství parku Klamovka. Byt se nachází v pátém a šestém podlaží.
Dispozice bytu v pátém na ...
12 100 000 Kč
Praha 5
150 00
150 00
268 x
Označit špatný inzerát Chybnou kategorii Ohodnotit uživatele Smazat/Upravit/Topovat
Prodej bytu 2+kk, 56 m², Praha, ul. Na Václavce - [4.11. 2025]Nabízíme k prodeji byt 2+kk o užitné ploše 56 m² v žádané lokalitě Malvazinky. Tento cihlový byt se nachází v 1. nadzemním podlaží třípatrového domu s podzemním podlažím. Byt je připraven k okamžitému nastěhování. Velkou předností tohoto bytu je spol ...
9 490 000 Kč
Praha 5
150 00
150 00
110 x
Označit špatný inzerát Chybnou kategorii Ohodnotit uživatele Smazat/Upravit/Topovat
Prodej bytu 2+1, 80 m², Praha 5 - Smíchov, ul. Moulíkova - [1.11. 2025]Velmi dobře udržovaný byt se současnou dispozicí 2+1 s malou pracovnou s možností úpravy na 3+kk se šatnou. Nachází se v atraktivní lokalitě pražského Smíchova, ul. Moulíkova. Byt je situován ve 3. patře cihlového domu bez výtahu, má velkorysou halu ...
9 799 000 Kč
Praha 5
150 00
150 00
140 x
Označit špatný inzerát Chybnou kategorii Ohodnotit uživatele Smazat/Upravit/Topovat
Prodej bytu 1+kk 45 m2 s balkonem, sklepem a garážovým stání - [30.10. 2025]Nabízíme k prodeji nový moderní byt 1+kk o rozloze 45,1 m² s balkónem 6,5 m², sklepem 2,5 a prostorným garážovým stáním², který se nachází ve 2. NP novostavby Vitality Rezidence v rezidenční čtvrti Hřebenky.
Tento luxusní bezbariérový byt nabízí poh ...
9 450 000 Kč
Praha 5
150 00
150 00
169 x
Označit špatný inzerát Chybnou kategorii Ohodnotit uživatele Smazat/Upravit/Topovat









