Prodej bytu 3+kk, 54,61 m², Praha 9 - Prosek, ul. Bohušovick
- [11.11. 2025]Smazat/ Upravit/ Topovat






























Ev.č. 00191
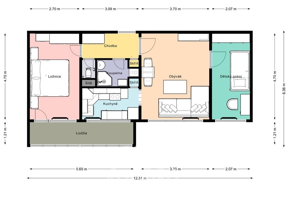
Exkluzivně Vám nabízíme k prodeji bytovou jednotku o dispozici 3+kk s užitnou plochou 54,61 m², nacházející se ve 2. patře (3. nadzemní podlaží) zatepleného domu bez výtahu v klidné části Prahy 9 – Prosek.
Dispozice bytu:
• Vstupní chodba – 4,53 m²
• Obývací pokoj – 17,25 m²
• Ložnice – 12,78 m²
• Dětský pokoj – 9,73 m²
• Kuchyňský kout s kuchyňskou linkou – 5,54 m²
• Koupelna – 2,56 m²
• WC – 0,97 m²
K bytu náleží také zděný sklep o velikosti 1,25 m² umístěný na patře u bytové jednotky a lodžie o velikosti 6,96 m². Výměry bytu jsou orientační.
Byt je osazen plastovými okny (výměna v roce 2020), vytápění a ohřev vody jsou zajištěny centrálně – vlastní zdroj v domě. V roce 2020 prošel dům revitalizací. Byl zateplen. Byla udělána nová střecha, fasáda a lodžie. V přízemí domu je k dispozici velká kolárna. Dům je ve velmi klidné lokalitě mimo hlučné komunikace. V domě je pouze 15 jednotek. V bytě zůstane komplet vybavení kuchyně a koupelny včetně spotřebičů, postel v dětském pokoji, vestavěná skříň v chodbě a šatní skříň a stůl v ložnici.
V bytě jsou zavedeny tři fáze a bytové jádro je zděné (2017). V bytě je také plyn, který je momentálně odpojen, ale dá se znovu zapojit. Parkování je možné volně v ulici Bohušovická a v okolních ulicích. Výhodou je blízká služebna PČR, takže v lokalitě je i bezpečněji.
Na jednotce je nyní hypoteční zástava Moneta Money Bank, která se při prodeji samozřejmě odstraní.
Lokalita:
Prosek / Střížkov je oblíbenou městskou částí s kompletní občanskou vybaveností. V docházkové vzdálenosti 6 minut naleznete stanici metra C Střížkov a za 15 minut jste v centru Prahy. Dále autobusové zastávky MHD Střížkov a Teplická.
V blízkosti se nachází poliklinika, mateřská škola, základní škola, gymnázium, dvě lékárny, restaurace, kavárna, bowling, kebab, pizzerie, burgers & cheesesteaks, obchody Norma, Lidl, Penny, OC Jizerka, Potraviny Veltruská, venkovní posilovna, kluziště a dětská hřiště.
Pro volnočasové aktivity jsou v okolí Park Přátelství, Sportcentru Prosek a dopravní hřiště, bobová dráha a kynologické cvičiště.
Financování:
V případě zájmu zajistíme výhodné financování formou hypotečního úvěru. Rádi Vám zajistíme výhodné podmínky.
Prohlídky jsou možné kdykoliv po předchozí telefonické domluvě.
En. náročnost b.: D - Méně úsporná (112 kWh/m2 za rok)
Cena: Cena k jednání., včetně DPH, včetně poplatků, včetně provize, včetně právního servisu, cena k jednání.
Exkluzivně Vám nabízíme k prodeji bytovou jednotku o dispozici 3+kk s užitnou plochou 54,61 m², nacházející se ve 2. patře (3. nadzemní podlaží) zatepleného domu bez výtahu v klidné části Prahy 9 – Prosek.
Dispozice bytu:
• Vstupní chodba – 4,53 m²
• Obývací pokoj – 17,25 m²
• Ložnice – 12,78 m²
• Dětský pokoj – 9,73 m²
• Kuchyňský kout s kuchyňskou linkou – 5,54 m²
• Koupelna – 2,56 m²
• WC – 0,97 m²
K bytu náleží také zděný sklep o velikosti 1,25 m² umístěný na patře u bytové jednotky a lodžie o velikosti 6,96 m². Výměry bytu jsou orientační.
Byt je osazen plastovými okny (výměna v roce 2020), vytápění a ohřev vody jsou zajištěny centrálně – vlastní zdroj v domě. V roce 2020 prošel dům revitalizací. Byl zateplen. Byla udělána nová střecha, fasáda a lodžie. V přízemí domu je k dispozici velká kolárna. Dům je ve velmi klidné lokalitě mimo hlučné komunikace. V domě je pouze 15 jednotek. V bytě zůstane komplet vybavení kuchyně a koupelny včetně spotřebičů, postel v dětském pokoji, vestavěná skříň v chodbě a šatní skříň a stůl v ložnici.
V bytě jsou zavedeny tři fáze a bytové jádro je zděné (2017). V bytě je také plyn, který je momentálně odpojen, ale dá se znovu zapojit. Parkování je možné volně v ulici Bohušovická a v okolních ulicích. Výhodou je blízká služebna PČR, takže v lokalitě je i bezpečněji.
Na jednotce je nyní hypoteční zástava Moneta Money Bank, která se při prodeji samozřejmě odstraní.
Lokalita:
Prosek / Střížkov je oblíbenou městskou částí s kompletní občanskou vybaveností. V docházkové vzdálenosti 6 minut naleznete stanici metra C Střížkov a za 15 minut jste v centru Prahy. Dále autobusové zastávky MHD Střížkov a Teplická.
V blízkosti se nachází poliklinika, mateřská škola, základní škola, gymnázium, dvě lékárny, restaurace, kavárna, bowling, kebab, pizzerie, burgers & cheesesteaks, obchody Norma, Lidl, Penny, OC Jizerka, Potraviny Veltruská, venkovní posilovna, kluziště a dětská hřiště.
Pro volnočasové aktivity jsou v okolí Park Přátelství, Sportcentru Prosek a dopravní hřiště, bobová dráha a kynologické cvičiště.
Financování:
V případě zájmu zajistíme výhodné financování formou hypotečního úvěru. Rádi Vám zajistíme výhodné podmínky.
Prohlídky jsou možné kdykoliv po předchozí telefonické domluvě.
En. náročnost b.: D - Méně úsporná (112 kWh/m2 za rok)
Cena: Cena k jednání., včetně DPH, včetně poplatků, včetně provize, včetně právního servisu, cena k jednání.
|
| |||||||||||||||||||||||||||||||
Kontaktovat inzerenta emailem
Kontaktovat emailem může pouze ověřený uživatel.
Ověření je zdarma.
Vaše telefonní číslo *
Kontaktovat emailem může pouze ověřený uživatel.
Ověření je zdarma.
Vaše telefonní číslo *









