Prodej rodinného domu 6+1 , Uherské Hradiště - Jarošov, 528
- [11.11. 2025]Smazat/ Upravit/ Topovat






























Nabízíme k prodeji samostatně stojící rodinný dům s celkovou plochou 528 m² v klidné části Jarošova, městské části Uherského Hradiště. Dům se nachází ve slepé ulici, což zajišťuje naprostý klid, soukromí a minimální provoz vozidel – ideální pro rodiny s dětmi i vícegenerační bydlení nebo i k podníkaní.
Dům byl zkolaudován v roce 1993 a v roce 2010 prošel celkovou rekonstrukcí.Je postaven z kvalitních materiálů a je celkově zateplen. Díky dispozičnímu řešení jej lze využít i jako dvougenerační – v každém patře je příprava pro kuchyňskou část včetně odpadů a v domě jsou instalovány odpočtové elektroměry pro oddělené měření spotřeby.
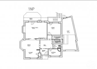
Dispozice a vybavení:
V přízemí se nachází :
-Vstupní chodba se zádveřím
-Prostorná hala s přístupem do všech místností
-Samostatná toaleta a koupelna
-Velký obývací prostor s kuchyňským koutem a jídelnou
-Ložnice
V patře najdete 4+KK:
-Dva dětské pokoje (pracovna)
-Ložnici
-Koupelnu s toaletou
-Přípravu pro kuchyňský kout,jídelny včetně obývací části
Exteriér a parkování:
K domu náleží zahrada vhodná pro odpočinek i rodinné aktivity. Parkování je možné jak v garáži, tak přímo u domu. Do garáže se vejdou dvě auta a další dvě parkovací stání jsou k dispozici venku na pozemku.
Lokalita:
Jarošov je klidná a vyhledávaná část Uherského Hradiště. V okolí se nachází škola, školka, dětské hřiště, cyklostezka i zastávka MHD. Do centra města, které nabízí kompletní občanskou vybavenost, se dostanete během několika minut.
Neváhejte a domluvte si prohlídku!
Tento dům vám poskytne pohodlné, klidné bydlení s možností dvougeneračního využití a okamžitého nastěhování.
Rádi Vám pomůžeme i s vyřízením financování na míru. Prohlídky možné po předchozí domluvě.
Dům byl zkolaudován v roce 1993 a v roce 2010 prošel celkovou rekonstrukcí.Je postaven z kvalitních materiálů a je celkově zateplen. Díky dispozičnímu řešení jej lze využít i jako dvougenerační – v každém patře je příprava pro kuchyňskou část včetně odpadů a v domě jsou instalovány odpočtové elektroměry pro oddělené měření spotřeby.
Dispozice a vybavení:
V přízemí se nachází :
-Vstupní chodba se zádveřím
-Prostorná hala s přístupem do všech místností
-Samostatná toaleta a koupelna
-Velký obývací prostor s kuchyňským koutem a jídelnou
-Ložnice
V patře najdete 4+KK:
-Dva dětské pokoje (pracovna)
-Ložnici
-Koupelnu s toaletou
-Přípravu pro kuchyňský kout,jídelny včetně obývací části
Exteriér a parkování:
K domu náleží zahrada vhodná pro odpočinek i rodinné aktivity. Parkování je možné jak v garáži, tak přímo u domu. Do garáže se vejdou dvě auta a další dvě parkovací stání jsou k dispozici venku na pozemku.
Lokalita:
Jarošov je klidná a vyhledávaná část Uherského Hradiště. V okolí se nachází škola, školka, dětské hřiště, cyklostezka i zastávka MHD. Do centra města, které nabízí kompletní občanskou vybavenost, se dostanete během několika minut.
Neváhejte a domluvte si prohlídku!
Tento dům vám poskytne pohodlné, klidné bydlení s možností dvougeneračního využití a okamžitého nastěhování.
Rádi Vám pomůžeme i s vyřízením financování na míru. Prohlídky možné po předchozí domluvě.
|
| |||||||||||||||||||||||||||||||
Kontaktovat inzerenta emailem
Kontaktovat emailem může pouze ověřený uživatel.
Ověření je zdarma.
Vaše telefonní číslo *
Kontaktovat emailem může pouze ověřený uživatel.
Ověření je zdarma.
Vaše telefonní číslo *
Podobné inzeráty
Rodinný dům s dispozicí 2+1 a 3+kk ve vyhledávané lokalitě – - TOP - [17.11. 2025]Exkluzivně nabízíme prodej cihlového rodinného domu v jedné z nejprestižnějších lokalit Uherského Hradiště – v klidné a velmi ceněné ulici Svatováclavská.
Tato adresa patří dlouhodobě mezi nejžádanější díky svému rezidenčnímu charakteru, nízkému pro ...
15 999 000 Kč
Uherské Hradiště
686 01
686 01
298 x
Označit špatný inzerát Chybnou kategorii Ohodnotit uživatele Smazat/Upravit/Topovat
SLEVA: Prodej bezbariérového domu 4+kk v Uherském Hradišti – - [5.11. 2025]Prodej bezbariérového domu 4+kk v Uherském Hradišti – Jarošově.
Tento dům není jen zdi, střecha a číslo popisné.
Je to příběh tvořený srdcem – o proměně starého domu v teplý, útulný a bezpečný domov, kam se budete rádi vracet. Každý kout a každý det ...
8 500 000 Kč
Uherské Hradiště
686 01
686 01
320 x
Označit špatný inzerát Chybnou kategorii Ohodnotit uživatele Smazat/Upravit/Topovat
Prodej domu, bytu 4kk, 3kk, 2kk (250+120+50m2), klidná ulice - [2.11. 2025]Nabízím prodej bytové domu, kde jsou 3 oddělené byty, na třech podlažích a sklepy. Výborná investice s garantovaným výnosem 5 %, který se časem ještě zvyšuje. Nebo možnost vlastního bydlení, kde nájemné z ostatních bytů, pomáhá se splátkou hypotéky. ...
14 500 000 Kč
Uherské Hradiště
686 01
686 01
326 x
Označit špatný inzerát Chybnou kategorii Ohodnotit uživatele Smazat/Upravit/Topovat
PRODEJ RD UHERSKÉ HRADIŠTĚ-SADY - [31.10. 2025]Obec: Uherské Hradiště, Sady
Ulice: Za Kovárnou
IS: veškeré IS
Počet bytů: 1 ( 3+KK )
Počet koupelen: 1
Počet kuchyní: 1
Počet WC: 1
Okna: Plastová
Topení: ÚT El. Kotel
Sklep: Ano
Rozvod elektřiny: měď
Užitná plocha: 107 m2
Celková ploc ...
6 650 000 Kč
Uherské Hradiště
686 01
686 01
377 x
Označit špatný inzerát Chybnou kategorii Ohodnotit uživatele Smazat/Upravit/Topovat
Prodej rodinného domu v blízkosti centra Uh.Hradiště. - [22.9. 2025]Nabízíme exkluzivně k prodeji rodinný dům ve velmi zajímavé lokalitě ul. Lechova v Uh. Hradišti. Díky poloze domu a dané lokalitě je dům vhodný jak pro bydlení tak i pro kombinaci bydlení a podnikání případně k podnikání. Dispozice domu: vstupní chod ...
14 950 000 Kč
Uherské Hradiště
686 01
686 01
508 x
Označit špatný inzerát Chybnou kategorii Ohodnotit uživatele Smazat/Upravit/Topovat









