Prodej dvougeneračního RD v Hati, ul. Lipová
- [12.11. 2025]Smazat/ Upravit/ Topovat






























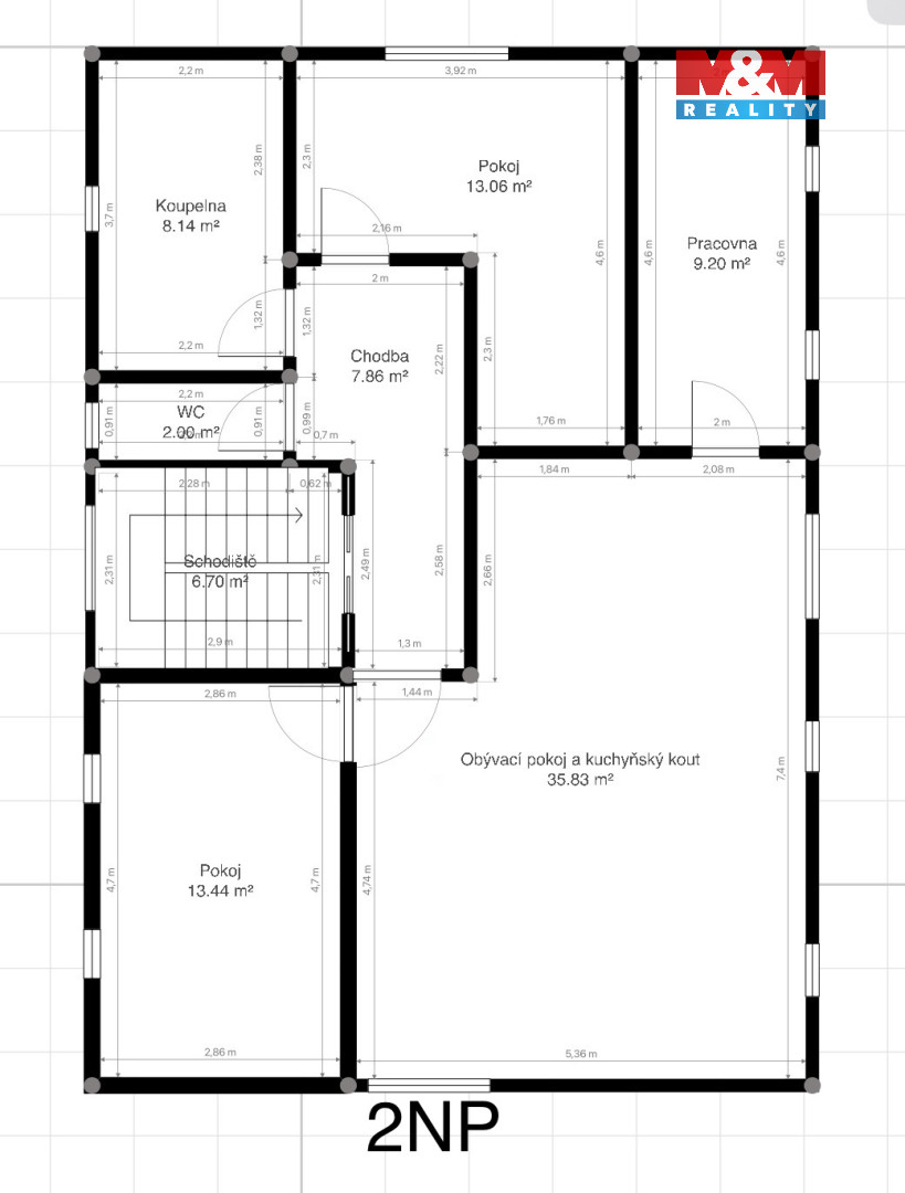
Nabízíme k prodeji dvougenerační RD, nacházející se v obci Hať, poblíž Česko-Polské hranice. Dům prošel v letech 2015 a 2019 nákladnou rekonstrukcí exteriéru i interiéru. Patra jsou propojena betonovým schodištěm a v každém se nachází samostatná bytová jednotka, 4+kk a 4+1. Byt. jednotka v 2NP je opatřena posuvnými dveřmi a skýtá dostatek soukromí. Vytápění a ohřev vody zajišťuje kondenzační kotel, ve 2NP také el. bojler. Kuchyně jsou vybaveny vestavěnými spotřebiči, které jsou součástí prodeje. Dům disponuje udržovaným suterénem s dílnou, kotelnou, prádelnou a letní kuchyní. Zděná garáž má parkovací kapacitu pro dva vozy. Pozemek, s udržovanou zahradou, je oplocený a noví majitelé jistě ocení el. bránu s d.o. pro pohodlný příjezd. V obci naleznete MŠ, ZŠ, poštu, obchody, zastávky autobusu s přímým spojem do Hlučína, což jistě přispívá ke komfortu bydlení. Dům je ve výborném stavu a kupující se mohou nastěhovat bez dalších investic na jaře 2026. Více informací Vám sdělíme na prohlídce
Lokalita: Lipová, Hať
Evidenční číslo: 923916
Energetická náročnost : Třída G - Mimořádně nehospodárná
Lokalita: Lipová, Hať
Evidenční číslo: 923916
Energetická náročnost : Třída G - Mimořádně nehospodárná
|
| |||||||||||||||||||||||||||||||
Kontaktovat inzerenta emailem
Kontaktovat emailem může pouze ověřený uživatel.
Ověření je zdarma.
Vaše telefonní číslo *
Kontaktovat emailem může pouze ověřený uživatel.
Ověření je zdarma.
Vaše telefonní číslo *









