Dělnický dům Olomouc - Černovír, jedinečná investiční přílež
- [13.11. 2025]Smazat/ Upravit/ Topovat



























Nabízíme k prodeji unikátní nemovitost s bohatou historií – víceúčelový objekt známý jako Dělnický dům, situovaný v atraktivní a dobře dostupné části města Olomouc - Černovír. Jedná se o historický objekt s výrazným architektonickým charakterem a širokým potenciálem dalšího využití – kulturní, administrativní, obchodní i jiné.
Budovu postavila Dělnická tělocvičná jednota v roce 1934. V minulosti sloužila jako kulturní a společenské centrum s tělocvičnou (sálem) a hostincem v přízemí. V prostorném kulturním sále se štukovou výzdobou vystupovali přední umělci československého undergroundu, jako olomoucký rodák Karel Plíhal, Jaroslav Chromek, Psí vojáci a další.
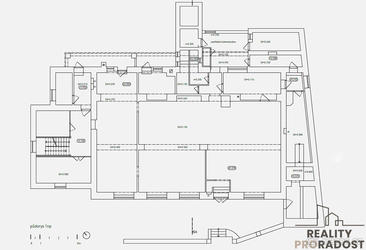
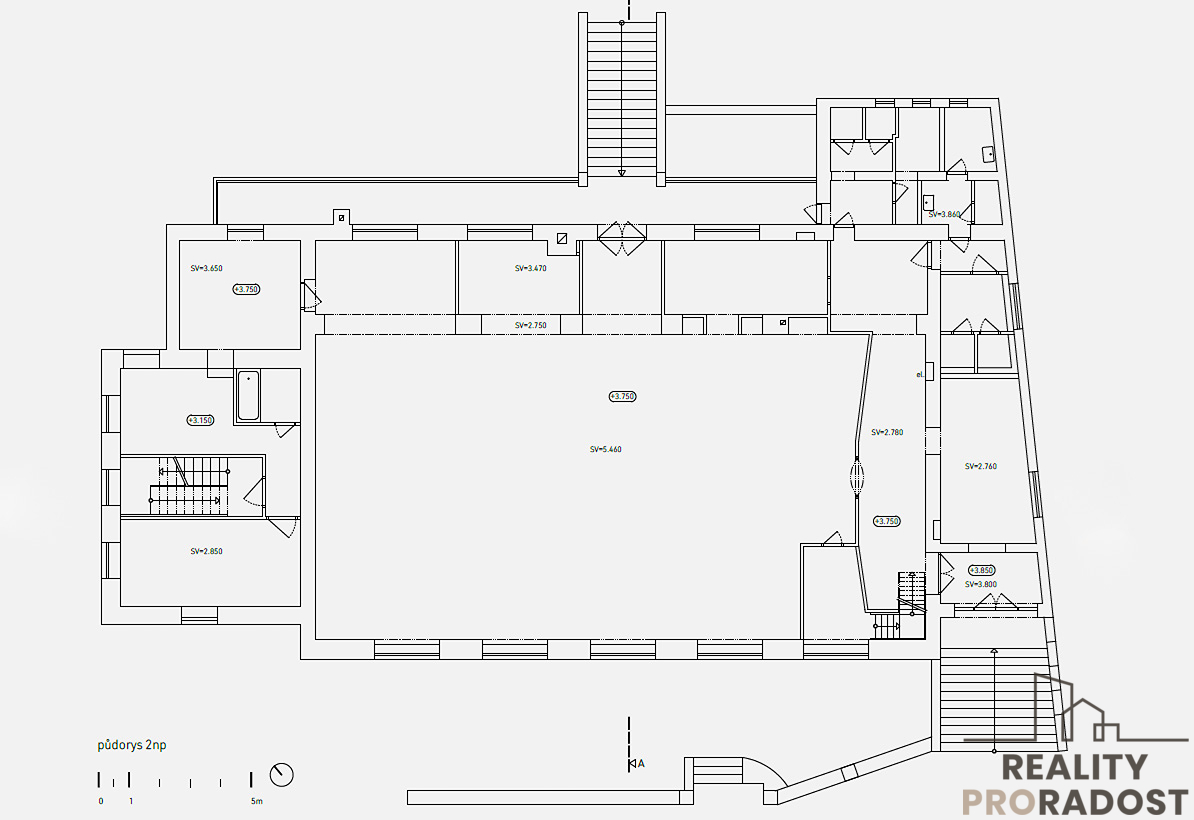
Dispozičně nabízí v 1.NP užitnou plochu cca 363 m2 - velký otevřený prostor se zázemím, v 2.NP užitnou plochu cca 363 m2 - prostorný sál (cca 250 m2) se zázemím, v 3.NP. užitnou plochu cca 80 m2, dále půdu – cca 200 m2.
Celkem cca 1.000 m2 užitné plochy na pozemku o celkové ploše 1.830 m2.
Vzhledem k velikosti, umístění a dispozičnímu řešení je objekt (po rekonstrukci) vhodný pro kulturní instituce, školská zařízení, kancelářské využití, povozovny a jiné. Dle platného územního plánu lze pozemky využít jako plochy veřejného vybavení.
Výhody:
• Zajímavá budova s historickým kontextem
• Strategická poloha s výbornou dostupností
• Velkorysé vnitřní prostory s původními prvky
• Možnost víceúčelového využití
• Vlastní pozemek
• Potenciál pro dotace na rekonstrukci
Objekt čeká na nového majitele, který mu vrátí jeho zašlou slávu.
ev.č.: 26268
včetně právních služeb, včetně provize RK
třída energetické náročnosti budovy: G - Mimořádně nehospodárná
dle vyhlášky č.264/2020 Sb.
druh objektu: Cihlová
stav objektu: Před rekonstrukcí
typ domu: Patrový
zastavěná plocha (m2): 445
plocha kanceláří (m2): 1000
počet podlaží objektu: 3
Budovu postavila Dělnická tělocvičná jednota v roce 1934. V minulosti sloužila jako kulturní a společenské centrum s tělocvičnou (sálem) a hostincem v přízemí. V prostorném kulturním sále se štukovou výzdobou vystupovali přední umělci československého undergroundu, jako olomoucký rodák Karel Plíhal, Jaroslav Chromek, Psí vojáci a další.
Dispozičně nabízí v 1.NP užitnou plochu cca 363 m2 - velký otevřený prostor se zázemím, v 2.NP užitnou plochu cca 363 m2 - prostorný sál (cca 250 m2) se zázemím, v 3.NP. užitnou plochu cca 80 m2, dále půdu – cca 200 m2.
Celkem cca 1.000 m2 užitné plochy na pozemku o celkové ploše 1.830 m2.
Vzhledem k velikosti, umístění a dispozičnímu řešení je objekt (po rekonstrukci) vhodný pro kulturní instituce, školská zařízení, kancelářské využití, povozovny a jiné. Dle platného územního plánu lze pozemky využít jako plochy veřejného vybavení.
Výhody:
• Zajímavá budova s historickým kontextem
• Strategická poloha s výbornou dostupností
• Velkorysé vnitřní prostory s původními prvky
• Možnost víceúčelového využití
• Vlastní pozemek
• Potenciál pro dotace na rekonstrukci
Objekt čeká na nového majitele, který mu vrátí jeho zašlou slávu.
ev.č.: 26268
včetně právních služeb, včetně provize RK
třída energetické náročnosti budovy: G - Mimořádně nehospodárná
dle vyhlášky č.264/2020 Sb.
druh objektu: Cihlová
stav objektu: Před rekonstrukcí
typ domu: Patrový
zastavěná plocha (m2): 445
plocha kanceláří (m2): 1000
počet podlaží objektu: 3
|
| |||||||||||||||||||||||||||||||
Kontaktovat inzerenta emailem
Kontaktovat emailem může pouze ověřený uživatel.
Ověření je zdarma.
Vaše telefonní číslo *
Kontaktovat emailem může pouze ověřený uživatel.
Ověření je zdarma.
Vaše telefonní číslo *






