Pronájem, byt 1+kk, 26 m, Dělnická 673/9, Třešť, Česko
- [13.11. 2025]Smazat/ Upravit/ Topovat























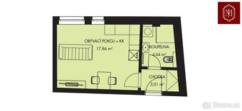
Nabízíme k pronájmu světlý a efektivně řešený byt o dispozici 1+KK, který se nachází v 1. patře (2. NP) moderního cihlového bytového domu v klidné části Třeště. Byt je orientovaný na východ, takže ranní světlo krásně prosvětluje celý interiér a den tak začíná příjemnou atmosférou.
Byt je bezbariérový a díky výtahu přístupný bez jakýchkoli překážek. Moderní architektura domu zajišťuje energeticky úsporný provoz, trojskla a kvalitní izolace napomáhají udržet stabilní teplotu i nízké náklady na vytápění. V bytě je instalováno podlahové topení, které rovnoměrně prohřívá celý prostor a zajišťuje příjemný tepelný komfort po celý rok.
Kuchyňská část je koncipována tak, aby efektivně navazovala na obývací zónu. Koupelna je vybavena sprchovým koutem a praktickým vlastním bojlerem na ohřev vody, díky kterému si nájemce může sám regulovat výdaje za teplou vodu.
Součástí pronájmu je vlastní parkovací místo o velikosti 15 m² a sklepní kóje o velikosti 2,85 m², která poskytuje dostatek prostoru pro uložení sezónních věcí. Obyvatelé domu mohou využívat také společnou místnost pro kočárky a kola.
Bytový dům je novostavba s kvalitním zateplením, úspornými technologiemi a moderními společnými prostory.
Lokalita nabízí veškerou občanskou vybavenost v docházkové vzdálenosti – mateřskou i základní školu, obchody s potravinami, poštu, lékařskou péči i restaurace. V okolí se nachází park, lesní stezky i rybníky vhodné k procházkám a rekreaci. Dopravní dostupnost je výborná – autobusová zastávka je jen pár kroků od domu a vlakové nádraží se nachází přibližně deset minut chůze.
Tento byt je ideální pro jednotlivce nebo pár, kteří hledají moderní a úsporné bydlení v klidném prostředí s vynikající dostupností.
Nemovitost: Byt - Pronájem
Dispozice: 1+kk
Vlastnictví: Osobní
Stav bytu: Novostavba
Materiál: Cihlová
Umístění stavby: Klidná část obce
Užitná plocha: 26 m²
Parkovací místo: 1x, celková plocha: 15 m²
Sklep: 1x, celková plocha: 3 m²
Vybavení: Částečně vybaveno
Náklady na bydlení: 2500
Datum nastěhování: 1.12.2025
Podlaží podzemních: 0
Podlaží nadzemních: 3
Patro: 1
Rok výstavby: 2025
Rok kolaudace: 2025
Energetická náročnost: B - Velmi úsporná
Vyhláška: č. 264/2020 Sb
Uk. en. náročnosti: 80,00 m²⋅K
Nízkoenergetický: Ano
Zdroj vody: Dálkový vodovod
Rozvod topení: Podlahové
Typ odpadu: Veřejná kanalizace
Komunikace: Betonová, Dlážděná
Doprava: Vlak, Silnice, Autobus
Telekomunikace:
Elektřina: 230 V
Bezbariérový: Ano
Výtah: Ano
Byt je bezbariérový a díky výtahu přístupný bez jakýchkoli překážek. Moderní architektura domu zajišťuje energeticky úsporný provoz, trojskla a kvalitní izolace napomáhají udržet stabilní teplotu i nízké náklady na vytápění. V bytě je instalováno podlahové topení, které rovnoměrně prohřívá celý prostor a zajišťuje příjemný tepelný komfort po celý rok.
Kuchyňská část je koncipována tak, aby efektivně navazovala na obývací zónu. Koupelna je vybavena sprchovým koutem a praktickým vlastním bojlerem na ohřev vody, díky kterému si nájemce může sám regulovat výdaje za teplou vodu.
Součástí pronájmu je vlastní parkovací místo o velikosti 15 m² a sklepní kóje o velikosti 2,85 m², která poskytuje dostatek prostoru pro uložení sezónních věcí. Obyvatelé domu mohou využívat také společnou místnost pro kočárky a kola.
Bytový dům je novostavba s kvalitním zateplením, úspornými technologiemi a moderními společnými prostory.
Lokalita nabízí veškerou občanskou vybavenost v docházkové vzdálenosti – mateřskou i základní školu, obchody s potravinami, poštu, lékařskou péči i restaurace. V okolí se nachází park, lesní stezky i rybníky vhodné k procházkám a rekreaci. Dopravní dostupnost je výborná – autobusová zastávka je jen pár kroků od domu a vlakové nádraží se nachází přibližně deset minut chůze.
Tento byt je ideální pro jednotlivce nebo pár, kteří hledají moderní a úsporné bydlení v klidném prostředí s vynikající dostupností.
Nemovitost: Byt - Pronájem
Dispozice: 1+kk
Vlastnictví: Osobní
Stav bytu: Novostavba
Materiál: Cihlová
Umístění stavby: Klidná část obce
Užitná plocha: 26 m²
Parkovací místo: 1x, celková plocha: 15 m²
Sklep: 1x, celková plocha: 3 m²
Vybavení: Částečně vybaveno
Náklady na bydlení: 2500
Datum nastěhování: 1.12.2025
Podlaží podzemních: 0
Podlaží nadzemních: 3
Patro: 1
Rok výstavby: 2025
Rok kolaudace: 2025
Energetická náročnost: B - Velmi úsporná
Vyhláška: č. 264/2020 Sb
Uk. en. náročnosti: 80,00 m²⋅K
Nízkoenergetický: Ano
Zdroj vody: Dálkový vodovod
Rozvod topení: Podlahové
Typ odpadu: Veřejná kanalizace
Komunikace: Betonová, Dlážděná
Doprava: Vlak, Silnice, Autobus
Telekomunikace:
Elektřina: 230 V
Bezbariérový: Ano
Výtah: Ano
|
| |||||||||||||||||||||||||||||||
Kontaktovat inzerenta emailem
Kontaktovat emailem může pouze ověřený uživatel.
Ověření je zdarma.
Vaše telefonní číslo *
Kontaktovat emailem může pouze ověřený uživatel.
Ověření je zdarma.
Vaše telefonní číslo *


