Prodej stavební parcely se schváleným projektem rodinného do
- [14.11. 2025]Smazat/ Upravit/ Topovat























Nabízíme k prodeji exkluzivní stavební parcelu o rozloze 1011 m², nacházející se v prestižní lokalitě Svatého Kopečku, v těsné blízkosti jedinečné ZOO a s výbornou dostupností do historického centra města Olomouc. Tato výjimečná nabídka je určena pro ty, kteří si chtějí postavit moderní dvoupatrový dům, a to s již schváleným projektem.
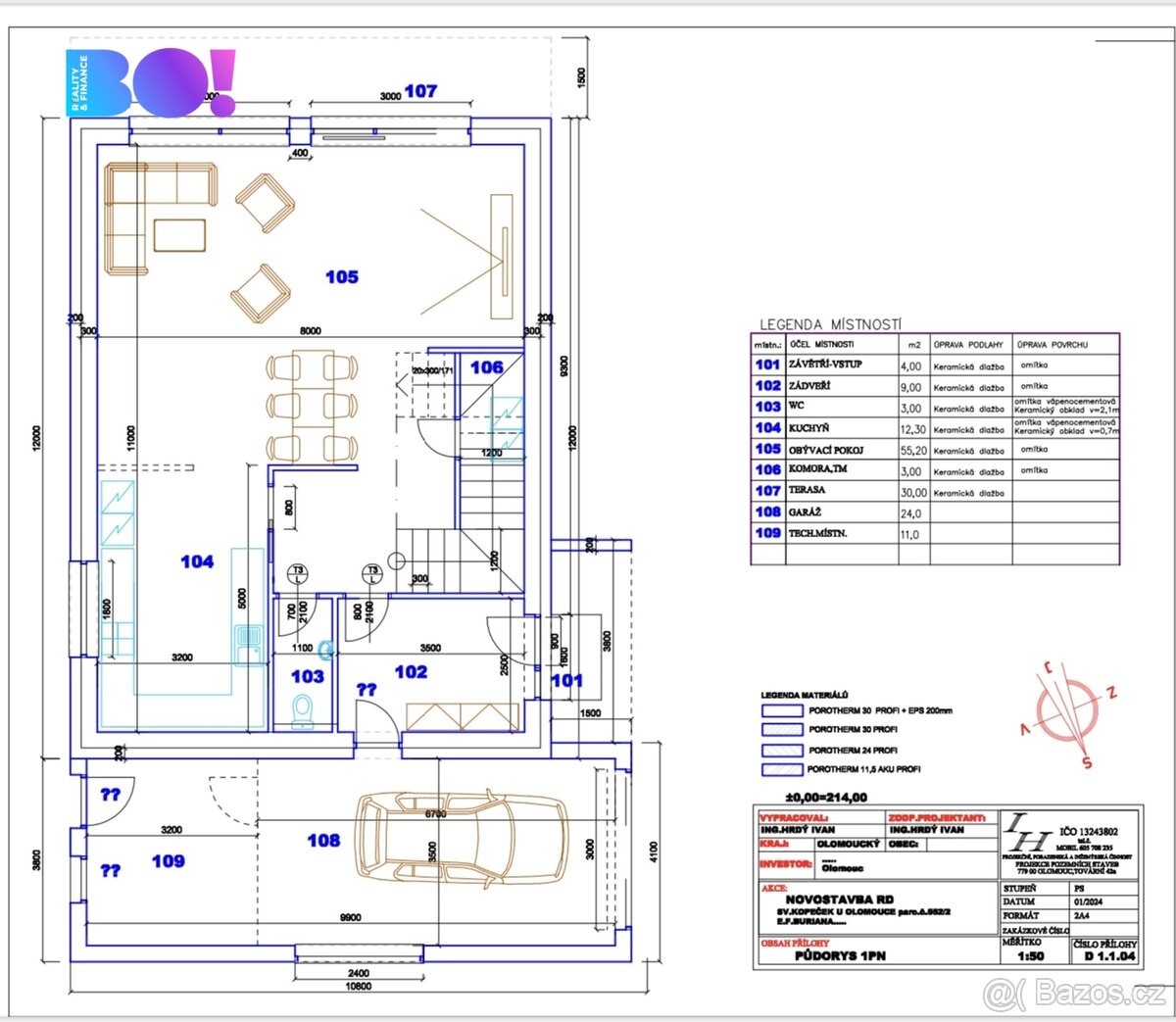
Pozemek je určen k bydlení a disponuje veškerými potřebnými inženýrskými sítěmi. K dispozici je stavební povolení, což urychluje realizaci vysněného bydlení. V rámci projektu je navržen dům s dispozicí 4+kk a garáží, který poskytuje užitnou plochu 180 m² a zastavěnou plochu 137 m², což zajišťuje komfortní a prostorné bydlení. Tento dům bude ideálním místem pro život, kde se elegance snoubí s praktickými funkcemi.
V přízemí najdeme - vstup o rozloze 4 m², zádveří o velikosti 9 m², WC 3 m², kuchyň 12,3 m², prostorný obývací pokoj o rozloze 55,2 m², komoru 3 m², terasu o velikosti 30 m², garáž 24 m² a technickou místnost 11 m².
V prvním patře je hala o dispozici 16,2 m², koupelna 8,25 m², WC 3 m², pokoj 1 o velikosti 21 m², pokoj 2 o velikosti 21 m², ložnice o rozloze 20 m² a šatna 5 m².
Vytápění je navrženo podlahovým systémem, vytápění - tepelné čerpadlo + navrženo alternativní topení krbem. Energetická náročnost budovy je dle projektu zařazena do třídy B.
Svatý Kopeček je vyhledávanou lokalitou, která nabízí klidné a příjemné prostředí na dosah městského ruchu. V okolí se nachází veškerá občanská vybavenost, školky, školy, obchody a další služby, nezbytné pro spokojené rodinné bydlení. Rychlé a efektivní spojení zajišťuje MHD, což usnadňuje dopravu do Olomouce.
Jde o jedinečnou příležitost, kde můžete zrealizovat své sny o moderním a komfortním bydlení ve vyhledávané lokalitě.
V případě zájmu o prohlídku nás neváhejte kontaktovat. S financováním Vám rádi pomůžeme.
ev.č.: 7615
umístění objektu: Centrum obce
celková plocha (m2): 1011
Pozemek je určen k bydlení a disponuje veškerými potřebnými inženýrskými sítěmi. K dispozici je stavební povolení, což urychluje realizaci vysněného bydlení. V rámci projektu je navržen dům s dispozicí 4+kk a garáží, který poskytuje užitnou plochu 180 m² a zastavěnou plochu 137 m², což zajišťuje komfortní a prostorné bydlení. Tento dům bude ideálním místem pro život, kde se elegance snoubí s praktickými funkcemi.
V přízemí najdeme - vstup o rozloze 4 m², zádveří o velikosti 9 m², WC 3 m², kuchyň 12,3 m², prostorný obývací pokoj o rozloze 55,2 m², komoru 3 m², terasu o velikosti 30 m², garáž 24 m² a technickou místnost 11 m².
V prvním patře je hala o dispozici 16,2 m², koupelna 8,25 m², WC 3 m², pokoj 1 o velikosti 21 m², pokoj 2 o velikosti 21 m², ložnice o rozloze 20 m² a šatna 5 m².
Vytápění je navrženo podlahovým systémem, vytápění - tepelné čerpadlo + navrženo alternativní topení krbem. Energetická náročnost budovy je dle projektu zařazena do třídy B.
Svatý Kopeček je vyhledávanou lokalitou, která nabízí klidné a příjemné prostředí na dosah městského ruchu. V okolí se nachází veškerá občanská vybavenost, školky, školy, obchody a další služby, nezbytné pro spokojené rodinné bydlení. Rychlé a efektivní spojení zajišťuje MHD, což usnadňuje dopravu do Olomouce.
Jde o jedinečnou příležitost, kde můžete zrealizovat své sny o moderním a komfortním bydlení ve vyhledávané lokalitě.
V případě zájmu o prohlídku nás neváhejte kontaktovat. S financováním Vám rádi pomůžeme.
ev.č.: 7615
umístění objektu: Centrum obce
celková plocha (m2): 1011
|
| |||||||||||||||||||||||||||||||
Kontaktovat inzerenta emailem
Kontaktovat emailem může pouze ověřený uživatel.
Ověření je zdarma.
Vaše telefonní číslo *
Kontaktovat emailem může pouze ověřený uživatel.
Ověření je zdarma.
Vaše telefonní číslo *


