Prodej bytu 4+kk, 103 m2, v Kounově u Rakovníka
- [15.11. 2025]Smazat/ Upravit/ Topovat






























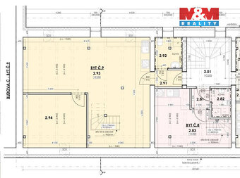
Tento podkrovní mezonetový byt se nachází ve 2.NP rekonstruovaného domu, ve kterém je více bytů venkovského stylu. Ve spodním podlaží bytu je obývací pokoj s kuchyňským koutem, ložnice a koupelna s WC. V patře pak další koupelna s WC a dvě ložnice. Orientace bytu je východ a západ. Dům je zateplen, na střeše jsou nové betonové tašky, PENB typu B. Nízké náklady na energie a vodu. Topení a teplá voda je tepelným čerpadlem, vytápění v podlaze. Voda obecní vodovod, splachování dešťovka. Okna plastová, trojsklo, na zemi dlažba a plovoucí podlaha. V domě je bezdrátový internet a společná anténa. Součástí kupní ceny jsou: podlahy, zárubně, dveře, koupelna vč. obkladů, sanity a skříňky pod umyvadlo a plně vybavená kuchyňská linka. Ve dvoře objektu bude park s lavičkami a herními prvky pro děti, dále wellness. Parkování zajištěno, možnost i dokoupení garáže. Na snímcích použita vizualizace. Byt číslo 9.
Lokalita: Kounov u Rakovníka
Evidenční číslo: 915417
Energetická náročnost : Třída B - Úsporná
Lokalita: Kounov u Rakovníka
Evidenční číslo: 915417
Energetická náročnost : Třída B - Úsporná
|
| |||||||||||||||||||||||||||||||
Kontaktovat inzerenta emailem
Kontaktovat emailem může pouze ověřený uživatel.
Ověření je zdarma.
Vaše telefonní číslo *
Kontaktovat emailem může pouze ověřený uživatel.
Ověření je zdarma.
Vaše telefonní číslo *









