Pronájem ŘRD 7+kk,220 m2,Praha 4-Hostivař.přehrada
- [15.11. 2025]Smazat/ Upravit/ Topovat






























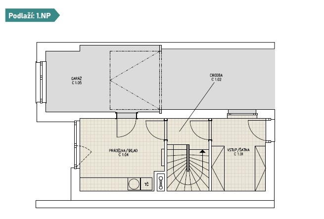
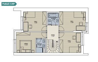
Novostavba ŘRD 7+kk + terasa+balkon+garáž a parkovací stání v domě-užitná plocha 220 m2, který se nachází na pozemku o celkové výměře 132 m2 v Praze 4-Háje, přímo u Hostivařské přehrady s pláží a parkem. Jedná se o dosud neobývanou novostavbu kolaudovanou v roce 2025. V domě jsou 4 samostatné ložnice, 2 x koupelna se sprchovým koutem a vanou, 3x WC, obývací pokoj se vstupem na balkon, kuchyň s jídelnou, moderní kuchyňská linka s vestavěnými spotřebiči - lednice s mrazákem, myčka, horkovzdušná trouba, indukční varná deska, mikrovlnka, digestoř, prádelna, prostorná předsíň. Podlahové vytápění a teplou vodu zajišťuje vlastní tepelné čerpadlo. Poloha RD přímo u Hostivařské přehrady s pláží, volejbalovým hřištěm a parkem s cyklostezkami a tenisovými kurty zajišťuje sportovní vyžití pro každého vyznavače sportu.V docházkové vzdálenosti je stanice metra Háje,stanice autobusů, mnoho obchodů a restaur., několik základních škol a školek,zdr.střediska.
K nastěhování cca od konce listopadu 2025.
K nastěhování cca od konce listopadu 2025.
|
| |||||||||||||||||||||||||||||||
Kontaktovat inzerenta emailem
Kontaktovat emailem může pouze ověřený uživatel.
Ověření je zdarma.
Vaše telefonní číslo *
Kontaktovat emailem může pouze ověřený uživatel.
Ověření je zdarma.
Vaše telefonní číslo *









