Novostavba zděného domu 4kk určená ihned k nastěhování
- TOP - [19.11. 2025]Smazat/ Upravit/ Topovat






























Ahoj, nabízím Vám fantastické místo pro život,
zděnou novostavbu rodinného domu, situovanou v malebném prostředí podhůří Bílých Karpat, v obci Rudimov nedaleko Zlína.
Tento dům nabízí moderní bydlení v harmonii s okolní přírodou, která je zde skutečně panenská. Najdete tu absolutní klid, soukromí i zdravé prostředí – ideální jak pro rodinu, tak pro každého, kdo hledá odpočinek od městského ruchu.
O domě :
• moderní zděná novostavba
• promyšlená dispozice s důrazem na komfort
• kvalitní materiály a energeticky úsporné řešení
• možnost okamžitého nastěhování
Lokalita
Obec Rudimov se nachází v nádherné přírodě Bílých Karpat, v pohodlné dojezdové vzdálenosti od Zlína, Uherského Brodu a Uherského Hradiště. Lokalita tak nabízí ideální kombinaci rychlé dostupnosti městské infrastruktury a klidného, zdravého prostředí venkova.
Proč právě tento dům
✔ Fantastické místo pro život v přírodě
✔ Moderní a komfortní bydlení
✔ Soukromí, klid a zdravé prostředí
✔ Skvělá dostupnost do Zlína i okolních měst
✔ dům je kompletně dokončený a zkolaudovaný - připraven k okamžitému nastěhování
Technické parametry stavby :
• zděná novostavba s vazníkovou střechou a plechovou krytinou
• vytápění tepelným čerpadlem s podlahovým topením
• příprava na krb/kamna pro tuhá paliva
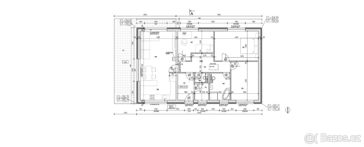
• užitná plocha domu: 125 m², dispozice 4+KK
• celková plocha pozemku: 724 m²
• plocha terasy 28 m²
• parkovací stání 40 m²
součástí stavby je čistička odpadních vod a retenční nádrž na dešťovou vodu
energetická náročnost budovy: B – velmi úsporná
👉 Pokud hledáte domov, který spojuje komfort moderní novostavby a krásu přírody, právě jste ho našli.
Podívejte se na virtuální prohlídku interiéru a exteriéru zde : https://tour.panoee.net/68f9fade87afaf05cbe43ea2
, v případě potřeby se postrám o veškeré vnitřní i venkovní vybavení domu dle Vašich požadavků
Případné zájemce o prohlídku rád uvítám po předchozí telefonické domluvě . REALITNÍ KANCELÁŘE laskavě žádám - NEVOLEJTE MI !!!
video můžete shlédnout zde
https://youtu.be/TJ63iN5dXYw
zděnou novostavbu rodinného domu, situovanou v malebném prostředí podhůří Bílých Karpat, v obci Rudimov nedaleko Zlína.
Tento dům nabízí moderní bydlení v harmonii s okolní přírodou, která je zde skutečně panenská. Najdete tu absolutní klid, soukromí i zdravé prostředí – ideální jak pro rodinu, tak pro každého, kdo hledá odpočinek od městského ruchu.
O domě :
• moderní zděná novostavba
• promyšlená dispozice s důrazem na komfort
• kvalitní materiály a energeticky úsporné řešení
• možnost okamžitého nastěhování
Lokalita
Obec Rudimov se nachází v nádherné přírodě Bílých Karpat, v pohodlné dojezdové vzdálenosti od Zlína, Uherského Brodu a Uherského Hradiště. Lokalita tak nabízí ideální kombinaci rychlé dostupnosti městské infrastruktury a klidného, zdravého prostředí venkova.
Proč právě tento dům
✔ Fantastické místo pro život v přírodě
✔ Moderní a komfortní bydlení
✔ Soukromí, klid a zdravé prostředí
✔ Skvělá dostupnost do Zlína i okolních měst
✔ dům je kompletně dokončený a zkolaudovaný - připraven k okamžitému nastěhování
Technické parametry stavby :
• zděná novostavba s vazníkovou střechou a plechovou krytinou
• vytápění tepelným čerpadlem s podlahovým topením
• příprava na krb/kamna pro tuhá paliva
• užitná plocha domu: 125 m², dispozice 4+KK
• celková plocha pozemku: 724 m²
• plocha terasy 28 m²
• parkovací stání 40 m²
součástí stavby je čistička odpadních vod a retenční nádrž na dešťovou vodu
energetická náročnost budovy: B – velmi úsporná
👉 Pokud hledáte domov, který spojuje komfort moderní novostavby a krásu přírody, právě jste ho našli.
Podívejte se na virtuální prohlídku interiéru a exteriéru zde : https://tour.panoee.net/68f9fade87afaf05cbe43ea2
, v případě potřeby se postrám o veškeré vnitřní i venkovní vybavení domu dle Vašich požadavků
Případné zájemce o prohlídku rád uvítám po předchozí telefonické domluvě . REALITNÍ KANCELÁŘE laskavě žádám - NEVOLEJTE MI !!!
video můžete shlédnout zde
https://youtu.be/TJ63iN5dXYw
|
| |||||||||||||||||||||||||||||||
Kontaktovat inzerenta emailem
Kontaktovat emailem může pouze ověřený uživatel.
Ověření je zdarma.
Vaše telefonní číslo *
Kontaktovat emailem může pouze ověřený uživatel.
Ověření je zdarma.
Vaše telefonní číslo *









