Pronájem objektu skladové prostory, kanceláře, 250m2
- [16.11. 2025]Smazat/ Upravit/ Topovat

























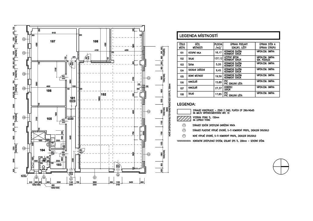
Předmětem pronájmu je zrekonstruovaný objekt v Havířově, ul. Na kopci. Obsahuje sklad, kanceláře.
K dispozici je vytápěná hala se sekčními vraty o velikosti 137m2, přístup hlavním vjezdem areálu nebo vlastními vraty.
Objekt dále disponuje třemi kancelářemi o velikosti 27m2 / 20m2 / 16m2 a příručním skladem 18 m2 (v hlavní hale se sekčními vraty, možné rozšíření haly na 155m2), součástí je i soc. zázemí (šatna/sprcha/toaleta – 9m2 / 5 m2) viz foto půdorys.
Objekt je zateplen, vytápění všech místností novým kondenzačním plynovým kotlem (instalace kotle 2022).
Kanceláře zasíťovány, nainstalován alarm a bezpečností kamera.
Možnost provedení drobných úprav dle požadavků, celý areál oplocen, možnost parkování u objektu s vlastní manipulační plochou 448 m2.
Vhodné jako skladové prostory např. pro e-shop, autoservis, dílna apod. Výrobní objekt, výrobní hala pro různé procesy dle podnikatelského záměru.
K dispozici ihned
Cena: 150 kč/m2 + služby dle spotřeby
K dispozici je vytápěná hala se sekčními vraty o velikosti 137m2, přístup hlavním vjezdem areálu nebo vlastními vraty.
Objekt dále disponuje třemi kancelářemi o velikosti 27m2 / 20m2 / 16m2 a příručním skladem 18 m2 (v hlavní hale se sekčními vraty, možné rozšíření haly na 155m2), součástí je i soc. zázemí (šatna/sprcha/toaleta – 9m2 / 5 m2) viz foto půdorys.
Objekt je zateplen, vytápění všech místností novým kondenzačním plynovým kotlem (instalace kotle 2022).
Kanceláře zasíťovány, nainstalován alarm a bezpečností kamera.
Možnost provedení drobných úprav dle požadavků, celý areál oplocen, možnost parkování u objektu s vlastní manipulační plochou 448 m2.
Vhodné jako skladové prostory např. pro e-shop, autoservis, dílna apod. Výrobní objekt, výrobní hala pro různé procesy dle podnikatelského záměru.
K dispozici ihned
Cena: 150 kč/m2 + služby dle spotřeby
|
| |||||||||||||||||||||||||||||||
Kontaktovat inzerenta emailem
Kontaktovat emailem může pouze ověřený uživatel.
Ověření je zdarma.
Vaše telefonní číslo *
Kontaktovat emailem může pouze ověřený uživatel.
Ověření je zdarma.
Vaše telefonní číslo *




