Prodej nájemního domu, 1160 m², Šumperk, ul. nám. Míru
- [16.11. 2025]Smazat/ Upravit/ Topovat






























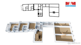
Exkluzivně nabízíme k prodeji měšťanský dům přímo na hlavním náměstí historického města Šumperk. Objekt o užitné ploše 1 160 m² má zpracovaný projekt na přestavbu na 12 moderních bytových jednotek a 3 komerční prostory. Navržený projekt počítá v 1. nadzemním podlaží s jednou bytovou jednotkou a třemi komerčními prostory. Tyto prostory disponují velkorysou výměrou a vysokými stropy, což je ideální pro reprezentativní sídla firem, showroomy nebo provozovny služeb. Ve 2. podlaží je plánováno pět bytů, ve 3. podlaží tři byty, přičemž některé z nich jsou navrženy jako mezonetové. Ve 4. podlaží pak vzniknou další tři byty. Lokalita nabízí silnou poptávku po nájemním bydlení a služby v centru jsou velmi žádané. Obestavěný prostor 6 255 m³ a zastavěná plocha 510 m² poskytují ideální základ pro výnosný developerský záměr. Šumperk je živé okresní město s kvalitní občanskou vybaveností, dobrou dostupností a rostoucím turistickým i investičním potenciálem.
Lokalita: nám. Míru, Šumperk
Evidenční číslo: 922890
Energetická náročnost : Třída G - Mimořádně nehospodárná
Lokalita: nám. Míru, Šumperk
Evidenční číslo: 922890
Energetická náročnost : Třída G - Mimořádně nehospodárná
|
| |||||||||||||||||||||||||||||||
Kontaktovat inzerenta emailem
Kontaktovat emailem může pouze ověřený uživatel.
Ověření je zdarma.
Vaše telefonní číslo *
Kontaktovat emailem může pouze ověřený uživatel.
Ověření je zdarma.
Vaše telefonní číslo *









