Prodej rodinného domu, 5+kk 131,9 m2, Červená Píska
- [17.11. 2025]Smazat/ Upravit/ Topovat




















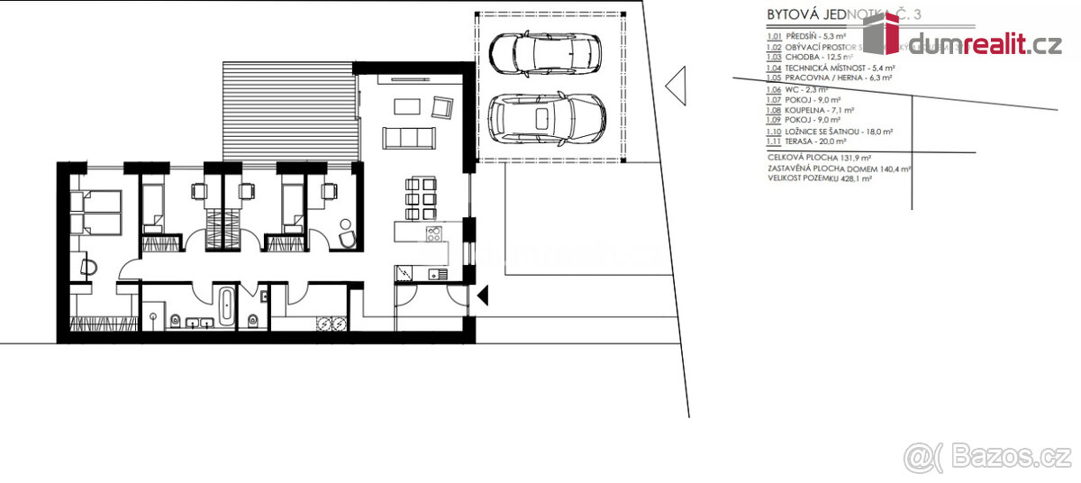
, exkluzivně prodej pasivního rodinného domu č. 4 o dispozici 5 +kk s užitnou plochou 130,6 m² a pozemkem 463,8 m² a domu č. 3. o dispozici 5 +kk s užitnou plochou 131,9 m² a pozemkem 428,1 m² v jedinečné lokalitě, která Vás doslova uchvátí. V případě zájmu jde koupit celý dvojdům. Jedná se o Rezidenční projekt v obci Červená Píska. Pokud se přijedete přesvědčit osobně na lokalitu, jistě pochopíte, proč tento projekt nese právě Jméno Oáza. Jde o velice atypický řešené nízkoenergetické dvojdomy, ve vysokých standardech, kde se klade důraz především na soukromí obou polovin domu. Dispozice domu: Přes zádveří je možné projít do menší otevřené šatny a odtud rovnou do obývacího pokoje s kuchyňským koutem. To může být velká výhoda pro ty z Vás, kteří pracujete z domu a nechcete si klienty, případně návštěvy vodit skrze celý dům. Z prostorného obýváku vede chodba, ze které jsou přístupné všechny ostatní místnosti v domě. Tedy pracovna, technická místnost , dva dětské pokoje, ložnice s vlastní šatnou a v neposlední řadě koupelna s vanou i sprchovým koutem a WC. Navíc je zde i samostatné WC s umyvadlem. U obývacího pokoje a ložnice je přímý vstup na terasu. Výhodou tohoto domu je, že má absolutní soukromí s výhledem do zeleně a v podstatě bez sousedů. Kolaudace již v srpnu 2023. Pokud si přejete bydlet v rezidenčním komplexu s přístupem k jezeru a dobrou dostupností nedaleko Prahy, pak je tento projekt třeba právě pro Vás. Z vedlejší obce Tišice jezdí vlak na Hlavní nádraží, po modernizaci tratě bude dojezd do 30 minut. Okresní město Mělník se nachází 7 kilometrů na severozápad, ráno je dosažitelné školním autobusem do 15 minut. Moderní mateřská škola je v obci Tuhaň, ZŠ je 2 km směrem k Mělníku ve vedlejší obci v Záboří. Populární jezero Konětopy a Lhota jsou vzdáleny 10 minut autem. Lokalita na západní straně přiléhá k obci, byť vzdálenost k nejbližšímu domu je více jak 200 metrů, na severní a východní straně se rozkládá volná krajina, na jižní straně přes silnici se nachází rozsáhlý lužní les. Volná krajina vybízí k dlouhým vycházkám, k projížďkám na horském kole či vyjížďkám na koni. V tomto speciálním místě, který je součástí budoucí rezidence na Červených Pískách, bych chtěl vyzdvihnout perfektní fungování a správu Obce Tuhaň, která po celý rok pořádá spoustu akcí pro všechny věkové kategorie. Obec Červená Píska spadá právě pod obec Tuhaň, odkud je možné se dostat do Letňan je 20-25 minut, na Černý most se dostanete přes Starou Boleslav a dálnici D10 za 30 minut. Domy jsou již napojeny na všechny inženýrské sítě - vodovod, jímka( připojení na tlakovou kanalizaci bude možné po navýšení kapacity čističky), elektřina a plyn. V současné době se již dokončuje zámková příjezdová komunikace a pracuje se terénních úpravách na pozemcích. Pro více informací kontaktujte makléře. Ev. číslo: 645598. Energetický štítek: A (78 kWh/m2/rok).
|
| |||||||||||||||||||||||||||||||
Kontaktovat inzerenta emailem
Kontaktovat emailem může pouze ověřený uživatel.
Ověření je zdarma.
Vaše telefonní číslo *
Kontaktovat emailem může pouze ověřený uživatel.
Ověření je zdarma.
Vaše telefonní číslo *