Prodej rodinného domu 3+1, 75 m², Koryčany
- TOP - [25.11. 2025]Smazat/ Upravit/ Topovat






























Naše společnost Vám nabízí ke koupi rodinný dům určený ke kompletní rekonstrukci v městě Koryčany.
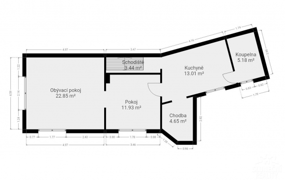
Dům má užitnou plochu 75 m².
Celková plocha pozemku 138 m².
Napojení na obecní vodovod, kanalizaci a elektřinu. Plynová přípojka před domem.
Aktuálně se buduje v ulici nová komunikace a bude probíhat připojení k optice. Zároveň se bude dělat nová přípojka kanalizace do domu.
Dům je rohový, v rámci řadové zástavby. Celkově o 2 nadzemních podlažích.
V přízemí se nachází dvě obytné místnosti, kuchyně, koupelna a předsíň. Ve 2.NP je jedna obytná místnost a nevyužitá půda.
Zdivo je smíšené, stav domu původní.
Na malém dvorku jsou dvě hospodářské místnosti a kvelbený sklep.
Dům se nachází v klidné části Koryčan, přitom jen necelých 500 od náměstí, kde je základní škola a obchody s potravinami. V sousedství se nachází rybník Kachník.
Město Koryčany se nachází v půlce cesty mezi Brnem a Uherským Hradištěm, na úpatí pohoří Chřiby.
Dominantou je místní barokní zámek.
Koryčany nabízí dotaci na demolici objektu ve výši 300 tis. Podmínkou je kolaudace nového domu na místě původního.
Počet obyvatel cca 2700. Ve městě jsou veškeré dostupné služby.
Pro více informací a prohlídky volejte makléře!
Dům má užitnou plochu 75 m².
Celková plocha pozemku 138 m².
Napojení na obecní vodovod, kanalizaci a elektřinu. Plynová přípojka před domem.
Aktuálně se buduje v ulici nová komunikace a bude probíhat připojení k optice. Zároveň se bude dělat nová přípojka kanalizace do domu.
Dům je rohový, v rámci řadové zástavby. Celkově o 2 nadzemních podlažích.
V přízemí se nachází dvě obytné místnosti, kuchyně, koupelna a předsíň. Ve 2.NP je jedna obytná místnost a nevyužitá půda.
Zdivo je smíšené, stav domu původní.
Na malém dvorku jsou dvě hospodářské místnosti a kvelbený sklep.
Dům se nachází v klidné části Koryčan, přitom jen necelých 500 od náměstí, kde je základní škola a obchody s potravinami. V sousedství se nachází rybník Kachník.
Město Koryčany se nachází v půlce cesty mezi Brnem a Uherským Hradištěm, na úpatí pohoří Chřiby.
Dominantou je místní barokní zámek.
Koryčany nabízí dotaci na demolici objektu ve výši 300 tis. Podmínkou je kolaudace nového domu na místě původního.
Počet obyvatel cca 2700. Ve městě jsou veškeré dostupné služby.
Pro více informací a prohlídky volejte makléře!
|
| |||||||||||||||||||||||||||||||
Kontaktovat inzerenta emailem
Kontaktovat emailem může pouze ověřený uživatel.
Ověření je zdarma.
Vaše telefonní číslo *
Kontaktovat emailem může pouze ověřený uživatel.
Ověření je zdarma.
Vaše telefonní číslo *









