PRONÁJEM KANCELÁŘE O CP CCA 11,70 M2, BRNO – KRÁLOVO POLE
- [21.11. 2025]Smazat/ Upravit/ Topovat






























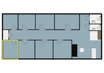
Nabízíme Vám k pronájmu moderní, světlou a nově vybudovanou kancelář o výměře cca 11,70 m2, která se nachází v prvním patře nově zrekonstruovaného komplexu v žádané lokalitě Brno – Královo Pole, jen několik minut chůze od Královopolského Tesca.
Součástí pronájmu je i jedno parkovací stání přímo před nabízeným objektem.
Celková plocha kanceláře činí cca 11,70 m2.
Prostor je ideální jako kancelář, výdejna e-shopu atd. V komplexu je možné pronajmout i další kanceláře. Součástí pronájmu jsou i sociální zařízení, kuchyňka a společné prostory.
Měsíční poplatky:
Nájem za prostory činí 7.120, -Kč měsíčně + DPH v zákonné výši.
Co se týče služeb, bude hrazena záloha ve výši 100,- Kč za komunální odpad. Ostatní služby budou fakturovány ze strany majitele v měsíčních intervalech dle skutečné spotřeby topení a elektřiny. Vodné a stočné bude fakturováno jednou za rok.
Kauce činí 10.000, - Kč.
Prostory jsou ihned k dispozici, klíče máme v RK.
Majitel má právo výběru nájemce.
Průkaz energetické náročnosti budovy není aktuálně k dispozici. V inzerci je dle legislativních požadavků uvedena en. třída G.
V případě dotazů či zájmu o prohlídku nás neváhejte kontaktovat na níže uvedeném čísle nebo e-mailu.
Více informací naleznete na WWW.CRG.AS
Součástí pronájmu je i jedno parkovací stání přímo před nabízeným objektem.
Celková plocha kanceláře činí cca 11,70 m2.
Prostor je ideální jako kancelář, výdejna e-shopu atd. V komplexu je možné pronajmout i další kanceláře. Součástí pronájmu jsou i sociální zařízení, kuchyňka a společné prostory.
Měsíční poplatky:
Nájem za prostory činí 7.120, -Kč měsíčně + DPH v zákonné výši.
Co se týče služeb, bude hrazena záloha ve výši 100,- Kč za komunální odpad. Ostatní služby budou fakturovány ze strany majitele v měsíčních intervalech dle skutečné spotřeby topení a elektřiny. Vodné a stočné bude fakturováno jednou za rok.
Kauce činí 10.000, - Kč.
Prostory jsou ihned k dispozici, klíče máme v RK.
Majitel má právo výběru nájemce.
Průkaz energetické náročnosti budovy není aktuálně k dispozici. V inzerci je dle legislativních požadavků uvedena en. třída G.
V případě dotazů či zájmu o prohlídku nás neváhejte kontaktovat na níže uvedeném čísle nebo e-mailu.
Více informací naleznete na WWW.CRG.AS
|
| |||||||||||||||||||||||||||||||
Kontaktovat inzerenta emailem
Kontaktovat emailem může pouze ověřený uživatel.
Ověření je zdarma.
Vaše telefonní číslo *
Kontaktovat emailem může pouze ověřený uživatel.
Ověření je zdarma.
Vaše telefonní číslo *









