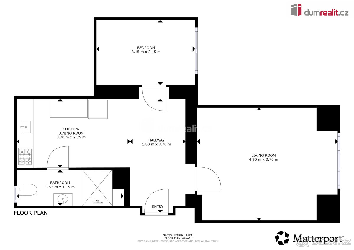
zděný byt 2 +1 , Luhačovice
- [22.11. 2025]Smazat/ Upravit/ Topovat




















+popl. 2300, , exkluzivní prodej bytu 2 +1 anebo 3 +Kk ve zděné lázeňské vile v krásné lokalitě Luhačovic.
Byt se nachází ve 2. nadzemním podlaží a vyplňuje celý východní půdorys prvorepublikové vily o 6- ti bytech. Rukopis a atmosféra vily je datována do meziválečných let.
Byt prošel před třemi lety kompletní rekonstrukcí - má nové stropy, nové podlahy, komplet elektroinstalaci, nové omítky, okna a zateplení ze severní strany.
Topení je zajištěno stropními elektrickými infrapanely.
Byt je užívaný jako rekreační bydlení, vybavený velmi vkusným nábytkem a samozřejmě i spotřebiči ( lednice, pračka, el. sporák s troubou )
Poloha a lokalita je nezaměnitelná, pár kroků do lázeňského parku, dostupnost centra, obchodů, pošty a bezproblémový přístup (escape) do volné přírody. Nejen lázně ale hlavně okolí Luhačovic - lesy, louky, procházky jsou vyjímečné.
Luhačovice jsou skvostné místo na léčení ducha a trávení volného času na mnoho způsobů.
Poloha domu a umístění bytu vybízí jak k trvalému bydlení, tak k relaxu či k velmi žádaným dlouhodobým či krátkodobým pronájmům.
Byt je připraven k nastěhování. Doporučuji k shlédnutí ! Ev. číslo: 652506. Energetický štítek: G
Byt se nachází ve 2. nadzemním podlaží a vyplňuje celý východní půdorys prvorepublikové vily o 6- ti bytech. Rukopis a atmosféra vily je datována do meziválečných let.
Byt prošel před třemi lety kompletní rekonstrukcí - má nové stropy, nové podlahy, komplet elektroinstalaci, nové omítky, okna a zateplení ze severní strany.
Topení je zajištěno stropními elektrickými infrapanely.
Byt je užívaný jako rekreační bydlení, vybavený velmi vkusným nábytkem a samozřejmě i spotřebiči ( lednice, pračka, el. sporák s troubou )
Poloha a lokalita je nezaměnitelná, pár kroků do lázeňského parku, dostupnost centra, obchodů, pošty a bezproblémový přístup (escape) do volné přírody. Nejen lázně ale hlavně okolí Luhačovic - lesy, louky, procházky jsou vyjímečné.
Luhačovice jsou skvostné místo na léčení ducha a trávení volného času na mnoho způsobů.
Poloha domu a umístění bytu vybízí jak k trvalému bydlení, tak k relaxu či k velmi žádaným dlouhodobým či krátkodobým pronájmům.
Byt je připraven k nastěhování. Doporučuji k shlédnutí ! Ev. číslo: 652506. Energetický štítek: G
|
| |||||||||||||||||||||||||||||||
Kontaktovat inzerenta emailem
Kontaktovat emailem může pouze ověřený uživatel.
Ověření je zdarma.
Vaše telefonní číslo *
Kontaktovat emailem může pouze ověřený uživatel.
Ověření je zdarma.
Vaše telefonní číslo *