Prodej komerčního prostoru, 191 m2, SNP, Ústí nad Labem
- [22.11. 2025]Smazat/ Upravit/ Topovat




















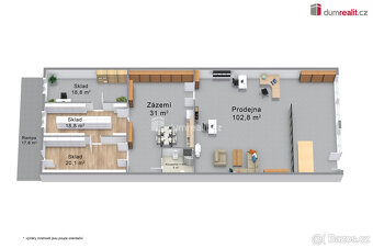
, Prodej nebytových prostor, 195 m² – Ústí nad Labem, SNP 3386 (centrum)
Nabízíme k prodeji prostorné nebytové prostory o celkové ploše 195 m², které se nacházejí v centru města Ústí nad Labem, ulice SNP 3386. Prostor je zcela volný bez nájemníka, připravený k okamžitému využití nebo k úpravám podle vašeho podnikání.
Popis prostoru:
• celková plocha 195 m²
• otevřená dispozice + zázemí
• více vstupů do objektu
• vhodné pro obchod, služby, sklad, showroom, kanceláře či gastro provoz
• prostor umožňuje stavební úpravy a přizpůsobení dle potřeb
Významná výhoda – nakládací rampa:
Za objektem se nachází nakládací rampa s možností vjezdu nákladních vozidel. Ideální pro zásobování, příjem zboží i provoz e-shopu nebo restaurace.
Lokalita – centrum Ústí n. L.:
• frekventovaná oblast se stabilním pohybem lidí
• blízkost obchodů, služeb, škol, restaurací a bank
• zastávky MHD v docházkové vzdálenosti
• snadné napojení na hlavní tahy města
• parkování v okolí
Vhodné pro:
• investory hledající stabilní komerční prostor
• podnikatele, kteří chtějí začít s provozem ihned
• firmy, kterým vyhovuje kombinace prodejny + skladu
• gastro provozy díky skvělé zásobovací rampě
Prostor je vhodný prakticky pro jakoukoli podnikatelskou činnost. Díky volnému stavu je možné ihned zahájit provoz nebo prostor upravit na míru.
Pro více informací a domluvení prohlídky mě prosím kontaktujte. Marcel Škuta – Reality Škutovi Ev. číslo: 653116. Energetický štítek: G
Nabízíme k prodeji prostorné nebytové prostory o celkové ploše 195 m², které se nacházejí v centru města Ústí nad Labem, ulice SNP 3386. Prostor je zcela volný bez nájemníka, připravený k okamžitému využití nebo k úpravám podle vašeho podnikání.
Popis prostoru:
• celková plocha 195 m²
• otevřená dispozice + zázemí
• více vstupů do objektu
• vhodné pro obchod, služby, sklad, showroom, kanceláře či gastro provoz
• prostor umožňuje stavební úpravy a přizpůsobení dle potřeb
Významná výhoda – nakládací rampa:
Za objektem se nachází nakládací rampa s možností vjezdu nákladních vozidel. Ideální pro zásobování, příjem zboží i provoz e-shopu nebo restaurace.
Lokalita – centrum Ústí n. L.:
• frekventovaná oblast se stabilním pohybem lidí
• blízkost obchodů, služeb, škol, restaurací a bank
• zastávky MHD v docházkové vzdálenosti
• snadné napojení na hlavní tahy města
• parkování v okolí
Vhodné pro:
• investory hledající stabilní komerční prostor
• podnikatele, kteří chtějí začít s provozem ihned
• firmy, kterým vyhovuje kombinace prodejny + skladu
• gastro provozy díky skvělé zásobovací rampě
Prostor je vhodný prakticky pro jakoukoli podnikatelskou činnost. Díky volnému stavu je možné ihned zahájit provoz nebo prostor upravit na míru.
Pro více informací a domluvení prohlídky mě prosím kontaktujte. Marcel Škuta – Reality Škutovi Ev. číslo: 653116. Energetický štítek: G
|
| |||||||||||||||||||||||||||||||
Kontaktovat inzerenta emailem
Kontaktovat emailem může pouze ověřený uživatel.
Ověření je zdarma.
Vaše telefonní číslo *
Kontaktovat emailem může pouze ověřený uživatel.
Ověření je zdarma.
Vaše telefonní číslo *