Prodej bytu 2kk s lodžií Praha 11
- [22.11. 2025]Smazat/ Upravit/ Topovat












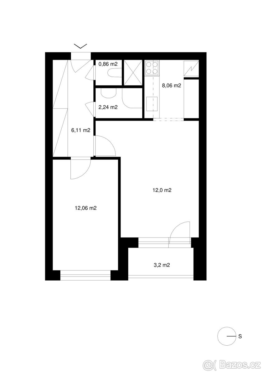
Světlý byt 2+kk s lodžií na Praze 4 – Jižní Město s bezbariérovým vstupem do domu v družstevním vlastnictví
Hledáte příjemné a světlé bydlení v klidné části města, ale zároveň s výbornou dostupností metra i přírody?
Pak by vás mohl zaujmout tento byt o dispozici 2+kk a celkové ploše 46 m², který se nachází ve 4. patře revitalizovaného panelového domu s bezbariérovým vstupem a dvěma výtahy.
Byt je orientovaný na východ, díky čemuž je velmi světlý a slunný
Je v původním, ale udržovaném stavu, takže si ho můžete zrekonstruovat podle svých představ.
Na podlaze je původní lino, v koupelně sprchový kout a kuchyňský kout je vhodný k rekonstrukci a modernizaci.
Z obývacího pokoje je vstup na útulnou lodžii o velikosti cca 3 m², kde si můžete vychutnat ranní kávu.
Součástí bytu je také komora na patře a sklepní kóje.
Dům je po kompletní revitalizaci – má novou fasádu, zateplení, vstupy i výtahy.
Energetická třída C.
Byt je v družstevním vlastnictví, anuita je splacena, převod do osobního vlastnictví je plánován na rok 2030.
Skvělá lokalita:
pár minut chůze od stanic metra Háje a Opatov,
v blízkosti veškerá občanská vybavenost – obchody, školy, školky, služby, pošta, poliklinika
Miličovský les a Hostivařská přehrada** v docházkové vzdálenosti – ideální pro procházky, sport i odpočinek.
Bytové družstvo velmi dobře hospodaří a má našetřeno dostatek financí. Převod do OV plánován roku 2030.
Hledáte příjemné a světlé bydlení v klidné části města, ale zároveň s výbornou dostupností metra i přírody?
Pak by vás mohl zaujmout tento byt o dispozici 2+kk a celkové ploše 46 m², který se nachází ve 4. patře revitalizovaného panelového domu s bezbariérovým vstupem a dvěma výtahy.
Byt je orientovaný na východ, díky čemuž je velmi světlý a slunný
Je v původním, ale udržovaném stavu, takže si ho můžete zrekonstruovat podle svých představ.
Na podlaze je původní lino, v koupelně sprchový kout a kuchyňský kout je vhodný k rekonstrukci a modernizaci.
Z obývacího pokoje je vstup na útulnou lodžii o velikosti cca 3 m², kde si můžete vychutnat ranní kávu.
Součástí bytu je také komora na patře a sklepní kóje.
Dům je po kompletní revitalizaci – má novou fasádu, zateplení, vstupy i výtahy.
Energetická třída C.
Byt je v družstevním vlastnictví, anuita je splacena, převod do osobního vlastnictví je plánován na rok 2030.
Skvělá lokalita:
pár minut chůze od stanic metra Háje a Opatov,
v blízkosti veškerá občanská vybavenost – obchody, školy, školky, služby, pošta, poliklinika
Miličovský les a Hostivařská přehrada** v docházkové vzdálenosti – ideální pro procházky, sport i odpočinek.
Bytové družstvo velmi dobře hospodaří a má našetřeno dostatek financí. Převod do OV plánován roku 2030.
|
| |||||||||||||||||||||||||||||||
Kontaktovat inzerenta emailem
Kontaktovat emailem může pouze ověřený uživatel.
Ověření je zdarma.
Vaše telefonní číslo *
Kontaktovat emailem může pouze ověřený uživatel.
Ověření je zdarma.
Vaše telefonní číslo *