Prodej bytu 3+kk, 78m2, terasa, parkovací stání, zahrádka (S
- TOP - [26.11. 2025]Smazat/ Upravit/ Topovat






























PRAKTICKÝ BYT S VLASTNÍM PARKOVACÍM STÁNÍM, TERASOU A MOŽNOSTÍ PŘEDZAHRÁDKY:
Představte si byt, který je navržený tak chytře, že nic nechybí a nic nepřebývá. Slunné místnosti orientované na jih, soukromá terasa s možností využití zahrady, promyšlené úložné prostory, dvě toalety, technická místnost, el. rolety a místo, kde každý detail dává smysl.
A k tomu Hostivice - jedno z nejžádanějších měst západně od Prahy, kde máte přírodu, obchody, lékaře, poštu, školu, školku a zkrátka veškerou občanskou vybavenost.
Níže naleznete všechny hlavní přednosti, díky kterým tento byt představuje ideální domov pro páry i rodiny, které chtějí žít kvalitně, moderně a bez kompromisů:
ŽIVOT V HOSTIVICI - DOMOV, KTERÝ SI ZAMILUJETE:
Hostivice je místo, kde se spojuje klid rodinného života s pohodlím města. Každé ráno otevřete dveře na terasu, cítíte čerstvý vzduch, slunce zalévá obývací pokoj a Vaše děti si ještě před školou můžou vyběhnout na zahradu.
A přesto jste během pár minut na Zličíně, ale i za pár minut v lese. Tento byt není jen o čtverečních metrech. Je o pocitu domova, bezpečí, klidu, pohodlí, světla a každodenní radosti.
HLAVNÍ PŘEDNOSTI (TOHLE SI ZAMILUJETE):
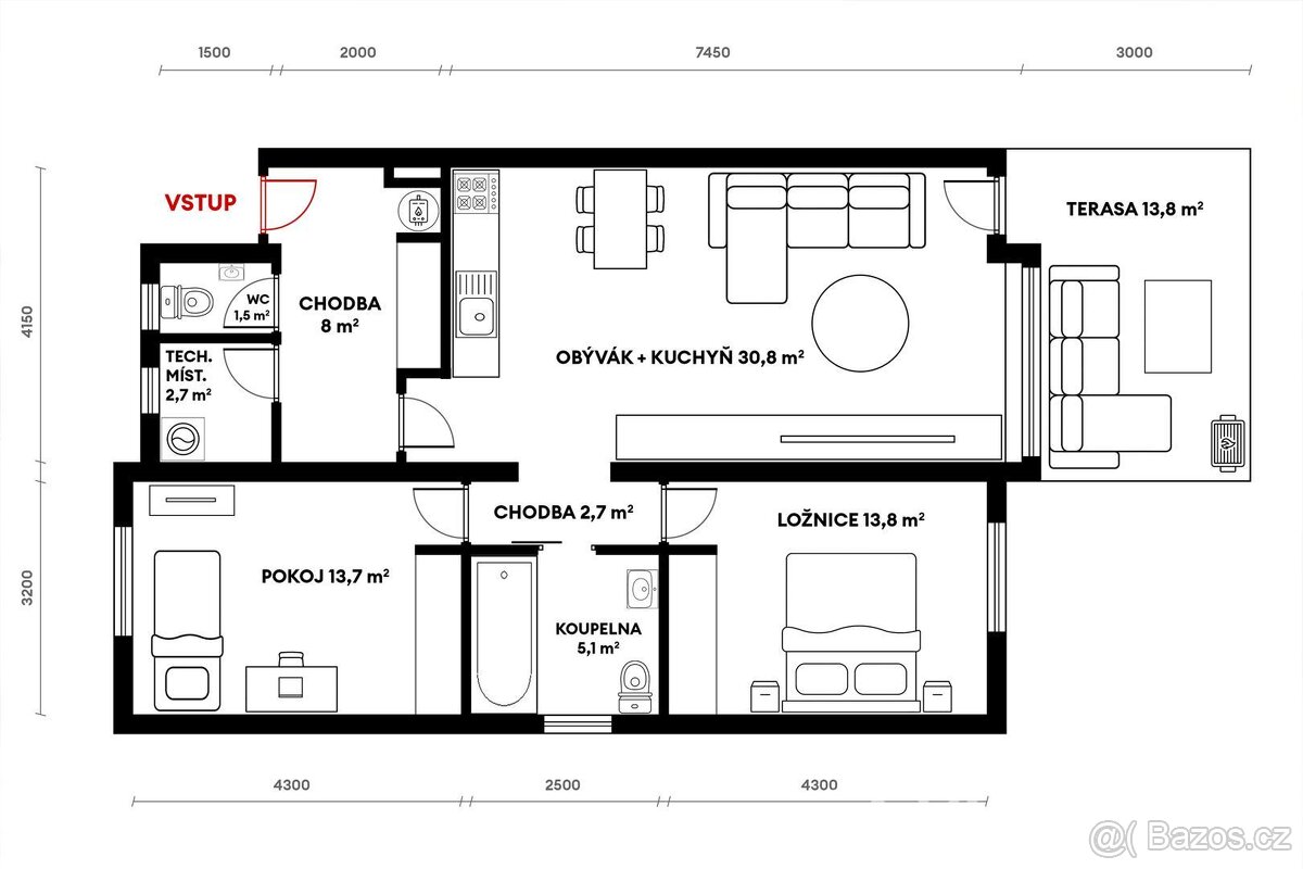
- Velkorysý obývací pokoj s kuchyní: 30,8 m2 otevřeného, vzdušného a světlého prostoru.
- Hlavní prostory orientované na jih: světlo po celý den, příjemná atmosféra a tepelný komfort.
- Terasa 13,8 m2: ranní káva, večerní posezení, grilování s přáteli.
- K dispozici drobná zahrada: na Vaši terasu navazuje zahrádka, kterou můžete užívat. Dle zvyklostí SVJ zahradu využívají 2 byty v přízemí, tzn. máte polovinu zahrady pro sebe a nemusíte za ni platit.
- Byt po povrchové rekonstrukci rovnou k nastěhování: nová plovoucí podlaha, čerstvá výmalba.
- Elektrické venkovní rolety na všech oknech: vyšší bezpečnost, soukromí, perfektní stínění.
- Technická místnost (2,7 m2) s přívodem vody a odpadem: pračka a sušička mimo obytné prostory.
- Dva záchody: velká výhoda pro rodiny i návštěvy.
- Výklenky na vestavné skříně v ložnici, pokoji i předsíni: maximální a efektivní využití prostoru.
- Vlastní parkovací místo: a spoustu další parkovacích míst přes ulici u Tesca, která jsou běžně dostupná.
- Odhlučňovací stěna: pro Váš klid je mezi domem a hlavní komunikací postavena odhlučňovací stěna.
- Nadstandardní sanita a kvalitní materiály: a koupelna vybavena vířivkou.
TECHNICKÉ ÚDAJE BYTU:
- Dispozice: 3+kk
- Podlahová plocha: cca 78 m2
- Obývací pokoj + kuchyň: 30,8 m2
- Ložnice: 13,8 m2
- Pokoj: 13,7 m2
- Koupelna: 5,1 m2
- WC: 1,5 m2
- Technická místnost: 2,7 m2
- Chodby celkem: 10,7 m2
- Terasa: 13,8 m2
- Parkovací stání: 1 vlastní stání a velké parkoviště přes ulici.
- Zahrada: sice společná, ale dle zvyklostí SVJ užívaná polovina Vámi
- Elektrické venkovní rolety
- Bezpečnostní čidla v bytě
- Sítě: elektřina, plyn, vodovod, kanalizace
- Kombi
Představte si byt, který je navržený tak chytře, že nic nechybí a nic nepřebývá. Slunné místnosti orientované na jih, soukromá terasa s možností využití zahrady, promyšlené úložné prostory, dvě toalety, technická místnost, el. rolety a místo, kde každý detail dává smysl.
A k tomu Hostivice - jedno z nejžádanějších měst západně od Prahy, kde máte přírodu, obchody, lékaře, poštu, školu, školku a zkrátka veškerou občanskou vybavenost.
Níže naleznete všechny hlavní přednosti, díky kterým tento byt představuje ideální domov pro páry i rodiny, které chtějí žít kvalitně, moderně a bez kompromisů:
ŽIVOT V HOSTIVICI - DOMOV, KTERÝ SI ZAMILUJETE:
Hostivice je místo, kde se spojuje klid rodinného života s pohodlím města. Každé ráno otevřete dveře na terasu, cítíte čerstvý vzduch, slunce zalévá obývací pokoj a Vaše děti si ještě před školou můžou vyběhnout na zahradu.
A přesto jste během pár minut na Zličíně, ale i za pár minut v lese. Tento byt není jen o čtverečních metrech. Je o pocitu domova, bezpečí, klidu, pohodlí, světla a každodenní radosti.
HLAVNÍ PŘEDNOSTI (TOHLE SI ZAMILUJETE):
- Velkorysý obývací pokoj s kuchyní: 30,8 m2 otevřeného, vzdušného a světlého prostoru.
- Hlavní prostory orientované na jih: světlo po celý den, příjemná atmosféra a tepelný komfort.
- Terasa 13,8 m2: ranní káva, večerní posezení, grilování s přáteli.
- K dispozici drobná zahrada: na Vaši terasu navazuje zahrádka, kterou můžete užívat. Dle zvyklostí SVJ zahradu využívají 2 byty v přízemí, tzn. máte polovinu zahrady pro sebe a nemusíte za ni platit.
- Byt po povrchové rekonstrukci rovnou k nastěhování: nová plovoucí podlaha, čerstvá výmalba.
- Elektrické venkovní rolety na všech oknech: vyšší bezpečnost, soukromí, perfektní stínění.
- Technická místnost (2,7 m2) s přívodem vody a odpadem: pračka a sušička mimo obytné prostory.
- Dva záchody: velká výhoda pro rodiny i návštěvy.
- Výklenky na vestavné skříně v ložnici, pokoji i předsíni: maximální a efektivní využití prostoru.
- Vlastní parkovací místo: a spoustu další parkovacích míst přes ulici u Tesca, která jsou běžně dostupná.
- Odhlučňovací stěna: pro Váš klid je mezi domem a hlavní komunikací postavena odhlučňovací stěna.
- Nadstandardní sanita a kvalitní materiály: a koupelna vybavena vířivkou.
TECHNICKÉ ÚDAJE BYTU:
- Dispozice: 3+kk
- Podlahová plocha: cca 78 m2
- Obývací pokoj + kuchyň: 30,8 m2
- Ložnice: 13,8 m2
- Pokoj: 13,7 m2
- Koupelna: 5,1 m2
- WC: 1,5 m2
- Technická místnost: 2,7 m2
- Chodby celkem: 10,7 m2
- Terasa: 13,8 m2
- Parkovací stání: 1 vlastní stání a velké parkoviště přes ulici.
- Zahrada: sice společná, ale dle zvyklostí SVJ užívaná polovina Vámi
- Elektrické venkovní rolety
- Bezpečnostní čidla v bytě
- Sítě: elektřina, plyn, vodovod, kanalizace
- Kombi
|
| |||||||||||||||||||||||||||||||
Kontaktovat inzerenta emailem
Kontaktovat emailem může pouze ověřený uživatel.
Ověření je zdarma.
Vaše telefonní číslo *
Kontaktovat emailem může pouze ověřený uživatel.
Ověření je zdarma.
Vaše telefonní číslo *









