Prodej, obchodní prostory Ostravice
- [24.11. 2025]Smazat/ Upravit/ Topovat






























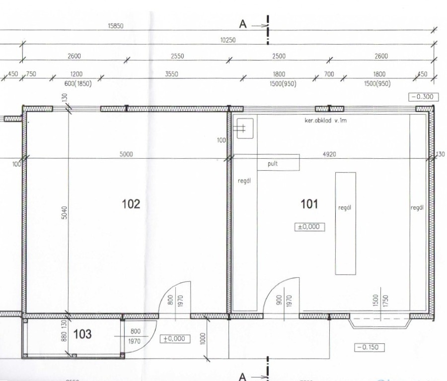
Nabídka prodeje komerčních/obchodních prostor na Ostravici s celkovou podlahovou plochou 54 m2.
Jedná se o nemovitost, která se nachází přímo v srdci obce Ostravice a dlouhá léta sloužila jako prodejna ovoce a zeleniny. Strategická poloha přímo u hlavní silnice, vedle obecního úřadu, lékařských ordinací, v blízkosti pošty, základní školy, vlakového nádraží a s dostatečnými místy pro parkování dělá tuto nabídku velice atraktivní.
Stavbu tvoří 4 prostorové UNIMO buňky s kovovou nosnou konstrukcí, s opláštěním z vnitřně zateplených dřevotřískových desek a venkovním obložením dřevěnými palubkami. Dispozičně je řešena jako prodejna s veškerým potřebným vybavením, skladové prostory a úložný prostor, každý se samostatným vstupem.
Nemovitost je postavena na pozemku ve vlastnictví lesů ČR, což je ošetřeno opakovanou, dlouholetou nájemní smlouvou. Je napojena na elektřinu a obecní vodovod. Odpady jsou svedeny do jímky s trativodem s možností napojení na kanalizaci.
Pokud přemýšlíte, že byste chtěli být vlastním pánem, nebo hledáte prostory pro rozšíření vašeho podnikání, tak zde je jedinečná příležitost.
Ostravice sice nabízí opravdu velkou škálu služeb, přesto zde něco chybí………..svůj tip vám ráda prozradím na osobní prohlídce.
Zavolejte mi pro rezervaci termínu a bližší informace.
Jedná se o nemovitost, která se nachází přímo v srdci obce Ostravice a dlouhá léta sloužila jako prodejna ovoce a zeleniny. Strategická poloha přímo u hlavní silnice, vedle obecního úřadu, lékařských ordinací, v blízkosti pošty, základní školy, vlakového nádraží a s dostatečnými místy pro parkování dělá tuto nabídku velice atraktivní.
Stavbu tvoří 4 prostorové UNIMO buňky s kovovou nosnou konstrukcí, s opláštěním z vnitřně zateplených dřevotřískových desek a venkovním obložením dřevěnými palubkami. Dispozičně je řešena jako prodejna s veškerým potřebným vybavením, skladové prostory a úložný prostor, každý se samostatným vstupem.
Nemovitost je postavena na pozemku ve vlastnictví lesů ČR, což je ošetřeno opakovanou, dlouholetou nájemní smlouvou. Je napojena na elektřinu a obecní vodovod. Odpady jsou svedeny do jímky s trativodem s možností napojení na kanalizaci.
Pokud přemýšlíte, že byste chtěli být vlastním pánem, nebo hledáte prostory pro rozšíření vašeho podnikání, tak zde je jedinečná příležitost.
Ostravice sice nabízí opravdu velkou škálu služeb, přesto zde něco chybí………..svůj tip vám ráda prozradím na osobní prohlídce.
Zavolejte mi pro rezervaci termínu a bližší informace.
|
| |||||||||||||||||||||||||||||||
Kontaktovat inzerenta emailem
Kontaktovat emailem může pouze ověřený uživatel.
Ověření je zdarma.
Vaše telefonní číslo *
Kontaktovat emailem může pouze ověřený uživatel.
Ověření je zdarma.
Vaše telefonní číslo *









