Prodej bytu (49 m2) na ulici Bolotova, Ostrava - Zábřeh
- [24.11. 2025]Smazat/ Upravit/ Topovat






























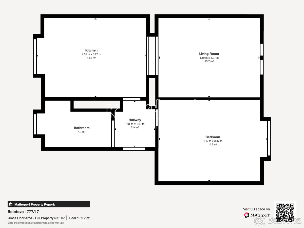
Nabízíme k prodeji útulný družstevní byt 2 + 1 o užitné ploše 49 m², nacházející se ve druhém nadzemním podlaží čtyřpodlažního cihlového domu po revitalizaci v bezprostřední blízkosti Bělského lesa. Byt je v původním stavu, připraven k úpravám dle představ nového majitele. Dispozičně je byt řešen prostornou kuchyní, obývací pokojem s přístupem na novou zasklenou lodžii o velikosti 5m², ložnicí a koupelnou spojenou s WC a vanou. K bytu náleží také praktický, nově opravený sklep o velikosti 7 m².
Fond oprav činí 2.600 Kč. Celkové náklady dle evidenčního listu jsou 3.397 Kč. K tomu je nutné připočíst náklady na elektřinu a plyn. Jednorázový poplatek za převod družstevního podílu činí 1.000 Kč.
Objekt je napojen na vodovod a kanalizaci. Topení a ohřev teplé vody je zajištěn plynovým kotlem. Dům je zateplený a prošel revitalizací v roce 2023. Nemovitost leží v atraktivní části obce Zábřeh v Ostravě, v blízkosti veškeré občanské vybavenosti, jako jsou školy, obchody a další služby. Klidné a příjemné prostředí činí tuto lokalitu ideální volbou pro jednotlivce, páry nebo menší rodinu hledající útulné bydlení.
V případě zájmu o prohlídku nás neváhejte kontaktovat. Financování této nabídky zajistíme prostřednictvím našeho finančního specialisty.
Hlavní výhody bytu?
✅ Možnost rekonstrukce dle vlastních potřeb
✅ Nová zasklená lodžie o velikosti 5m²
✅ Velký a čistý sklep o velikosti 7m²
✅ Příznivé měsíční náklady: pouze 3.397 Kč + elektřina a plyn
✅ Udržovaný a čistý dům po revitalizaci
✅ Výborná občanská vybavenost – obchody, lékárna, škola, školka, aquapark
✅ Blízkost Bělského lesa - velké množství volnočasových aktivit
Uvedené výměry jsou orientační. V případě více zájemců bude nemovitost prodána nejlepší nabídce a majitel si vyhrazuje právo vybrat kupujícího na základě jím zvolených kritérií. Veškeré zveřejněné údaje obsažené v tomto inzerátu mají pouze informativní charakter a nejsou nabídkou ve smyslu § 1731 nebo § 1732 občanského zákoníku, ani se nejedná o veřejný příslib dle § 1733 občanského zákoníku.
ev.č.: 5775
třída energetické náročnosti budovy: D - Méně úsporná
dle vyhlášky č.264/2020 Sb.
vlastnictví: Družstevní
druh objektu: Smíšená
stav objektu: Dobrý
užitná plocha (m2): 49
číslo podlaží v objektu: 2
počet podlaží objektu: 4
celková podlahová plocha (m2): 60
Fond oprav činí 2.600 Kč. Celkové náklady dle evidenčního listu jsou 3.397 Kč. K tomu je nutné připočíst náklady na elektřinu a plyn. Jednorázový poplatek za převod družstevního podílu činí 1.000 Kč.
Objekt je napojen na vodovod a kanalizaci. Topení a ohřev teplé vody je zajištěn plynovým kotlem. Dům je zateplený a prošel revitalizací v roce 2023. Nemovitost leží v atraktivní části obce Zábřeh v Ostravě, v blízkosti veškeré občanské vybavenosti, jako jsou školy, obchody a další služby. Klidné a příjemné prostředí činí tuto lokalitu ideální volbou pro jednotlivce, páry nebo menší rodinu hledající útulné bydlení.
V případě zájmu o prohlídku nás neváhejte kontaktovat. Financování této nabídky zajistíme prostřednictvím našeho finančního specialisty.
Hlavní výhody bytu?
✅ Možnost rekonstrukce dle vlastních potřeb
✅ Nová zasklená lodžie o velikosti 5m²
✅ Velký a čistý sklep o velikosti 7m²
✅ Příznivé měsíční náklady: pouze 3.397 Kč + elektřina a plyn
✅ Udržovaný a čistý dům po revitalizaci
✅ Výborná občanská vybavenost – obchody, lékárna, škola, školka, aquapark
✅ Blízkost Bělského lesa - velké množství volnočasových aktivit
Uvedené výměry jsou orientační. V případě více zájemců bude nemovitost prodána nejlepší nabídce a majitel si vyhrazuje právo vybrat kupujícího na základě jím zvolených kritérií. Veškeré zveřejněné údaje obsažené v tomto inzerátu mají pouze informativní charakter a nejsou nabídkou ve smyslu § 1731 nebo § 1732 občanského zákoníku, ani se nejedná o veřejný příslib dle § 1733 občanského zákoníku.
ev.č.: 5775
třída energetické náročnosti budovy: D - Méně úsporná
dle vyhlášky č.264/2020 Sb.
vlastnictví: Družstevní
druh objektu: Smíšená
stav objektu: Dobrý
užitná plocha (m2): 49
číslo podlaží v objektu: 2
počet podlaží objektu: 4
celková podlahová plocha (m2): 60
|
| |||||||||||||||||||||||||||||||
Kontaktovat inzerenta emailem
Kontaktovat emailem může pouze ověřený uživatel.
Ověření je zdarma.
Vaše telefonní číslo *
Kontaktovat emailem může pouze ověřený uživatel.
Ověření je zdarma.
Vaše telefonní číslo *
Podobné inzeráty
PRODEJ BYTU 3+1, MAROLDOVA, OSTRAVA - TOP - [25.11. 2025]V zastoupení majitele, nabízím k prodeji krásný byt 3+1 s balkónem v osobním vlastnictví, 69 m2, ul. Maroldova, Ostrava, 7NP/8NP. Byt prošel v minulosti kompletní rekonstrukcí.
Pro více info a prohlídku volejte.
3 999 000 Kč
Ostrava
700 30
700 30
57 x
Označit špatný inzerát Chybnou kategorii Ohodnotit uživatele Smazat/Upravit/Topovat
Prodej 2+1, Ostrava - Hrabůvka, ul. Fr. Hajdy, lodžie, 52 m2 - [25.11. 2025]Ve výhradním zastoupení vlastníka družstevního podílu nabízíme k prodeji družstevní byt 2+1 s možností převodu do osobního vlastnictví, na ulici Fr. Hajdy v Ostravě - Hrabůvce. Byt o výměře 52 m2, s lodžií, se nachází ve 2. nadzemním podlaží (1. patr ...
3 199 000 Kč
Ostrava
700 30
700 30
32 x
Označit špatný inzerát Chybnou kategorii Ohodnotit uživatele Smazat/Upravit/Topovat
Prodej bytu 2+1 o rozloze 56 m², ulice Horní, Ostrava - Hrab - [25.11. 2025]Ev.č. 00438
Prodej bytu 2+1 s balkonem – Ostrava-Hrabůvka
Každý den tu může začínat i končit na prostorném balkonu – u šálku kávy, v klidu vlastního prostoru a s příjemným pocitem domova. Nabízím k prodeji světlý a promyšleně řešený byt 2+1 o veli ...
3 499 650 Kč
Ostrava
700 30
700 30
27 x
Označit špatný inzerát Chybnou kategorii Ohodnotit uživatele Smazat/Upravit/Topovat
Prodej bytu 2+1, 44 m2, ul. J. Matuška, Ostrava - [25.11. 2025]Nabízíme k prodeji pěkný byt 2+1, podlahová plocha 43,48 m2, nacházející se v 6. podlaží osmipodlažního domu na ul. Jaromíra Matuška v Ostravě.
Bytová jednotka prošla v roce 2022 kompletní rekonstrukcí - Původní jádro bylo nahrazeno zděným, vznikla ...
3 290 000 Kč
Ostrava
700 30
700 30
49 x
Označit špatný inzerát Chybnou kategorii Ohodnotit uživatele Smazat/Upravit/Topovat
Prodej bytu 3+1 v osobním vlastnictví s lodžií, 68,87 m² – u - [24.11. 2025]Hledáte byt na skvělém místě, který si můžete upravit podle sebe?
Nabízíme ke koupi byt v osobním vlastnictví o dispozici 3+1 s lodžií a sklepem, o celkové ploše 68,87 m², nacházející se v klidné a vyhledávané části Ostravy – ulice Písečná.
Byt je s ...
3 890 000 Kč
Ostrava
700 30
700 30
69 x
Označit špatný inzerát Chybnou kategorii Ohodnotit uživatele Smazat/Upravit/Topovat
Prodej bytu 2+1, 53 m², Ostrava, ul. Alejnikovova - [24.11. 2025]Nabízíme k prodeji prostorný a světlý byt 2+1 se zasklenou lodžií, který se nachází ve 2. NP cihlového domu po kompletní revitalizaci. Byt je ve velmi dobrém stavu a ideální jak k vlastnímu bydlení, tak i jako investice.
V bytě proběhly úpravy:
no ...
2 950 000 Kč
Ostrava
700 30
700 30
67 x
Označit špatný inzerát Chybnou kategorii Ohodnotit uživatele Smazat/Upravit/Topovat
Prodej investičního bytu 3+1 s balkónem , 70m2, Ostrava - [24.11. 2025]Ve výhradním zastoupení majitele, nabízím k prodeji investiční byt 3+1 s balkónem, za zajímavou cenu, na ulici Jaromíra Matuška o celkové výměře 70m2, ve druhém podlaží domu. Byt je v původním stavu, připravený k rekonstrukci, momentálně ve stavu stě ...
2 899 000 Kč
Ostrava
700 30
700 30
125 x
Označit špatný inzerát Chybnou kategorii Ohodnotit uživatele Smazat/Upravit/Topovat
Prodej družstevního bytu 3+1[77m2] s lodžií, ulice Hulvácká, - [24.11. 2025]Naše společnost vám exkluzivně nabízí ke koupi družstevní byt 3+1 s proskleným balkonem, který se nachází v 1. patře revitalizovaného panelového domu v lokalitě Ostrava-Zábřeh.
Byt prošel rekonstrukcí – zděné jádro, samostatná koupelna s vanou, záv ...
3 390 000 Kč
Ostrava
700 30
700 30
56 x
Označit špatný inzerát Chybnou kategorii Ohodnotit uživatele Smazat/Upravit/Topovat
Prodej bytu 3+1, 63 m², Ostrava, ul. Mitušova - [24.11. 2025]Exkluzivně Vám nabízíme k prodeji prostorný družstevní byt bez možností převodu do OV. Jedná se o dispozici 3+1 o užitné ploše 63 m², situovaný v klidné části Hrabůvky.
Byt se nachází ve 3. patře čtyřpodlažního cihlového domu (bez výtahu) po revital ...
2 920 000 Kč
Ostrava
700 30
700 30
74 x
Označit špatný inzerát Chybnou kategorii Ohodnotit uživatele Smazat/Upravit/Topovat
Prodej byt 3+1, Emanuela Podgorného, Ostrava - [24.11. 2025]Cena včetně všech poplatků RK a advokátní úschovy. Tento prostorný byt 3+1 o velikosti 71 m2 s lodžií a sklepem v osobním vlastnictví na ulici Emanuela Podgorného v Ostravě právě prochází kompletní rekonstrukcí a Vám dává jedinečnou možnost zasáhnout ...
4 799 000 Kč
Ostrava
700 30
700 30
63 x
Označit špatný inzerát Chybnou kategorii Ohodnotit uživatele Smazat/Upravit/Topovat









