Kmerční prostor 200m2, Na Valtické
- [25.11. 2025]Smazat/ Upravit/ Topovat




















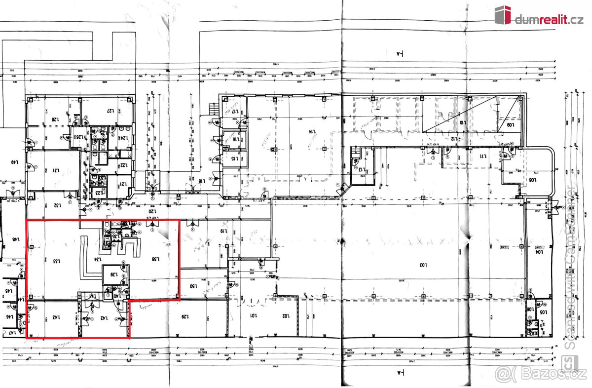
(+ zálohy na energie), Dumrealit.cz Vám zprostředkuje pronájem komerčního prostoru 200m². Nabízený prostor se nachází v budově v centru sídliště Na Valtické, ale kousek od hlavní cesty. V prostoru je zabudována vzduchotechnika a klimatizace. Velkou výhodou je s neomezený přístup 24/7 a dostatek parkovacích míst pro zákazníky i nakládky či vykládky zboží. V případě potřeby je možné využít přístup z nákladní rampy. Prostor je možné si upravit, rozdělit, přizpůsobit dle svých představ a potřeb dle záměru podnikání. Přímo v prostoru se nachází 3 x WC, sklad 6m². V případě potřeby je možné zbourat stávající příčky a vznikne tak jeden velký prostor. Prostor má vlastní podružný měřič elektřiny a vody. Nájemné činí 20.000,- Kč měsíčně, zálohy na energie a služby 7.000,- Kč. Při podpisu smlouvy bude požadována úhrada vratné kauce ve výši 54.000,- Kč, nájemné, zálohy na energie a služby a provize RK 1měsíční nájemné +DPH. Prostor je volný, k okamžitému pronájmu. V případě dotazů či domluvení prohlídky kontaktujte makléře. Ev. číslo: 652581. Energetický štítek: G
|
| |||||||||||||||||||||||||||||||
Kontaktovat inzerenta emailem
Kontaktovat emailem může pouze ověřený uživatel.
Ověření je zdarma.
Vaše telefonní číslo *
Kontaktovat emailem může pouze ověřený uživatel.
Ověření je zdarma.
Vaše telefonní číslo *