Prodej řadového rodinného domu 5+kk v Těšově u UB s pozemkem
- [25.11. 2025]Smazat/ Upravit/ Topovat




















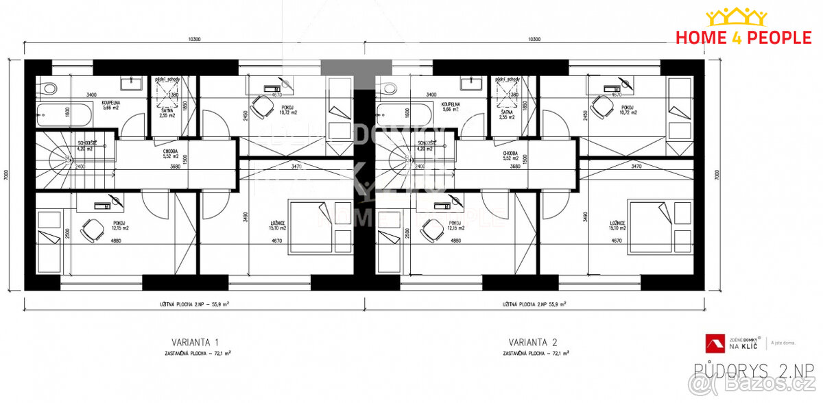
Cena včetně výstavby RD, IS, příjezdové komunikace a DPH., Zprostředkujeme Vám exkluzivní prodej zděného řadového rodinného domu typu ROW120+G o velikosti 5+kk 120 m² v Uherském Brodě části Těšov. Patrový dům ROW120 je typ rodinného domu vhodný do rovinatého, ale i mírně svažitého terénu. Součásti uvedené ceny, která již zahrnuje DPH je dům na klíč, inženýrské sítě včetně připojeného místa EDG (EON), mimo plynu, příjezdová komunikace, veřejné osvětlení, pozemek a veškeré projektové práce a stavební povolení. Přípojná místa budou vyvedena na pozemku. Pozemek (číslo.7) o rozloze 636 m² je na klidném místě obce. Šíře pozemku je 10,3 m. Navíc k nabízenému pozemku je i podíl na dalším pozemku za zahradou. Dle územního plánu je pozemek veden a schválen pro rodinné bydlení. Jedná se o zděnou stavbu a nabízí se ve variantě na klíč. Topení je řešeno nízko nákladovým podlahovým topením, rekuperací a fotovoltaickými panely. Uvedená cena domu obsahuje základovou desku, DPH a stavba bude provedena na klíč a předána po kolaudaci k okamžitému užívání. Parametry domu: užitná plocha 120 m² zastavěná plocha domu 72 m². V přízemí domu se nachází hlavní obytný prostor s odděleným kuchyňským koutem, sklad, úložný prostor pod schodištěm, technickou místnost a 2x WC s umyvadlem dvě samostatné zařízené koupelny, pracovna a praktická místnost třeba pro zahradní nábytek. V patře se nachází 3 pokoje, koupelna s WC a šatna. V blízkosti je veškerá občanská vybavenost. Možnost vybudovat na úkor pracovny garáž. Dotaci na fotovoltaické panely vyřídíme. Projekt zahrnuje výstavbu 10 domů. (Součástí ceny není kuchyňská linka a světla – dokážeme za zvýhodněných podmínek zajistit přes naše dodavatele). Financování zajišťujeme a můžete využití našich služeb, při prodeji Vaší nemovitosti. Doporučuji! Ev. číslo: 29908. Energetický štítek: A (39 kWh/m2/rok).
|
| |||||||||||||||||||||||||||||||
Kontaktovat inzerenta emailem
Kontaktovat emailem může pouze ověřený uživatel.
Ověření je zdarma.
Vaše telefonní číslo *
Kontaktovat emailem může pouze ověřený uživatel.
Ověření je zdarma.
Vaše telefonní číslo *
Podobné inzeráty
Prodej řadového rodinného domu 4+kk s garáží v Těšově u UB s - [25.11. 2025]Cena včetně výstavby RD, IS, příjezdové komunikace a DPH., Zprostředkujeme Vám exkluzivní prodej řadového rodinného domu typu ROW 120+G o velikosti 4+kk s garáží o podlahové výměře 120 m² v Uherském Brodě části Těšov. Součásti uvedené ceny, která již ...
8 750 400 Kč
Uherské Hradiště
687 34
687 34
33 x
Označit špatný inzerát Chybnou kategorii Ohodnotit uživatele Smazat/Upravit/Topovat
Prodej rodinného domu 4+kk s dvojgaráží v Uherskěm Brodě - T - [14.11. 2025]Cena včetně výstavby RD, IS, příjezdové komunikace a DPH., Zprostředkujeme Vám exkluzivní prodej rodinného domu typu Avalon o velikosti 4+kk s dvoj garáží, nebo jako 5+kk o podlahové výměře 162 m² v Uherském Brodě části Těšov. Rodinný dům Avalon je t ...
11 525 000 Kč
Uherské Hradiště
687 34
687 34
161 x
Označit špatný inzerát Chybnou kategorii Ohodnotit uživatele Smazat/Upravit/Topovat
Rodinný dům Uherský Brod – Těšov - [12.11. 2025]Prodej rodinného domu 4+1 se zahradou a terasou
– zděný, patrový, řadový, podsklepený rodinný dům
– zastavěná plocha 182 m² , pozemek 916 m²
Dispozice domu :
přízemí – vstupní hala, chodba, koupelna se sprchou, WC, pokoj se šatnou, schodiště, kot ...
7 790 000 Kč
Uherské Hradiště
687 34
687 34
186 x
Označit špatný inzerát Chybnou kategorii Ohodnotit uživatele Smazat/Upravit/Topovat
Prodej rodinného půldomu 4+kk v Uherskěm Brodě - Těšov s poz - [4.11. 2025]Cena včetně výstavby RD, IS, příjezdové komunikace a DPH., Zprostředkujeme Vám exkluzivní prodej projektu půldomu o velikosti 4+kk o podlahové výměře 118 m² v Uherském Brodě části Těšov. Součásti uvedené ceny, která již zahrnuje DPH je dům na klíč, i ...
8 725 050 Kč
Uherské Hradiště
687 34
687 34
187 x
Označit špatný inzerát Chybnou kategorii Ohodnotit uživatele Smazat/Upravit/Topovat
Prodej rodinného domu 4+kk v Uherském Brodě - Těšov s pozeme - [3.11. 2025]Cena včetně stavby RD, IS, příjezdové komunikace a DPH., Zprostředkujeme Vám exkluzivní prodej domu na klíč typu Markéta o velikosti 4+kk o podlahové výměře 94 m² v Uherském Brodě části Těšov. Součásti uvedené ceny, která již zahrnuje DPH je dům v pr ...
8 435 500 Kč
Uherské Hradiště
687 34
687 34
240 x
Označit špatný inzerát Chybnou kategorii Ohodnotit uživatele Smazat/Upravit/Topovat
Prodej rodinného domu 4+kk v Uherskěm Brodě - Těšov s pozeme - [3.11. 2025]Cena včetně výstavby RD, IS, příjezdové komunikace a DPH., Zprostředkujeme Vám exkluzivní prodej rodinného domu typu Viola o velikosti 4+kk o podlahové výměře 96 m² v Uherském Brodě části Těšov. Rodinný dům VIOLA je typ rodinného domu vhodný do rovin ...
8 860 000 Kč
Uherské Hradiště
687 34
687 34
183 x
Označit špatný inzerát Chybnou kategorii Ohodnotit uživatele Smazat/Upravit/Topovat