Pronájem obchodního prostoru 118 m2, Kácov
- [25.11. 2025]Smazat/ Upravit/ Topovat
























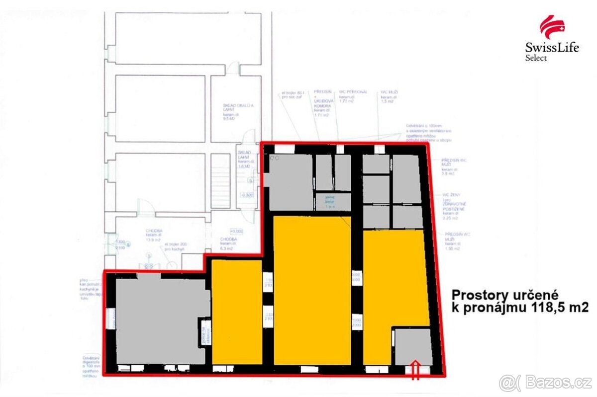
Pronájem komerčních prostor 118 m2 v Kácově
Nabízím Vám možnost výhodného pronájmu komerčního prostoru v centru městyse Kácov, jednoho z center středního Posázaví. Prostory v 1. NP nejsou v současné době vybavena nábytkem. Objekt je napojen na veřejný rozvod vody a kanalizace. Topení zajišťuje UT s elektrickým kotlem OHŘEV tuv je el. boilerem. Parkování je před objektem v ulici. Objekt je cca 50 m od náměstí a 250 m od řeky Sázavy a jeho pronájem není ničím podmíněn. Majitelé by uvítaly tišší provoz. V případě zájmu o prohlídku této nemovitosti mne kontaktujte. Třída energetické náročnosti: D - méně úsporná (dle ) Cena: 10 000 Kč/měs
Nabízím Vám možnost výhodného pronájmu komerčního prostoru v centru městyse Kácov, jednoho z center středního Posázaví. Prostory v 1. NP nejsou v současné době vybavena nábytkem. Objekt je napojen na veřejný rozvod vody a kanalizace. Topení zajišťuje UT s elektrickým kotlem OHŘEV tuv je el. boilerem. Parkování je před objektem v ulici. Objekt je cca 50 m od náměstí a 250 m od řeky Sázavy a jeho pronájem není ničím podmíněn. Majitelé by uvítaly tišší provoz. V případě zájmu o prohlídku této nemovitosti mne kontaktujte. Třída energetické náročnosti: D - méně úsporná (dle ) Cena: 10 000 Kč/měs
|
| |||||||||||||||||||||||||||||||
Kontaktovat inzerenta emailem
Kontaktovat emailem může pouze ověřený uživatel.
Ověření je zdarma.
Vaše telefonní číslo *
Kontaktovat emailem může pouze ověřený uživatel.
Ověření je zdarma.
Vaše telefonní číslo *



