Prodej domu Svojetice Realitní kancelář nevolat
- [25.11. 2025]Smazat/ Upravit/ Topovat


















Nabízíme k prodeji útulný dvou generací rodinný dům ve Svojeticích. Tato nemovitost je skvělou příležitostí pro ty, kteří hledají klidné bydlení v krásné krajině, zároveň však s dobrým dosahem hlavního města.
Svojetice jsou malebná obec v okrese Praha-východ ve Středočeském kraji, vzdálená přibližně 28 kilometrů jihovýchodně od centra Prahy a 7 kilometrů východně od Říčan.
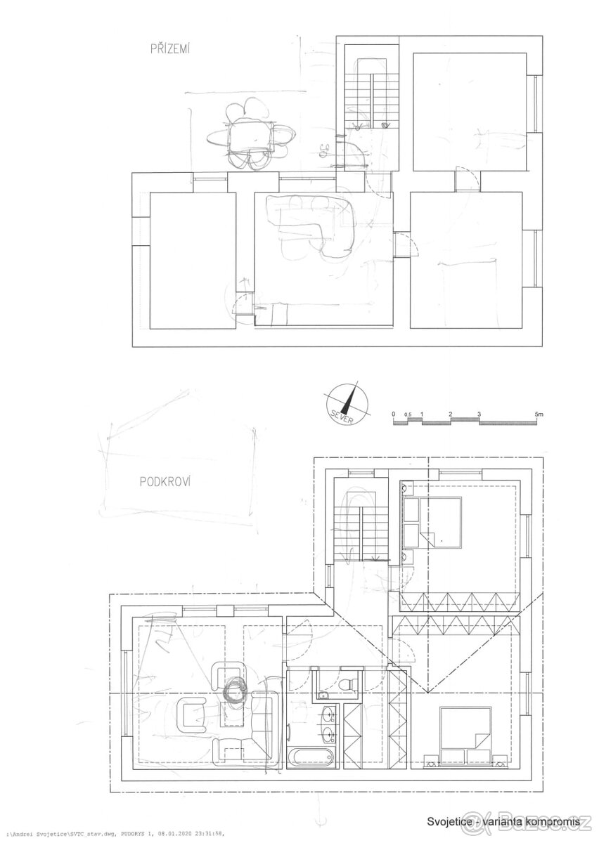
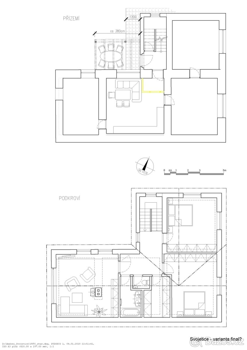
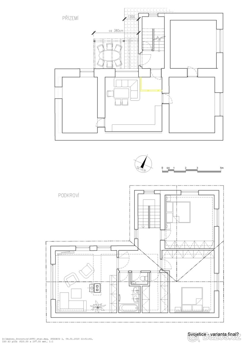
Barák má úplně nové 2 patro, střehu, okna, schodiště. V přízemí je obývací pokoj ložnice kuchyně koupelna a kadeřnictví které je uvedeno Kamený obchod na katastru
Svojetice jsou malebná obec v okrese Praha-východ ve Středočeském kraji, vzdálená přibližně 28 kilometrů jihovýchodně od centra Prahy a 7 kilometrů východně od Říčan.
Barák má úplně nové 2 patro, střehu, okna, schodiště. V přízemí je obývací pokoj ložnice kuchyně koupelna a kadeřnictví které je uvedeno Kamený obchod na katastru
|
| |||||||||||||||||||||||||||||||
Kontaktovat inzerenta emailem
Kontaktovat emailem může pouze ověřený uživatel.
Ověření je zdarma.
Vaše telefonní číslo *
Kontaktovat emailem může pouze ověřený uživatel.
Ověření je zdarma.
Vaše telefonní číslo *