Pronájem výrobní/skladovací haly, 208 m², Velehrad
- [27.11. 2025]Smazat/ Upravit/ Topovat























Naše společnost Vám nabízí k pronájmu výrobní/skladovací halu o celkové ploše 203 m2 v obci Velehrad.
Hala je nově postavená (kolaudace 2017) a zkolaudována pro drobnou výrobu a skladování.
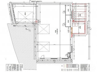
Je rozdělena do dvou hlavních částí:
Hlavní část, 170 m², je o rozměrech 10,1 x 16,4 m a výškou stropu 4 m, a její součástí je i šatna pro zaměstnance a sociální zázemí.
Jsou zde dvě automatické shrnovací vrata 3 x 3,48 m, z toho jedny se vstupními dveřmi.
Vedlejší část 38 m² má samostatný vchod z ulice a automatické shrnovací vrata o rozměrech 4,47 x 3,46 m.
Je možné pronajmout pouze hlavní část 170 m² za 23.000,- Kč/měsíc.
Na ulici je vyhrazených 5 parkovacích míst.
Hala je dostatečně osvětlena přirozeným světlem, litá podlaha a LED osvětlení.
Vytápění pomocí vlastního kotle na dřevoplyn a automatickým dávkováním pelet, záložní elektrokotel.
Materiál obvodových stěn je porotherm 44 cm + zateplení. Střecha rovná, zateplena tvrzeným polystyrenem 24 cm.
Nachystány prostupy pro vzduchotechniku.
Hala je nízkonákladová, připojena na obecní kanalizaci a vodovod. Samostatné měření elektřiny s tarifem D57d.
Finanční podmínky:
- Nájem 30.000,- Kč/měsíc včetně DPH.
- Energie na nájemce dle spotřeby.
- Vratná kauce 30.000,- Kč
- Provize RK 15.000,- Kč včetně DPH
Hala je volná od 1.4.2026.
Hala se nachází ve slepé ulici, přístup po obecní komunikaci, která zvládne i těžší nákladné auto. Na konci ulice je točna pro auta.
Pro více informací volejte makléře.
Hala je nově postavená (kolaudace 2017) a zkolaudována pro drobnou výrobu a skladování.
Je rozdělena do dvou hlavních částí:
Hlavní část, 170 m², je o rozměrech 10,1 x 16,4 m a výškou stropu 4 m, a její součástí je i šatna pro zaměstnance a sociální zázemí.
Jsou zde dvě automatické shrnovací vrata 3 x 3,48 m, z toho jedny se vstupními dveřmi.
Vedlejší část 38 m² má samostatný vchod z ulice a automatické shrnovací vrata o rozměrech 4,47 x 3,46 m.
Je možné pronajmout pouze hlavní část 170 m² za 23.000,- Kč/měsíc.
Na ulici je vyhrazených 5 parkovacích míst.
Hala je dostatečně osvětlena přirozeným světlem, litá podlaha a LED osvětlení.
Vytápění pomocí vlastního kotle na dřevoplyn a automatickým dávkováním pelet, záložní elektrokotel.
Materiál obvodových stěn je porotherm 44 cm + zateplení. Střecha rovná, zateplena tvrzeným polystyrenem 24 cm.
Nachystány prostupy pro vzduchotechniku.
Hala je nízkonákladová, připojena na obecní kanalizaci a vodovod. Samostatné měření elektřiny s tarifem D57d.
Finanční podmínky:
- Nájem 30.000,- Kč/měsíc včetně DPH.
- Energie na nájemce dle spotřeby.
- Vratná kauce 30.000,- Kč
- Provize RK 15.000,- Kč včetně DPH
Hala je volná od 1.4.2026.
Hala se nachází ve slepé ulici, přístup po obecní komunikaci, která zvládne i těžší nákladné auto. Na konci ulice je točna pro auta.
Pro více informací volejte makléře.
|
| |||||||||||||||||||||||||||||||
Kontaktovat inzerenta emailem
Kontaktovat emailem může pouze ověřený uživatel.
Ověření je zdarma.
Vaše telefonní číslo *
Kontaktovat emailem může pouze ověřený uživatel.
Ověření je zdarma.
Vaše telefonní číslo *


