Bungalov - San Miguel
- [1.12. 2025]Smazat/ Upravit/ Topovat





























Moderní bungalov v San Miguel de Salinas – Novostavba v přírodě, blízko golfu a moře
Lokalita: San Miguel de Salinas, Costa Blanca South
Cena: od 250 000 €
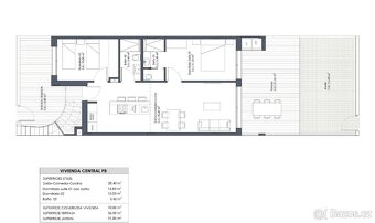
Dispozice: 2 ložnice, 2 koupelny
Užitná plocha: 70 m²
Exkluzivní novostavba bungalovů v San Miguel de Salinas
Tento moderní rezidenční projekt se nachází v klidné přírodní lokalitě, pouhé 3 km od centra San Miguel de Salinas. Nabízí ideální kombinaci komfortu, přírody a snadného přístupu ke službám.
Díky skvělé poloze si můžete užívat naprostý klid a soukromí, zatímco pláže Orihuela Costa a město Torrevieja s širokou nabídkou zábavy, gastronomie a obchodů jsou vzdálené pouhých 7 km.
Moderní design s ničím nerušeným výhledem
Bungalovy vynikají stylovou architekturou a kvalitním provedením. Máte možnost výběru mezi dvěma variantami:
Přízemní bungalov se soukromou zahradou – ideální pro relaxaci v přírodě
Horní bungalov s vlastním soláriem – perfektní pro slunění a odpočinek s panoramatickým výhledem
Ke každé jednotce náleží vyhrazené parkovací stání.
Exkluzivní společné prostory
Rezidence nabízí krásné společné prostory, které podporují zdravý životní styl v harmonii s přírodou:
Velký společný bazén, obklopený zelenými plochami
Klidné prostředí daleko od městského ruchu, ideální pro relaxaci
Ráj pro milovníky golfu
San Miguel de Salinas je vynikající destinací pro golfisty, s třemi prestižními hřišti v těsné blízkosti:
Golf Villamartin – 3,5 km
Las Colinas Golf & Country Club – 4 km
Campoamor Golf – 4 km
Skvělá dostupnost k hlavním atrakcím
Rezidence se nachází v strategické lokalitě, která nabízí snadný přístup k:
San Miguel de Salinas – 3 km
Pláže Orihuela Costa a Torrevieja – 7 km
Nákupní centrum Zenia Boulevard – 10 km
Letiště Alicante – 55 km
Letiště Murcia (Corvera) – 50 km
Váš nový domov na pobřeží Costa Blanca
Pokud hledáte moderní bydlení v klidné lokalitě, obklopené přírodou a v blízkosti golfových hřišť, tento bungalov v San Miguel de Salinas je ideální volbou.
Kontaktujte nás ještě dnes a domluvte si prohlídku!
Lokalita: San Miguel de Salinas, Costa Blanca South
Cena: od 250 000 €
Dispozice: 2 ložnice, 2 koupelny
Užitná plocha: 70 m²
Exkluzivní novostavba bungalovů v San Miguel de Salinas
Tento moderní rezidenční projekt se nachází v klidné přírodní lokalitě, pouhé 3 km od centra San Miguel de Salinas. Nabízí ideální kombinaci komfortu, přírody a snadného přístupu ke službám.
Díky skvělé poloze si můžete užívat naprostý klid a soukromí, zatímco pláže Orihuela Costa a město Torrevieja s širokou nabídkou zábavy, gastronomie a obchodů jsou vzdálené pouhých 7 km.
Moderní design s ničím nerušeným výhledem
Bungalovy vynikají stylovou architekturou a kvalitním provedením. Máte možnost výběru mezi dvěma variantami:
Přízemní bungalov se soukromou zahradou – ideální pro relaxaci v přírodě
Horní bungalov s vlastním soláriem – perfektní pro slunění a odpočinek s panoramatickým výhledem
Ke každé jednotce náleží vyhrazené parkovací stání.
Exkluzivní společné prostory
Rezidence nabízí krásné společné prostory, které podporují zdravý životní styl v harmonii s přírodou:
Velký společný bazén, obklopený zelenými plochami
Klidné prostředí daleko od městského ruchu, ideální pro relaxaci
Ráj pro milovníky golfu
San Miguel de Salinas je vynikající destinací pro golfisty, s třemi prestižními hřišti v těsné blízkosti:
Golf Villamartin – 3,5 km
Las Colinas Golf & Country Club – 4 km
Campoamor Golf – 4 km
Skvělá dostupnost k hlavním atrakcím
Rezidence se nachází v strategické lokalitě, která nabízí snadný přístup k:
San Miguel de Salinas – 3 km
Pláže Orihuela Costa a Torrevieja – 7 km
Nákupní centrum Zenia Boulevard – 10 km
Letiště Alicante – 55 km
Letiště Murcia (Corvera) – 50 km
Váš nový domov na pobřeží Costa Blanca
Pokud hledáte moderní bydlení v klidné lokalitě, obklopené přírodou a v blízkosti golfových hřišť, tento bungalov v San Miguel de Salinas je ideální volbou.
Kontaktujte nás ještě dnes a domluvte si prohlídku!
|
| |||||||||||||||||||||||||||||||
Kontaktovat inzerenta emailem
Kontaktovat emailem může pouze ověřený uživatel.
Ověření je zdarma.
Vaše telefonní číslo *
Kontaktovat emailem může pouze ověřený uživatel.
Ověření je zdarma.
Vaše telefonní číslo *








