Zděný rodinný dům BERYL 4+KK s tepelným čerpadlem, 108 m2
- [3.12. 2025]Smazat/ Upravit/ Topovat








Firma JOMAKOV-STAV, s. r. o. nabízí výstavbu nízkoenergetického velmi úsporného zděného rodinného domku – bungalovu za cenu 3 850 000,- Kč včetně DPH (aktualizace ceny ke dni 1.7. 2024) bez pozemku v rámci ostravského, opavského, frýdecko-místeckého nebo karvinského regionu.
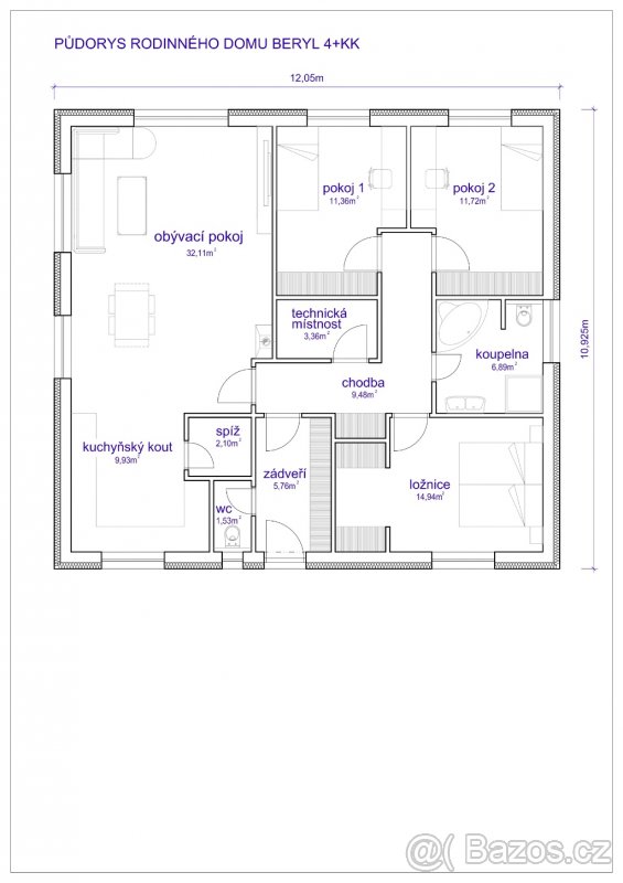
Jedná se o zděný dům, který má cca 131 m2 zastavěné plochy, užitná plocha domu tvoří cca 108 m2. Dům je dispozičně vybaven čtyřmi pobytovými místnostmi s kuchyní se spíží, zádveřím, chodbou, samostatným WC, koupelnou s WC, vanou i sprchovým koutem a technickým zázemím. Variantně nabízíme provedení domu s terasou a bez terasy.
Dům je zděný z cihel HELUZ pravidelného tvaru, který zaručuje v rámci budoucího užívání minimální nároky na údržbu. Je zastřešený sedlovou střechou se střešní krytinou Blachotrapez, okna i dveře tvoří pětikomorový profil s izolačním trojsklem. Vytápění je podlahové, teplovodní, zajišťováno za pomocí tepelného čerpadla firmy NIBE.
Za výše uvedenou cenu nabízíme výstavbu domu na klíč včetně základů.
Rodinný dům BERYL nabízíme ve standardní úpravě, nicméně jsme schopni provést i nenáročnou úpravu stavby.
Po dohodě jsme schopni rovněž zaměnit námi nabízené materiály a zařízení za materiály a zařízení požadované klientem.
Jedná se o zděný dům, který má cca 131 m2 zastavěné plochy, užitná plocha domu tvoří cca 108 m2. Dům je dispozičně vybaven čtyřmi pobytovými místnostmi s kuchyní se spíží, zádveřím, chodbou, samostatným WC, koupelnou s WC, vanou i sprchovým koutem a technickým zázemím. Variantně nabízíme provedení domu s terasou a bez terasy.
Dům je zděný z cihel HELUZ pravidelného tvaru, který zaručuje v rámci budoucího užívání minimální nároky na údržbu. Je zastřešený sedlovou střechou se střešní krytinou Blachotrapez, okna i dveře tvoří pětikomorový profil s izolačním trojsklem. Vytápění je podlahové, teplovodní, zajišťováno za pomocí tepelného čerpadla firmy NIBE.
Za výše uvedenou cenu nabízíme výstavbu domu na klíč včetně základů.
Rodinný dům BERYL nabízíme ve standardní úpravě, nicméně jsme schopni provést i nenáročnou úpravu stavby.
Po dohodě jsme schopni rovněž zaměnit námi nabízené materiály a zařízení za materiály a zařízení požadované klientem.
|
| |||||||||||||||||||||||||||||||
Kontaktovat inzerenta emailem
Kontaktovat emailem může pouze ověřený uživatel.
Ověření je zdarma.
Vaše telefonní číslo *
Kontaktovat emailem může pouze ověřený uživatel.
Ověření je zdarma.
Vaše telefonní číslo *