Prodej rodinného domu 6+2 ve městě Sadská, okr. Nymburk, vel
- [5.12. 2025]Smazat/ Upravit/ Topovat






















Ev.č. 00245
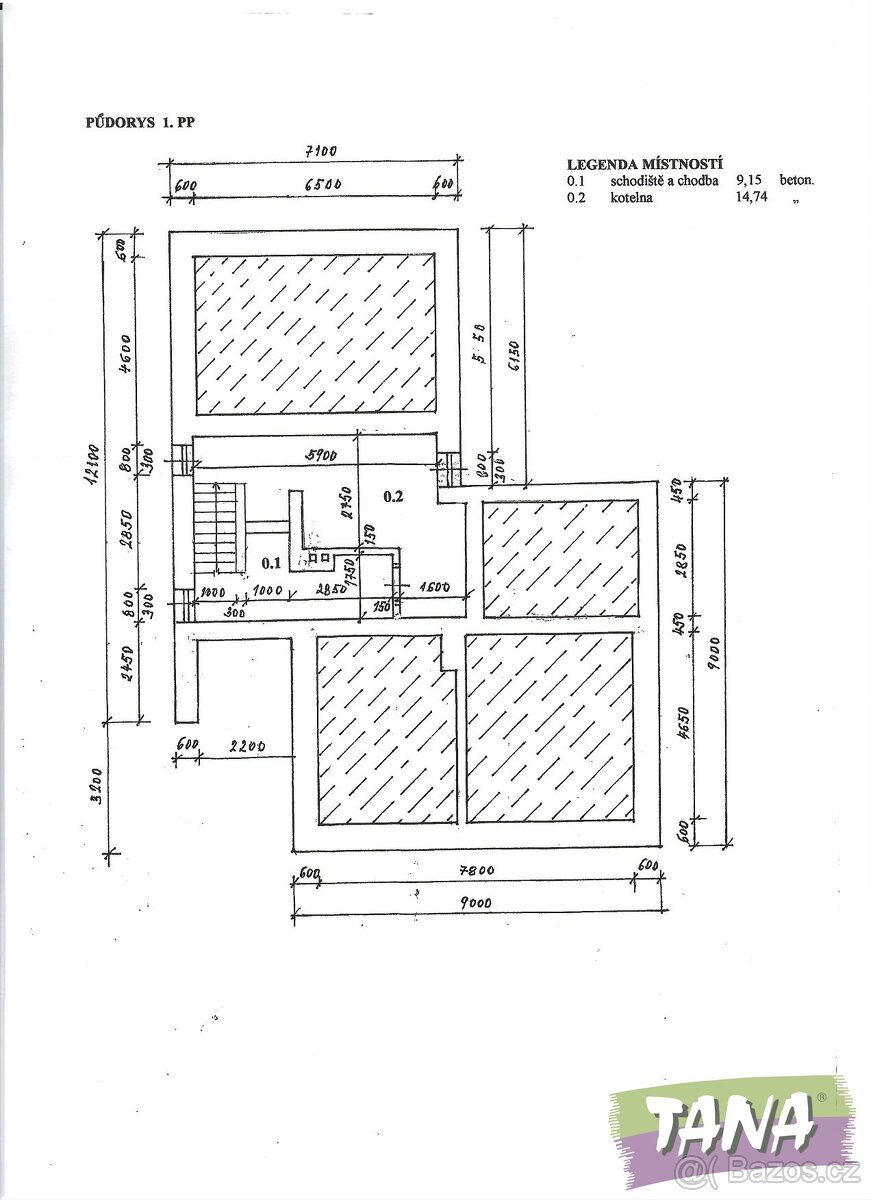
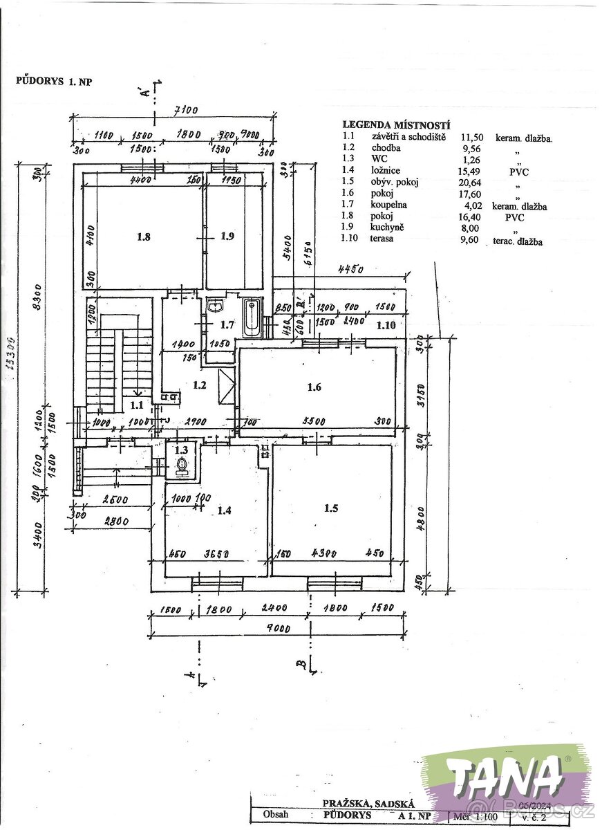
Samostatně stojící rodinný dům o dispozici 6+2 (2 x WC, 1 x koupelna) se nachází na vlastním, rovinatém a celkově oploceném pozemku. Situovaný v klidné rezidenční části města, v blízkosti centra. Na stavebním pozemku se nachází také samostatně stojící garáž. Nemovitosti jsou přístupné z obecní asfaltové komunikace.
Dům se dvěma nadzemními podlažími je částečně podsklepený. Postavený z plných cihel a škvárobetonových tvárnic. Stropy jsou kombinací stropních trámů a nosníků hurdis. Okna kombinace dřevěných a plastových. Střecha na dřevěném krovu, střešní krytina alukryt.
Zdroj vody vlastní studna, možnost připojení na veřejný vodovodní řad. Kanalizace městská. Elektro 230/380V. Vytápění zajištěno pomocí ústředního topení s kotlem na tuhá paliva. Zdroj teplé vody elektrický bojler.
Nemovitost k modernizaci se nachází na krásném, klidném místě a je vhodná pro větší rodinu.
Sadská je město v okrese Nymburk. Leží v Polabské nížině na Poděbradsku, 37 km východně od Prahy na „staré“ silnici do Poděbrad. Město s výbornou občanskou vybaveností a dobrou dopravní dostupností v blízkosti D11. Sportovní vyžití a rekreace na nedalekém jezeře Sadská, osada Kersko, cyklostezky kolem Labe.
En. náročnost b.: G - Mimořádně nehospodárná (577 kWh/m2 za rok)
Cena: info v RK, cena k jednání.
Samostatně stojící rodinný dům o dispozici 6+2 (2 x WC, 1 x koupelna) se nachází na vlastním, rovinatém a celkově oploceném pozemku. Situovaný v klidné rezidenční části města, v blízkosti centra. Na stavebním pozemku se nachází také samostatně stojící garáž. Nemovitosti jsou přístupné z obecní asfaltové komunikace.
Dům se dvěma nadzemními podlažími je částečně podsklepený. Postavený z plných cihel a škvárobetonových tvárnic. Stropy jsou kombinací stropních trámů a nosníků hurdis. Okna kombinace dřevěných a plastových. Střecha na dřevěném krovu, střešní krytina alukryt.
Zdroj vody vlastní studna, možnost připojení na veřejný vodovodní řad. Kanalizace městská. Elektro 230/380V. Vytápění zajištěno pomocí ústředního topení s kotlem na tuhá paliva. Zdroj teplé vody elektrický bojler.
Nemovitost k modernizaci se nachází na krásném, klidném místě a je vhodná pro větší rodinu.
Sadská je město v okrese Nymburk. Leží v Polabské nížině na Poděbradsku, 37 km východně od Prahy na „staré“ silnici do Poděbrad. Město s výbornou občanskou vybaveností a dobrou dopravní dostupností v blízkosti D11. Sportovní vyžití a rekreace na nedalekém jezeře Sadská, osada Kersko, cyklostezky kolem Labe.
En. náročnost b.: G - Mimořádně nehospodárná (577 kWh/m2 za rok)
Cena: info v RK, cena k jednání.
|
| |||||||||||||||||||||||||||||||
Kontaktovat inzerenta emailem
Kontaktovat emailem může pouze ověřený uživatel.
Ověření je zdarma.
Vaše telefonní číslo *
Kontaktovat emailem může pouze ověřený uživatel.
Ověření je zdarma.
Vaše telefonní číslo *

