Prodej rodinného domu 2x 3+1, pozemek 1002 m², Karviná-Ráj
- [5.12. 2025]Smazat/ Upravit/ Topovat



























Ve výhradním zastoupení majitele Vám nabízíme dvougenerační rodinný dům v Karviné- Ráji. Dům o zastavěné ploše 114 m², má dvě nadzemní a jedno podzemní podlaží. Je v udržovaném stavu s fotovoltaikou s ostrovním systémem. Výměra oploceného pozemku 1 002 m².
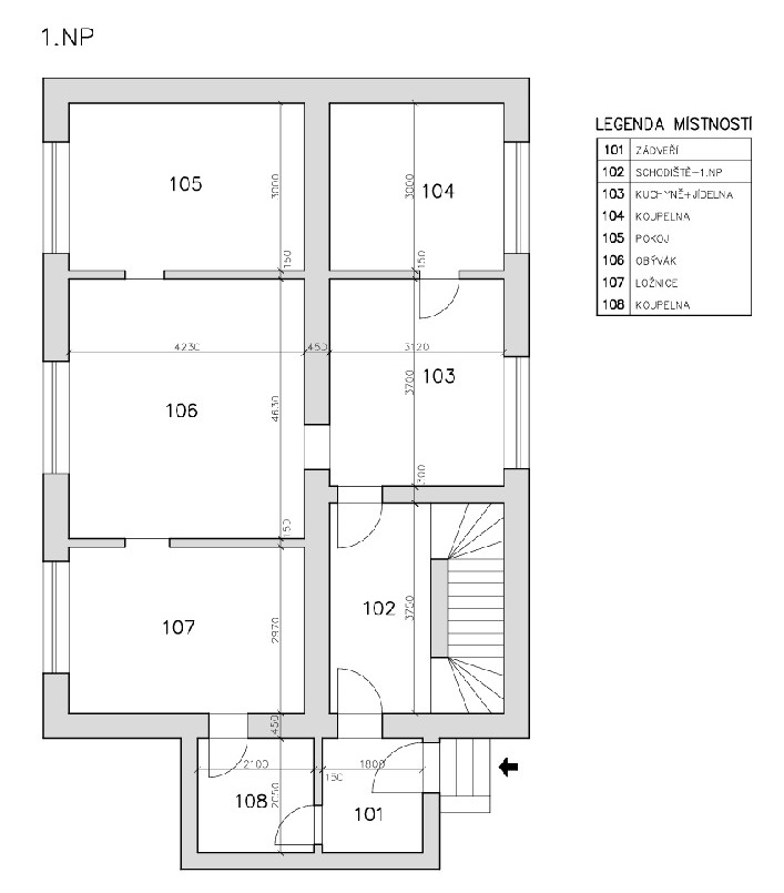
V 1.NP se nachází bytová jednotka 3+1 s možnosti rozšíření na 4+1 o podlahové ploše 93 m². Ze zádveří můžeme vstoupit do chodby a dále do kuchyně, nebo do 1.NP. Žádné zbytečné haly nebo prostorné chodby - vše účelné a jednoduché. Z kuchyně vstup do koupelny nebo obývacího pokoje a dále do ložnice a dětského pokoje. Ze zádveří můžete využít i vstup na WC a do druhé koupelny – tohle oceníte hlavně v letních měsících při trávení volného času na zahrádce.
Ve 2.NP se nachází bytová jednotka 3+1 o podlahové ploše 85 m² i zde je možnost rozšíření na 4+1. Dispozice je totožná. Kuchyně, obývací pokoj, ložnice, dětský pokoj, koupelna a terasa.
Všechny obytné místnosti mají okna JZ směrem. Nikde žádné zbytečné chodby. V celém domě betonové podlahy i stropy, vyměněny okna a vstupní dveře PVC.
Podzemní podlaží má podlahovou plochu 93 m² a nachází se zde 5 skladovacích prostor a kotelna.
Vytápění ústředním topením s automat. kotlem na peletky s ohřevem teplé vody. Sklep je suchý bez vlhkosti.
Fotovoltaika zprovozněná 4/2022 s ostrovním systémem (baterie).
Na zahradě zděná garáž, hospodářská budova – zastavěná plocha 40 m², se sedlovou střechou a dalšími úložnými prostory. A také schválená studna, venkovní posezení a parkovací stání…
Po dohodě může být k dispozici i pozemek o výměře 1 609 m², který lze využít ke stavbě jednoho, případně dvou rodinných domů. Je celo oplocený s výhledem do zeleně s dostatkem slunce.
Dle platného územního plánu se jedná o plochu Bydlení individuální BI. Hlavní využití -bydlení v rodinných domech. Intenzita využití stavebního pozemku-index zastavění max. 25%.
Elektřina, plyn, voda i kanalizace v blízkosti pozemku, s možností napojení.
Uvedené plochy jsou pouze orientační.
To nejdůležitější - klidná část města, žádný satelit...
Dům se nachází ve slepé ulici s asfaltovou komunikací, zimní údržba je zajištěna.
Proč tato nemovitost ?
-dvougenerační bydlení
-bydlení pro jednu rodinu s možnosti vybudovat posilovnu, hernu, saunu…
-bydlení, podnikání, kanceláře…
-investice, pronájem…
-na pozemku možnost výstavby rodinných domů.
Možnost získání velmi zajímavých dotačních titulů na kompletní rekonstrukci: Zelená úsporám, Oprav dům po babičce…
V Karviné je kompletní občanská vybavenost. Dvě nemocnice, obchody, restaurace, pošty, lékárny, mateřské školy, základní školy, Slezská univerzita, Lázně Darkov, stadiony- zimní, fotbalový a další sportoviště, golf, bazény, koupaliště, Darkovské moře…
Výborná dopravní dostupnost do okolních měst: Ostrava, Frýdek-Místek, Český Těšín.
Bus, vlak, dálnice.
S financováním Vám rádi pomohou naší finanční specialisté.
V 1.NP se nachází bytová jednotka 3+1 s možnosti rozšíření na 4+1 o podlahové ploše 93 m². Ze zádveří můžeme vstoupit do chodby a dále do kuchyně, nebo do 1.NP. Žádné zbytečné haly nebo prostorné chodby - vše účelné a jednoduché. Z kuchyně vstup do koupelny nebo obývacího pokoje a dále do ložnice a dětského pokoje. Ze zádveří můžete využít i vstup na WC a do druhé koupelny – tohle oceníte hlavně v letních měsících při trávení volného času na zahrádce.
Ve 2.NP se nachází bytová jednotka 3+1 o podlahové ploše 85 m² i zde je možnost rozšíření na 4+1. Dispozice je totožná. Kuchyně, obývací pokoj, ložnice, dětský pokoj, koupelna a terasa.
Všechny obytné místnosti mají okna JZ směrem. Nikde žádné zbytečné chodby. V celém domě betonové podlahy i stropy, vyměněny okna a vstupní dveře PVC.
Podzemní podlaží má podlahovou plochu 93 m² a nachází se zde 5 skladovacích prostor a kotelna.
Vytápění ústředním topením s automat. kotlem na peletky s ohřevem teplé vody. Sklep je suchý bez vlhkosti.
Fotovoltaika zprovozněná 4/2022 s ostrovním systémem (baterie).
Na zahradě zděná garáž, hospodářská budova – zastavěná plocha 40 m², se sedlovou střechou a dalšími úložnými prostory. A také schválená studna, venkovní posezení a parkovací stání…
Po dohodě může být k dispozici i pozemek o výměře 1 609 m², který lze využít ke stavbě jednoho, případně dvou rodinných domů. Je celo oplocený s výhledem do zeleně s dostatkem slunce.
Dle platného územního plánu se jedná o plochu Bydlení individuální BI. Hlavní využití -bydlení v rodinných domech. Intenzita využití stavebního pozemku-index zastavění max. 25%.
Elektřina, plyn, voda i kanalizace v blízkosti pozemku, s možností napojení.
Uvedené plochy jsou pouze orientační.
To nejdůležitější - klidná část města, žádný satelit...
Dům se nachází ve slepé ulici s asfaltovou komunikací, zimní údržba je zajištěna.
Proč tato nemovitost ?
-dvougenerační bydlení
-bydlení pro jednu rodinu s možnosti vybudovat posilovnu, hernu, saunu…
-bydlení, podnikání, kanceláře…
-investice, pronájem…
-na pozemku možnost výstavby rodinných domů.
Možnost získání velmi zajímavých dotačních titulů na kompletní rekonstrukci: Zelená úsporám, Oprav dům po babičce…
V Karviné je kompletní občanská vybavenost. Dvě nemocnice, obchody, restaurace, pošty, lékárny, mateřské školy, základní školy, Slezská univerzita, Lázně Darkov, stadiony- zimní, fotbalový a další sportoviště, golf, bazény, koupaliště, Darkovské moře…
Výborná dopravní dostupnost do okolních měst: Ostrava, Frýdek-Místek, Český Těšín.
Bus, vlak, dálnice.
S financováním Vám rádi pomohou naší finanční specialisté.
|
| |||||||||||||||||||||||||||||||
Kontaktovat inzerenta emailem
Kontaktovat emailem může pouze ověřený uživatel.
Ověření je zdarma.
Vaše telefonní číslo *
Kontaktovat emailem může pouze ověřený uživatel.
Ověření je zdarma.
Vaše telefonní číslo *






