PRODEJ POZEMKU SE STAVEBNÍM POVOLENÍM, OKRUŽNÍ, ČB
- [8.12. 2025]Smazat/ Upravit/ Topovat






















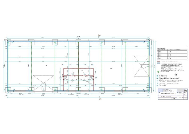
Nabízíme k prodeji průmyslový pozemek s platným stavebním povolením pro výstavbu skladové haly poblíž Okružní ulice v Českých Budějovicích. Jedná se o pozemek s celkovou výměrou 1.520 m2 přístupný po obecní zpevněné komunikaci, který je napojen na elektřinu. Samotný pozemek je vyvezený - zpevněný. V únoru 2025 bylo vydáno stavební povolení na stavbu skladové haly 40 x 14 m - 560 m2 s výškou 8 m. Možnost přikoupení vedlejších pozemků 1.669 m2 a 1.000 m2.
★ Operace: Prodej
★ Typ nemovitosti: Pozemek
★ Okres: České Budějovice
★ Adresa: Úsilné, Úsilné
★ Plocha vlastního pozemku: 1520 m2
★ Dostupnost: Silnice, Dálnice
★ Operace: Prodej
★ Typ nemovitosti: Pozemek
★ Okres: České Budějovice
★ Adresa: Úsilné, Úsilné
★ Plocha vlastního pozemku: 1520 m2
★ Dostupnost: Silnice, Dálnice
|
| |||||||||||||||||||||||||||||||
Kontaktovat inzerenta emailem
Kontaktovat emailem může pouze ověřený uživatel.
Ověření je zdarma.
Vaše telefonní číslo *
Kontaktovat emailem může pouze ověřený uživatel.
Ověření je zdarma.
Vaše telefonní číslo *

