Jedinečná příležitost na zhotovení půdní bytové jednotky dle
- [10.12. 2025]Smazat/ Upravit/ Topovat






























Ojedinělá příležitost v centru krajského města Ústí nad Labem.
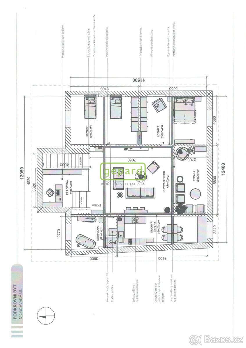
Nabízíme k prodeji půdní prostory se stavebním povolením v ulici Moskevská 1581/22, Ústí nad Labem (bytová jednotka č. 7). Tento prostor v centru Ústí nad Labem se nachází v pátém nadzemním podlaží bytového domu a představuje skvělou investiční příležitost či vlastní královské bydlení.
Lze vybudovat jeden exkluzivní nadstandardní půdní byt s rozlohou dle prohlášení vlastníka 159,8 m2. Můžete si vybrat zdali budete chtít unikátní terasu a kochat se výhledem či se bez ní obejít. Doporučujeme využít služeb současné stavební firmy, která zhotovila ostatní bytové jednotky v tomto domě. Rozpočet na vyhotovení bez terasy činí 4,2 mil. Kč či s terasou ve výši 4,72 mil. Kč.
Lokalita nabízí jedním slovem VŠE. Do 100 m od bytu se nachází namátkou kulturní a veřejný sál Hraničář, pošta, Billa, Teta, Alza, nespočet restaurací a obchodů.
Do 700 m OC Forum (více než 100 obchodů s kinem Cinema City), divadlo, Univerzita Jana Evangelisty Purkyně s osmi fakultami, obchodní akademie a jazyková škola, magistrát, krajský úřad, banky, pojišťovny a desítky a desítky obchodů, restaurací a úřadů.
V této lokalitě najdou ideální bydlení zájemci, kteří chtějí být vždy nablízku velkoměstu severu, netrávit dlouhý čas dojížděním za prací nebo pro ty, kteří hledají investiční příležitost, kapitálové zhodnocení a zároveň výnos z potencionálního pronájmu.
Možností do budoucna je ovlivnit vybudování společného výtahu. V domě je nově zřízeno SVJ. Možnost přikoupit sklepní prostory. Vstup do budoucího bytu je z podesty mezi 4. a 5. N.P., součástí bytu je část schodiště mezi 4. a 5. N.P. a podesta mezi 4. a 5. N.P.
Parkování možné na ulici před domem. Do budoucna možné vlastní parkovací místo u domu.
Nechte se inspirovat a vytvořte si ideální prostor v srdci Ústí nad Labem.
Neváhejte kontaktovat a zjistit na vlastní oči potenciál této nabídky.
Uvedené výměry jsou orientační. V případě více zájemců bude nemovitost prodána nejlepší nabídce a majitel si vyhrazuje právo vybrat kupujícího na základě jím zvolených kritérií. Veškeré zveřejněné údaje obsažené v tomto inzerátu mají pouze informativní charakter a nejsou nabídkou ve smyslu § 1731 nebo § 1732 občanského zákoníku, ani se nejedná o veřejný příslib dle § 1733 občanského zákoníku.
ev.č.: 10953
třída energetické náročnosti budovy: G - Mimořádně nehospodárná
dle vyhlášky č.264/2020 Sb.
vlastnictví: Osobní
druh objektu: Smíšená
stav objektu: Dobrý
umístění objektu: Centrum obce
typ bytu: Loft (otevřený industriální prostor, vysoké stropy)
užitná plocha (m2): 159.8
číslo podlaží v objektu: 5
počet podlaží objektu: 5
Nabízíme k prodeji půdní prostory se stavebním povolením v ulici Moskevská 1581/22, Ústí nad Labem (bytová jednotka č. 7). Tento prostor v centru Ústí nad Labem se nachází v pátém nadzemním podlaží bytového domu a představuje skvělou investiční příležitost či vlastní královské bydlení.
Lze vybudovat jeden exkluzivní nadstandardní půdní byt s rozlohou dle prohlášení vlastníka 159,8 m2. Můžete si vybrat zdali budete chtít unikátní terasu a kochat se výhledem či se bez ní obejít. Doporučujeme využít služeb současné stavební firmy, která zhotovila ostatní bytové jednotky v tomto domě. Rozpočet na vyhotovení bez terasy činí 4,2 mil. Kč či s terasou ve výši 4,72 mil. Kč.
Lokalita nabízí jedním slovem VŠE. Do 100 m od bytu se nachází namátkou kulturní a veřejný sál Hraničář, pošta, Billa, Teta, Alza, nespočet restaurací a obchodů.
Do 700 m OC Forum (více než 100 obchodů s kinem Cinema City), divadlo, Univerzita Jana Evangelisty Purkyně s osmi fakultami, obchodní akademie a jazyková škola, magistrát, krajský úřad, banky, pojišťovny a desítky a desítky obchodů, restaurací a úřadů.
V této lokalitě najdou ideální bydlení zájemci, kteří chtějí být vždy nablízku velkoměstu severu, netrávit dlouhý čas dojížděním za prací nebo pro ty, kteří hledají investiční příležitost, kapitálové zhodnocení a zároveň výnos z potencionálního pronájmu.
Možností do budoucna je ovlivnit vybudování společného výtahu. V domě je nově zřízeno SVJ. Možnost přikoupit sklepní prostory. Vstup do budoucího bytu je z podesty mezi 4. a 5. N.P., součástí bytu je část schodiště mezi 4. a 5. N.P. a podesta mezi 4. a 5. N.P.
Parkování možné na ulici před domem. Do budoucna možné vlastní parkovací místo u domu.
Nechte se inspirovat a vytvořte si ideální prostor v srdci Ústí nad Labem.
Neváhejte kontaktovat a zjistit na vlastní oči potenciál této nabídky.
Uvedené výměry jsou orientační. V případě více zájemců bude nemovitost prodána nejlepší nabídce a majitel si vyhrazuje právo vybrat kupujícího na základě jím zvolených kritérií. Veškeré zveřejněné údaje obsažené v tomto inzerátu mají pouze informativní charakter a nejsou nabídkou ve smyslu § 1731 nebo § 1732 občanského zákoníku, ani se nejedná o veřejný příslib dle § 1733 občanského zákoníku.
ev.č.: 10953
třída energetické náročnosti budovy: G - Mimořádně nehospodárná
dle vyhlášky č.264/2020 Sb.
vlastnictví: Osobní
druh objektu: Smíšená
stav objektu: Dobrý
umístění objektu: Centrum obce
typ bytu: Loft (otevřený industriální prostor, vysoké stropy)
užitná plocha (m2): 159.8
číslo podlaží v objektu: 5
počet podlaží objektu: 5
|
| |||||||||||||||||||||||||||||||
Kontaktovat inzerenta emailem
Kontaktovat emailem může pouze ověřený uživatel.
Ověření je zdarma.
Vaše telefonní číslo *
Kontaktovat emailem může pouze ověřený uživatel.
Ověření je zdarma.
Vaše telefonní číslo *









