Prodej bytu 2+kk, Čápkova, 33 m2
- [10.12. 2025]Smazat/ Upravit/ Topovat

























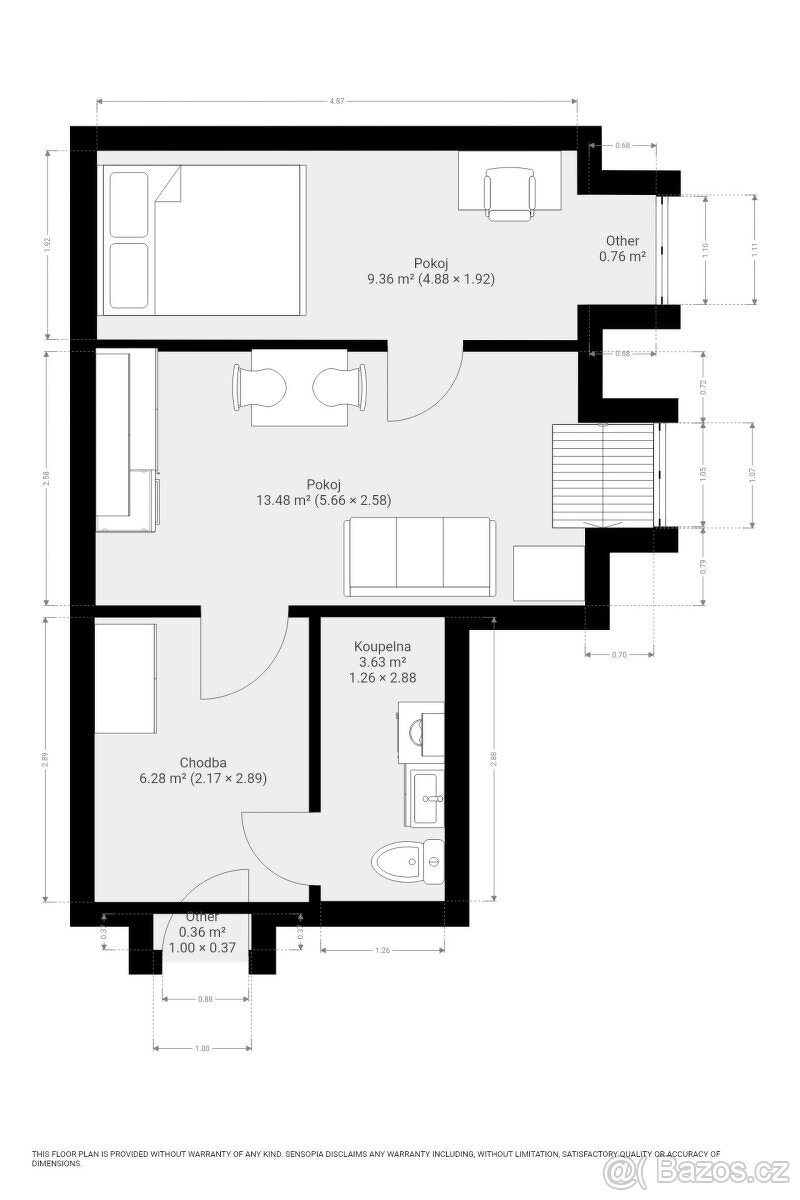
Nabízíme k prodeji útulný byt o dispozici 2+kk a celkové podlahové ploše 33 m², který se nachází v oblíbené a výborně dostupné části Brna, na ulici Čápkova. Byt je umístěn v nižším podlaží cihlového domu a disponuje přímým vstupem na zadní dvorek. Dvorek je společnou částí domu.
Byt prošel po roce 2020 rekonstrukcí a nachází se ve standardním technickém stavu. Je však důležité upozornit na zvýšenou vlhkost a vyšší riziko vzniku plísně (plíseň se již v jednotce objevila). Je tedy potřeba počítat s investicí do technických úprav, případné sanace a zlepšení odvětrání. Vlhkost souvisí také se staršími stoupačkami a technickým stavem pláště domu.
Společenství vlastníků již schválilo soubor oprav, který zahrnuje rekonstrukci kanalizace, sklepů, dvorní části (zajištění izolace a odstranění průniku vody k základům domu) a výměnu oken a dveří ve společných prostorách. Tyto práce by měly významně přispět ke snížení vlhkosti v dotčených stěnách bytu.
Měsíční náklady na bydlení:
zálohy na energie a služby SVJ: 1 380 Kč
elektřina: 880 Kč
plyn: 1 450 Kč
Celkové měsíční provozní náklady tak činí 3 710 Kč.
Byt je volný a připravený k okamžitému nastěhování. Je vhodný jak pro vlastní bydlení, tak jako investiční příležitost s možností úprav podle preferencí nového majitele. V okolí se nachází restaurace, kavárny, park, supermarket, lékárna a několik univerzit. Tramvajová zastávka Konečného náměstí je vzdálena přibližně dvě minuty chůze a nabízí výborné spojení do všech částí města.
V případě zájmu mě neváhejte kontaktovat a domluvit si prohlídku. Rád vám byt osobně ukážu.
ID nabídky: N6991
Byt prošel po roce 2020 rekonstrukcí a nachází se ve standardním technickém stavu. Je však důležité upozornit na zvýšenou vlhkost a vyšší riziko vzniku plísně (plíseň se již v jednotce objevila). Je tedy potřeba počítat s investicí do technických úprav, případné sanace a zlepšení odvětrání. Vlhkost souvisí také se staršími stoupačkami a technickým stavem pláště domu.
Společenství vlastníků již schválilo soubor oprav, který zahrnuje rekonstrukci kanalizace, sklepů, dvorní části (zajištění izolace a odstranění průniku vody k základům domu) a výměnu oken a dveří ve společných prostorách. Tyto práce by měly významně přispět ke snížení vlhkosti v dotčených stěnách bytu.
Měsíční náklady na bydlení:
zálohy na energie a služby SVJ: 1 380 Kč
elektřina: 880 Kč
plyn: 1 450 Kč
Celkové měsíční provozní náklady tak činí 3 710 Kč.
Byt je volný a připravený k okamžitému nastěhování. Je vhodný jak pro vlastní bydlení, tak jako investiční příležitost s možností úprav podle preferencí nového majitele. V okolí se nachází restaurace, kavárny, park, supermarket, lékárna a několik univerzit. Tramvajová zastávka Konečného náměstí je vzdálena přibližně dvě minuty chůze a nabízí výborné spojení do všech částí města.
V případě zájmu mě neváhejte kontaktovat a domluvit si prohlídku. Rád vám byt osobně ukážu.
ID nabídky: N6991
|
| |||||||||||||||||||||||||||||||
Kontaktovat inzerenta emailem
Kontaktovat emailem může pouze ověřený uživatel.
Ověření je zdarma.
Vaše telefonní číslo *
Kontaktovat emailem může pouze ověřený uživatel.
Ověření je zdarma.
Vaše telefonní číslo *




