Prodej rodinného domu 150 m2, pozemek 700 m2
- [10.12. 2025]Smazat/ Upravit/ Topovat

























Ve výhradním zastoupení vám nabízím k prodeji solitérní dům s dispozicí 5+kk s celkovou výměrou 150 m2 a zahradou cca 700 m2 v nově vznikající Rezidenci Pudlák v obci Újezdeček u Teplic.
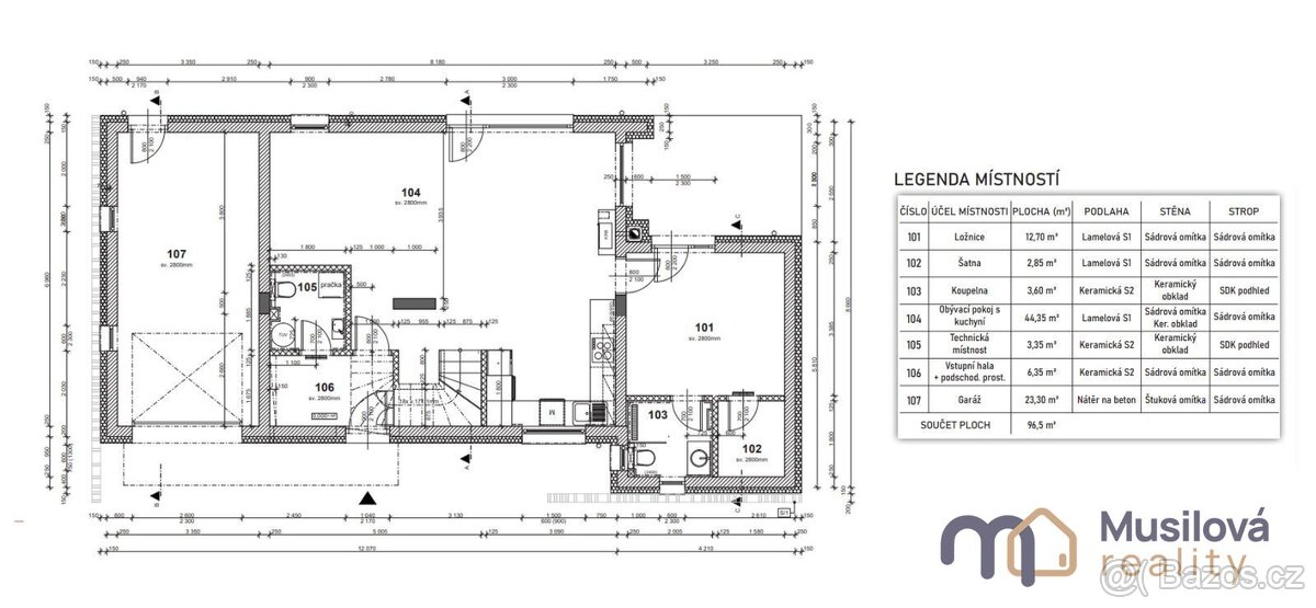
Přízemí: Vstup do domu tvoří prostorná chodba s dostatečnými úložnými prostory, včetně prostoru pod schodištěm. Dále se zde nachází technická místnost s WC, moderní koupelna, šatna, samostatná ložnice, světlý obývací pokoj, který je propojený s jídelnou a kuchyňským koutem, ideálním pro rodinné posezení.
Patro: Prostorné schodiště vás zavede do 2. nadzemního podlaží, kde se nachází tři pokoje a moderní koupelna.
Vytápění domu zajišťuje elektrické podlahové vytápění a příprava na krbová kamna, okna třívrstvá plastová, zdroj vody z vodovodního řádu, odpady svedeny do veřejné kanalizace, TUV řešena bojlerem.
Projekt Rezidence Pudlak se vyznačuje jedinečnou polohou v areálu bývalého kempu a koupaliště Pudlák v blízkosti veškeré občanské vybavenosti včetně školy, školky, nákupních center, cyklostezky a s výbornou dostupností MHD.
Výstavba první etapy rezidence již byla zahájena s plánovanou kolaudací v prosinci roku 2025. Tato etapa zahrnuje výstavbu 24 řadových a 8 solitérních domu.
Představte si místo, kde každý den začíná vůní čerstvého vzduchu, šuměním stromů a vzácným pocitem klidu. To vše nabízí Rezidence Pudlák jedinečný developerský projekt v srdci zeleně, který definuje koncept moderního a zdravého bydlení.
Případné financování Vám zajistíme. Neváhejte a kontaktujte mne pro více informací 7 dní v týdnu.
Cena od 9.650.000,- Třída energetické náročnosti: B - velmi úsporná (dle vyhláška č. 264/2020 Sb.) Cena: 9 650 000 Kč
Přízemí: Vstup do domu tvoří prostorná chodba s dostatečnými úložnými prostory, včetně prostoru pod schodištěm. Dále se zde nachází technická místnost s WC, moderní koupelna, šatna, samostatná ložnice, světlý obývací pokoj, který je propojený s jídelnou a kuchyňským koutem, ideálním pro rodinné posezení.
Patro: Prostorné schodiště vás zavede do 2. nadzemního podlaží, kde se nachází tři pokoje a moderní koupelna.
Vytápění domu zajišťuje elektrické podlahové vytápění a příprava na krbová kamna, okna třívrstvá plastová, zdroj vody z vodovodního řádu, odpady svedeny do veřejné kanalizace, TUV řešena bojlerem.
Projekt Rezidence Pudlak se vyznačuje jedinečnou polohou v areálu bývalého kempu a koupaliště Pudlák v blízkosti veškeré občanské vybavenosti včetně školy, školky, nákupních center, cyklostezky a s výbornou dostupností MHD.
Výstavba první etapy rezidence již byla zahájena s plánovanou kolaudací v prosinci roku 2025. Tato etapa zahrnuje výstavbu 24 řadových a 8 solitérních domu.
Představte si místo, kde každý den začíná vůní čerstvého vzduchu, šuměním stromů a vzácným pocitem klidu. To vše nabízí Rezidence Pudlák jedinečný developerský projekt v srdci zeleně, který definuje koncept moderního a zdravého bydlení.
Případné financování Vám zajistíme. Neváhejte a kontaktujte mne pro více informací 7 dní v týdnu.
Cena od 9.650.000,- Třída energetické náročnosti: B - velmi úsporná (dle vyhláška č. 264/2020 Sb.) Cena: 9 650 000 Kč
|
| |||||||||||||||||||||||||||||||
Kontaktovat inzerenta emailem
Kontaktovat emailem může pouze ověřený uživatel.
Ověření je zdarma.
Vaše telefonní číslo *
Kontaktovat emailem může pouze ověřený uživatel.
Ověření je zdarma.
Vaše telefonní číslo *




