Pronájem bytu 3+1, Karla Čapka 2466/48, Teplice, PO KOMPLETN
- [11.12. 2025]Smazat/ Upravit/ Topovat
















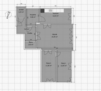
Nabízíme k pronájmu byt se zahradou a garáží o dispozici 3+1 a výměrou 80 m2 na adrese Karla Čapka 2466/48 v Teplicích. Byt je nyní v rekonstrukci a bude hotov na přelomu roku. Byt je pěkný, velký a pro představu velikosti pokojů je uveden půdorys bytu. V koupelně je sprchový kout, WC, prostor pro pračku se sušičkou, dvě umyvadla se skříňkou, topné těleso a plynový kotel. Celý byt prošel nákladnou rekonstrukcí včetně podlah, elektroinstalace, zdiva a snížení a zateplení stropů. Postupně budou doplněny fotografie.
Dům má svůj kamerový systém, je udržovaný, čistý, se slušnými nájemníky.
Velmi doporučujeme prohlídku.
Čisté nájemné: 19 000 Kč
Zálohy:
SUV: 650 Kč
Chodbové osvětlení: 100 Kč
Úklid: 100 Kč
Celkem zálohy za 1 osobu: 850 Kč
Každá další osoba: 650 Kč
Celkem nájemné včetně záloh za 1 osobu: 19 850 Kč
Kauce: 40 000 Kč
Provize : 5 000 Kč
Elektřina a plyn se přepisují na nájemníka.
Hledáme slušné, pracující nájemníky bez exekucí. Výhodou nekuřáci a bez mazlíčků (kromě terárií a akvárií).
Volné od 05.01.2026 Třída energetické náročnosti: (dle ) Cena: 19 000 Kč/měs
Dům má svůj kamerový systém, je udržovaný, čistý, se slušnými nájemníky.
Velmi doporučujeme prohlídku.
Čisté nájemné: 19 000 Kč
Zálohy:
SUV: 650 Kč
Chodbové osvětlení: 100 Kč
Úklid: 100 Kč
Celkem zálohy za 1 osobu: 850 Kč
Každá další osoba: 650 Kč
Celkem nájemné včetně záloh za 1 osobu: 19 850 Kč
Kauce: 40 000 Kč
Provize : 5 000 Kč
Elektřina a plyn se přepisují na nájemníka.
Hledáme slušné, pracující nájemníky bez exekucí. Výhodou nekuřáci a bez mazlíčků (kromě terárií a akvárií).
Volné od 05.01.2026 Třída energetické náročnosti: (dle ) Cena: 19 000 Kč/měs
|
| |||||||||||||||||||||||||||||||
Kontaktovat inzerenta emailem
Kontaktovat emailem může pouze ověřený uživatel.
Ověření je zdarma.
Vaše telefonní číslo *
Kontaktovat emailem může pouze ověřený uživatel.
Ověření je zdarma.
Vaše telefonní číslo *