Nabízím byt 1+kk po celkové rekonstrukci
- [14.12. 2025]Smazat/ Upravit/ Topovat
















Nabízím ke koupi moderní byt 1+kk o celkové ploše cca 28 m², nacházející se v klidné části Veselí nad Moravou – ulice Chaloupky 577.
Byt je po kompletní rekonstrukci a je připraven k okamžitému nastěhování bez dalších investic.
Dispozice a vybavení:
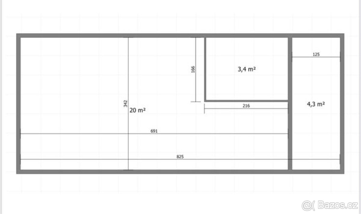
• obytný prostor s kuchyňským koutem (cca 20 m²)
• koupelna se sprchovým koutem a závěsným WC (cca 3,4 m²)
• vstupní chodba (cca 4,3 m²)
• sklepní kóje v suterénu domu
Byt disponuje moderní kuchyňskou linkou na míru s vestavnými spotřebiči, kvalitními podlahami a novou koupelnou v nadčasovém designu. Plastová okna se žaluziemi zajišťují dostatek světla i soukromí.
Byt je po kompletní rekonstrukci a je připraven k okamžitému nastěhování bez dalších investic.
Dispozice a vybavení:
• obytný prostor s kuchyňským koutem (cca 20 m²)
• koupelna se sprchovým koutem a závěsným WC (cca 3,4 m²)
• vstupní chodba (cca 4,3 m²)
• sklepní kóje v suterénu domu
Byt disponuje moderní kuchyňskou linkou na míru s vestavnými spotřebiči, kvalitními podlahami a novou koupelnou v nadčasovém designu. Plastová okna se žaluziemi zajišťují dostatek světla i soukromí.
|
| |||||||||||||||||||||||||||||||
Kontaktovat inzerenta emailem
Kontaktovat emailem může pouze ověřený uživatel.
Ověření je zdarma.
Vaše telefonní číslo *
Kontaktovat emailem může pouze ověřený uživatel.
Ověření je zdarma.
Vaše telefonní číslo *
Podobné inzeráty
Byt 1+1 / 2kk / 2+1 - [23.11. 2025]Dobrý den, h.l.e.d.a.m. byt v dispozici 1+1, 2kk nebo 2+1.
Pokud o p.r.o.d.e.j.i. teprve uvažujete, budu ráda, když se mi ozvete s nabídkou.
Cena do 3 200 000 Kč.
Děkuji předem za kontakt.
Veseli nad Moravou - Strážnice.
Nejsem realitka.
3 200 000 Kč
Hodonín
698 01
698 01
301 x
Označit špatný inzerát Chybnou kategorii Ohodnotit uživatele Smazat/Upravit/Topovat
Prodej bytu 3+1 ve Veselí nad Moravou, 73 m2 - [10.11. 2025]Nabízíme prodej investičního bytu 3+1 s lodžií na sídlišti Hutník ve Veselí nad Moravou. Byt se nachází v 1.patře bez výtahu, je v původním stavu, ale není třeba žádných dalších investic, v bytě zůstane bydlet současný majitel a bude platit tržní náj ...
3 350 000 Kč
Hodonín
698 01
698 01
583 x
Označit špatný inzerát Chybnou kategorii Ohodnotit uživatele Smazat/Upravit/Topovat
Prodej bytu 2+kk ve Veselí nad Moravou, 50 m2 - [7.11. 2025]Nabízíme prodej zrekonstruovaného bytu 2+kk ve Veselí nad Moravou v ulici Nová, ve druhém podlaží cihlového domu. Interiér je laděn do moderního stylu včetně koupelny s rohovou vanou. Nové jsou také elektroinstalace, rozvody vody a odpadu. Kuchyňská ...
3 350 000 Kč
Hodonín
698 01
698 01
455 x
Označit špatný inzerát Chybnou kategorii Ohodnotit uživatele Smazat/Upravit/Topovat