Pronájem velkorysého prostoru v OC Praděd, Šumperk
- [15.12. 2025]Smazat/ Upravit/ Topovat




















Pokud hledáte vhodný prostor, který by mohl sloužit k realizaci vašeho podnikatelského záměru, tak právě pro vás máme zajímavou nabídku pronájmu víceúčelového nebytového prostoru, který se nachází v retailovém areálu „OC Praděd“(dříve obchodní centrum„KORZO“), který se nachází v samotném centru Šumperka na ulici M.R.Štefánika, tudíž je hojně navštěvovaným místem nejen pro zdejší obyvatele.
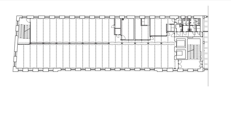
V současné době se areál postupně přeměňuje na moderní víceúčelový objekt, který vám nabídne dostatek obchodních, kancelářských prostor nebo zázemí pro nové ordinace lékařů, ale možná i vizionáře pro zcela jiný projekt. V nabídce nově nabízíme dlouhodobý pronájem prostoru s velkorysou výměrou 632m2, který je umístěný ve 3.NP obchodního centra s výtahem. Stávající sociální zázemí je k dispozici. Po dohodě je možné provést stavební úpravy nájemcem a náklady zohlednit v ceně nájmu (fotografie jsou vizualizace, jak by mohla vypadat vaše nová ordinace se zázemím).
Prostor lze také využít jako showroom se skladem nebo samostatný obchodní prostor. Flexibilita v dělení prostoru umožňuje přizpůsobení potřebám různým obchodním konceptům se široký potenciálem využití.
Prostory jsou volné od 1.1.2025, prohlídky po předchozí dohodě. Benefitem tohoto nebytového prostoru je bezesporu již zmíněná poloha v centru města. Možnost parkování za objektem. Jestliže k Vašemu podnikání potřebujete podobné zázemí, můžete se i vy stát součástí tohoto obchodního centra PRADĚD.
Nájemné: 60.000Kč/měsíc + energie
V současné době se areál postupně přeměňuje na moderní víceúčelový objekt, který vám nabídne dostatek obchodních, kancelářských prostor nebo zázemí pro nové ordinace lékařů, ale možná i vizionáře pro zcela jiný projekt. V nabídce nově nabízíme dlouhodobý pronájem prostoru s velkorysou výměrou 632m2, který je umístěný ve 3.NP obchodního centra s výtahem. Stávající sociální zázemí je k dispozici. Po dohodě je možné provést stavební úpravy nájemcem a náklady zohlednit v ceně nájmu (fotografie jsou vizualizace, jak by mohla vypadat vaše nová ordinace se zázemím).
Prostor lze také využít jako showroom se skladem nebo samostatný obchodní prostor. Flexibilita v dělení prostoru umožňuje přizpůsobení potřebám různým obchodním konceptům se široký potenciálem využití.
Prostory jsou volné od 1.1.2025, prohlídky po předchozí dohodě. Benefitem tohoto nebytového prostoru je bezesporu již zmíněná poloha v centru města. Možnost parkování za objektem. Jestliže k Vašemu podnikání potřebujete podobné zázemí, můžete se i vy stát součástí tohoto obchodního centra PRADĚD.
Nájemné: 60.000Kč/měsíc + energie
|
| |||||||||||||||||||||||||||||||
Kontaktovat inzerenta emailem
Kontaktovat emailem může pouze ověřený uživatel.
Ověření je zdarma.
Vaše telefonní číslo *
Kontaktovat emailem může pouze ověřený uživatel.
Ověření je zdarma.
Vaše telefonní číslo *