Prodej bytu 2+kk, 52 m², Uherský Brod
- [15.12. 2025]Smazat/ Upravit/ Topovat

























Naše společnost Vám zprostředkuje koupi bytu v osobním vlastnictví, lokalita Uherský Brod – ulice Horní Valy.
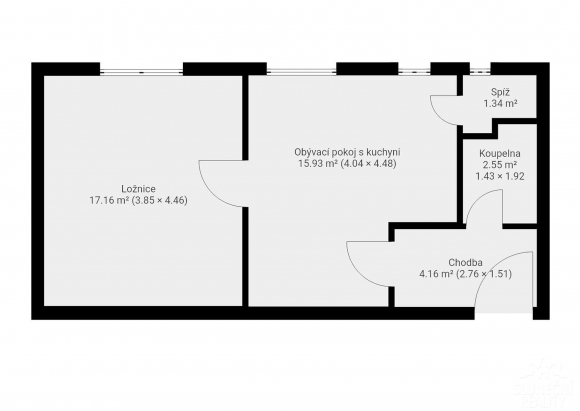
Byt, o dispozici 2+kk a podlahovou plochou 52 m², se nachází v 1.NP domu o celkových 4.NP.
Dům je cihlový z roku 1960.
Byt je určen k rekonstrukci, a jedná se tak o ideální příležitost pro ty, kteří si chtějí zrekonstruovat bydlení přesně podle svých představ.
Součástí bytu je i velký zděný sklep (cca 9 m2).
Dálkové vytápění, na podlahách lino. Okna dřevěná Eurookna, stáří cca 10 let.
Celkové měsíční náklady na byt jsou cca 6.000,- Kč/měsíc.
Dům se nachází v docházkové vzdálenosti centra města. V těsné blízkosti knihovny, zámku a parku Tyršových sadů, do 5 min chůze je také poliklinika a základní škola.
Za domem je dětské hřiště a hřiště na malou kopanou.
Pro více informací a prohlídky volejte makléře!
Byt, o dispozici 2+kk a podlahovou plochou 52 m², se nachází v 1.NP domu o celkových 4.NP.
Dům je cihlový z roku 1960.
Byt je určen k rekonstrukci, a jedná se tak o ideální příležitost pro ty, kteří si chtějí zrekonstruovat bydlení přesně podle svých představ.
Součástí bytu je i velký zděný sklep (cca 9 m2).
Dálkové vytápění, na podlahách lino. Okna dřevěná Eurookna, stáří cca 10 let.
Celkové měsíční náklady na byt jsou cca 6.000,- Kč/měsíc.
Dům se nachází v docházkové vzdálenosti centra města. V těsné blízkosti knihovny, zámku a parku Tyršových sadů, do 5 min chůze je také poliklinika a základní škola.
Za domem je dětské hřiště a hřiště na malou kopanou.
Pro více informací a prohlídky volejte makléře!
|
| |||||||||||||||||||||||||||||||
Kontaktovat inzerenta emailem
Kontaktovat emailem může pouze ověřený uživatel.
Ověření je zdarma.
Vaše telefonní číslo *
Kontaktovat emailem může pouze ověřený uživatel.
Ověření je zdarma.
Vaše telefonní číslo *
Podobné inzeráty
PRODEJ BYTU 3+1 DRUŽSTEVNÍ, UHERSKÝ BROD - TOP - [5.2. 2026]Nabízíme k prodeji krásný byt 3+1 po kompletní rekonstrukci v žádané lokalitě v Uherském Brodě.
Popis bytu:
Rozloha 72 m2, v posledním 4. patře.
K bytu náleží balkon s úžasným výhledem do zeleně a sklep.
Byt je po kompletní rekonstrukci:
- ...
4 990 000 Kč
Uherské Hradiště
688 01
688 01
75 x
Označit špatný inzerát Chybnou kategorii Ohodnotit uživatele Smazat/Upravit/Topovat
BYTY na prodej – Uherský Brod - [5.2. 2026]Prodej nově zrekonstruovaných 6 zděných bytů
o výměře 66 m² až 71 m². Bytový dům je zateplený, nová fasáda, nová plastová okna, nová střecha, byty jsou po kompletní rekonstrukci. V přízemí domu se nachází ateliér 79 m² vhodný jako sídlo firmy i k by ...
4 275 000 Kč
Uherské Hradiště
688 01
688 01
86 x
Označit špatný inzerát Chybnou kategorii Ohodnotit uživatele Smazat/Upravit/Topovat
Byt 1+1 BOJKOVICE - [4.2. 2026]Prodej prostorného bytu s dispozicí 1+1 v klidné části města. Byt disponuje samostatnou kuchyní, prostorným pokojem s balkonem, koupelnou a WC. Bytová jednotka je v původním stavu, nachází se v panelovém bytovém domě bez výtahu ve 4. NP. Pohodlné par ...
2 390 000 Kč
Uherské Hradiště
688 01
688 01
118 x
Označit špatný inzerát Chybnou kategorii Ohodnotit uživatele Smazat/Upravit/Topovat
Prodej bytu 3+1, 74 m², Uherský Brod, ul. Rolnická - [4.2. 2026]Nabízíme k prodeji byt 3+1 o užitné ploše 74 m² v klidné části Uherského Brodu, na ulici Rolnická. Byt se nachází ve zděné budově s pouhými dvěma byty na patře, což zajišťuje příjemné soukromí a minimální ruch. Velkou výhodou je vlastní kotelna umíst ...
4 600 000 Kč
Uherské Hradiště
688 01
688 01
94 x
Označit špatný inzerát Chybnou kategorii Ohodnotit uživatele Smazat/Upravit/Topovat
3+1 po kompletní rekonstrukci - pěkná a klidná lokalita U... - [23.1. 2026]Bytová jednotka 3+1 je situována ve velmi pěkném a klidném prostředí Uherského Brodu s pěkným výhledem a současně blízko centra města s veškerou potřebnou infrastrukturou k dispozici. Byt prošel rozsáhlou, nákladnou a kompletní rekonstrukcí, kdy se b ...
4 360 000 Kč
Uherské Hradiště
688 01
688 01
442 x
Označit špatný inzerát Chybnou kategorii Ohodnotit uživatele Smazat/Upravit/Topovat
3+kk v Uh.Brodě se zahrádkou, lodžií, parkováním a sklepem - [21.1. 2026]Pokud zvažuješ jestli pořídit dům, nebo byt, tak pro tebe máme řešení:
výhody bytu : údržba, úklid, nízké náklady na provoz, ovšem s možnostmi
rodinného domu a to: parkovací místo, oplocená zahrádka se zelení, pergolu s posezením a grilem,
přípa ...
5 290 000 Kč
Uherské Hradiště
688 01
688 01
598 x
Označit špatný inzerát Chybnou kategorii Ohodnotit uživatele Smazat/Upravit/Topovat
Prodej bytu 2+kk, 46 m², Uherský Brod, ul. Horní Valy - [21.1. 2026]Nabízíme k prodeji byt 2+kk v centru Uherského Brodu o užitné ploše 46,2 m². Byt se skládá z kuchyně, pokoje, koupelny s WC, komory, předsíně a sklepa o výměře 8 m². Vytápění je řešeno radiátory s dálkovým rozvodem tepla.
Nachází se ve 3. NP z celke ...
2 915 000 Kč
Uherské Hradiště
688 01
688 01
362 x
Označit špatný inzerát Chybnou kategorii Ohodnotit uživatele Smazat/Upravit/Topovat
PRODEJ BYTU 3+1 UHERSKÝ BROD, MOČIDLA - [19.1. 2026]Obec: Uherský Brod
Ulice: Močidla
Dispozice: 3+1
Užitná plocha: 66 m2
Patro: 1
Topení a ohřev TV: Centrální
Výtah: Ne
Sklepní koje: Ano
Bytové jádro: Původní
Zařízení: viz Foto
Lodžie: Ano
Okna: Plastová
Stav: k celkové rekonstrukci
Vo ...
3 950 000 Kč
Uherské Hradiště
688 01
688 01
377 x
Označit špatný inzerát Chybnou kategorii Ohodnotit uživatele Smazat/Upravit/Topovat
Uherský Brod, byt 3+1, 67 m², dva sklepy, komora - byt - [10.12. 2025]Ev.č. E2363B020
Ve výhradním zastoupení vám nabízíme jedinečnou příležitost ke koupi bytu o dispozici 3+1 v osobním vlastnictví, v klidné a žádané lokalitě města Uherský Brod. Užitná plocha bytu činí přibližně 67 m2.
Jednotka se nachází ve druhém ...
4 192 605 Kč
Uherské Hradiště
688 01
688 01
904 x
Označit špatný inzerát Chybnou kategorii Ohodnotit uživatele Smazat/Upravit/Topovat




