Pronájem bytu 2+1, Krupná, Komořany, 55 m2
- [15.12. 2025]Smazat/ Upravit/ Topovat

























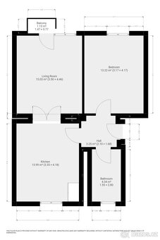
K dlouhodobému podnájmu Vám nabízíme byt o dispozici 2+1 a podlahové ploše 55m2 s balkonem a samostatnou sklepní kójí.
Byt se nachází ve velmi klidné, přesto dobře dopravně dostupné lokalitě ve druhém patře udržovaného cihlového domu v pražských Komořanech.
Byt se skládá z centrální, vstupní chodby, dětského pokoje, ložnice se vstupem na balkon a kuchyně.
Koupelna je společná s toaletou.
Nabízí se vybavený tak, jak vidíte na fotografií.
K bytu je možné využívat samostatnou sklepní kóji.
V bezprostřední blízkosti domu se nachází obchod Billa, několik základních i mateřských škol, autobusová zastávka "Na Šabatce" je od domu necelých 200 metrů. Vlaková stanice "Praha - Komořany", ze které jste na Hlavním Nádraží za 20 minut je od domu vzdálena 500m.
Zálohové platby už obsahují zálohy na elektřinu a pojištění domácnosti.
Poznámka k ceně: vratná jistota, náklady na bydlení 5.000,-Kč poplatek za podnájem
ID nabídky: N5811
Byt se nachází ve velmi klidné, přesto dobře dopravně dostupné lokalitě ve druhém patře udržovaného cihlového domu v pražských Komořanech.
Byt se skládá z centrální, vstupní chodby, dětského pokoje, ložnice se vstupem na balkon a kuchyně.
Koupelna je společná s toaletou.
Nabízí se vybavený tak, jak vidíte na fotografií.
K bytu je možné využívat samostatnou sklepní kóji.
V bezprostřední blízkosti domu se nachází obchod Billa, několik základních i mateřských škol, autobusová zastávka "Na Šabatce" je od domu necelých 200 metrů. Vlaková stanice "Praha - Komořany", ze které jste na Hlavním Nádraží za 20 minut je od domu vzdálena 500m.
Zálohové platby už obsahují zálohy na elektřinu a pojištění domácnosti.
Poznámka k ceně: vratná jistota, náklady na bydlení 5.000,-Kč poplatek za podnájem
ID nabídky: N5811
|
| |||||||||||||||||||||||||||||||
Kontaktovat inzerenta emailem
Kontaktovat emailem může pouze ověřený uživatel.
Ověření je zdarma.
Vaše telefonní číslo *
Kontaktovat emailem může pouze ověřený uživatel.
Ověření je zdarma.
Vaše telefonní číslo *
Podobné inzeráty
Pronájem pokoje 16m2 - [22.12. 2025]Pronajmu středně velký pokoj o velikosti 16 m2 ve společné domácnosti rodinného domu 2+1. Pokoj je uzamykatelný, uzavíratelný plně vybavený se 140 cm postelí. K užívání je samozřejmě koupelna s vanou odděleným záchodem a společnou kuchyní s jednou pa ...
10 000 Kč
Praha 4
143 00
143 00
70 x
Označit špatný inzerát Chybnou kategorii Ohodnotit uživatele Smazat/Upravit/Topovat
Moderní byt v srdci Modřan 3kk, 75m2 - [19.12. 2025]Proč právě tento byt
* Plně vybavený byt stačí se nastěhovat
* Bez nutnosti pořizovat nábytek a spotřebiče
* Žádné starosti s opravami, SVJ ani budoucími rekonstrukcemi
* Vhodné pro náročné nájemníky hledající dlouhodobý komfort
Vybaven ...
35 000 Kč
Praha 4
143 00
143 00
95 x
Označit špatný inzerát Chybnou kategorii Ohodnotit uživatele Smazat/Upravit/Topovat
Pronájem bytu 1+kk v Praze, ul. Platónova - [16.12. 2025]Pronájem bytu 1+kk s komorou | po kompletní rekonstrukci | klidná lokalita
Našim klientům nabízíme ve výhradním zastoupení byt k pronájmu dispozičně řešený jako 1+kk s komorou, který prošel kompletní rekonstrukcí. Byt má novou koupelnu, nové elektri ...
15 780 Kč
Praha 4
143 00
143 00
197 x
Označit špatný inzerát Chybnou kategorii Ohodnotit uživatele Smazat/Upravit/Topovat
Pronájem byty 2+kk, 70 m² - Praha - Modřany, ev.č. N08645 - [15.12. 2025]Ev.č. N08645
Volný od 1/2/2026. Ve výhradním zastoupení majitele vám nabízíme zcela nový byt 2+kk o celkové ploše 57m2 s lodžií o celkové ploše 13m2 situovaný ve 4.podlaží novostavby z roku 2024 v Praze 4 - Hodkovičky, ul. Mezi vodami č.or.37.
Vel ...
27 900 Kč
Praha 4
143 00
143 00
163 x
Označit špatný inzerát Chybnou kategorii Ohodnotit uživatele Smazat/Upravit/Topovat
Pronájem bytu 2+kk, Daškova, Modřany - [15.12. 2025]K dlouhodobému podnájmu Vám nabízíme krásný, zcela zařízený, moderní byt o dispozici 2+kk, 41m2 se sklepní kójí.
Byt se nachází ve 4.NP panelového domu s výtahem. Prošel kompletní, velmi zdařilou rekonstrukcí. Skládá se ze vstupní chodby zařízené v ...
20 900 Kč
Praha 4
143 00
143 00
104 x
Označit špatný inzerát Chybnou kategorii Ohodnotit uživatele Smazat/Upravit/Topovat
Pronájem bytu 2+kk v Praze, ul. Kolmanova - [12.12. 2025]Máme pro Vás moderní a chytře situovaný byt v Modřanském cukrovaru. Jedná se o nový projekt společnosti Skanska, který vám může nabídnout vše, co čekáte od moderního bydlení včetně parkovacího stání v garáži.
Byt se skládá ze vzdušného obývacího po ...
25 290 Kč
Praha 4
143 00
143 00
104 x
Označit špatný inzerát Chybnou kategorii Ohodnotit uživatele Smazat/Upravit/Topovat
Levné retro bydlení v Praze - [3.12. 2025]Pronajmu ubytování 1+0 v zahradním domečku či zahradní chatce za 15tis za měsíc. Vhodné pro jednu osobu, max dvě osoby v nouzi. Plocha 12-16m2.
Bydlení je se zahradou v zástavbě rodinných domů na adrese Nečova 14 a Nečova 16.
Pronajmu rodinný dům 2 ...
13 000 Kč
Praha 4
143 00
143 00
304 x
Označit špatný inzerát Chybnou kategorii Ohodnotit uživatele Smazat/Upravit/Topovat
4+1 s balkonem a zahradou v Komořanech - [26.11. 2025]Vhodné i pro cizince - policejní přihlášení možné. Nabízíme Vám světlý moderní byt 4+1, 83 m2, ve 2. patře bytového viladomu obklopeného nádhernou prostornou zahradou se vzrostlými stromy a zelení. Z domu vstup na zahradu. Byt má k dispozici dvě lož ...
34 000 Kč
Praha 4
143 00
143 00
265 x
Označit špatný inzerát Chybnou kategorii Ohodnotit uživatele Smazat/Upravit/Topovat
Pronájem byt 2+kk, 70㎡ - [5.11. 2025]Pronájem útulného bytu 2+kk s terasou, 70 m2, garážové stání, Praha – Modřany, ulice Mezi Vodami. Byt se nachází ve čtvrtém patře novostavby s výtahem. Interiér má plochu 55 m2 + terasa 15 m2 a skládá se z prostorného obývacího pokoje s kuchyňským ko ...
32 000 Kč
Praha 4
143 00
143 00
297 x
Označit špatný inzerát Chybnou kategorii Ohodnotit uživatele Smazat/Upravit/Topovat




