Moderní 2+kk s balkonem a garáží – Rychtáře Petříka, u tramv
- [17.12. 2025]Smazat/ Upravit/ Topovat


















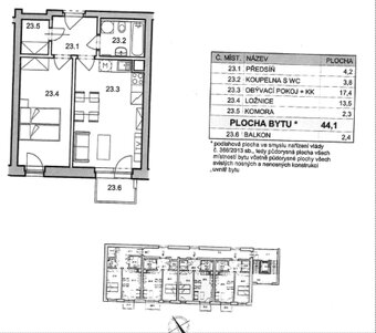
Hledáte moderní bydlení se skvělou dostupností do centra? Nabízíme k pronájmu slunný byt 2+kk o ploše 44 m² s balkonem v žádané lokalitě Praha 15 – Hostivař, v ulici Rychtáře Petříka. Byt se nachází jen pár minut chůze od zastávky Na Groši, odkud vás tramvaje 22 a 26 dovezou pohodlně až do centra města.
POPIS BYTU: Byt je situován ve 6. patře moderního cihlového domu s výtahem. Interiér je světlý a prakticky řešený.
Dispozice: Obývací pokoj s kuchyňským koutem, ložnice, vstupní hala a koupelna s vanou.
Vychytávky: Přímo v bytě je praktická komora (skvělý úložný prostor). Z obýváku vstoupíte na balkon s výhledem do klidné zástavby.
Vybavení: Byt se pronajímá jako nevybavený nábytkem, připravený pro váš vlastní styl. K dispozici je moderní kuchyňská linka se spotřebiči (varná deska, trouba, digestoř, lednice).
Technické zázemí: Koupelna s vanou a přípravou na pračku (pračka není součástí, nutno dodat vlastní).
LOKALITA A DOPRAVA (Na Groši): Ulice Rychtáře Petříka nabízí klidné bydlení s perfektním napojením na město.
MHD: Zastávka Na Groši (tram i bus). Přímé spojení na Metro A (Strašnická/Skalka), Metro C (Opatov) a tramvají do centra (I.P. Pavlova, Karlovo náměstí).
Autem: Rychlý nájezd na Jižní spojku a Štěrboholskou radiálu. K bytu náleží garážové stání v suterénu (již v ceně).
Služby: V okolí Lidl, OC VIVO! Hostivař (kino, fitko, obchody), restaurace. Hostivařský lesopark pro relaxaci je rovněž v pěším dosahu.
PODMÍNKY NÁJMU:
Nájemné: 20 000 Kč / měsíc
Zálohy na služby: 3 500 Kč / měsíc (teplo, voda, odpad, spol. prostory) + elektřina převodem na nájemce.
Kauce: 30 000 Kč
Dostupnost: Volný od 1. 2. 2025.
PROHLÍDKY: Prohlídkový den se koná v stredu 7. 1. 2026. Pro rezervaci času mě neváhejte kontaktovat. Jsem přímý majitel, neplatíte provizi, zprostředkovatelé prosím nevolat.
POPIS BYTU: Byt je situován ve 6. patře moderního cihlového domu s výtahem. Interiér je světlý a prakticky řešený.
Dispozice: Obývací pokoj s kuchyňským koutem, ložnice, vstupní hala a koupelna s vanou.
Vychytávky: Přímo v bytě je praktická komora (skvělý úložný prostor). Z obýváku vstoupíte na balkon s výhledem do klidné zástavby.
Vybavení: Byt se pronajímá jako nevybavený nábytkem, připravený pro váš vlastní styl. K dispozici je moderní kuchyňská linka se spotřebiči (varná deska, trouba, digestoř, lednice).
Technické zázemí: Koupelna s vanou a přípravou na pračku (pračka není součástí, nutno dodat vlastní).
LOKALITA A DOPRAVA (Na Groši): Ulice Rychtáře Petříka nabízí klidné bydlení s perfektním napojením na město.
MHD: Zastávka Na Groši (tram i bus). Přímé spojení na Metro A (Strašnická/Skalka), Metro C (Opatov) a tramvají do centra (I.P. Pavlova, Karlovo náměstí).
Autem: Rychlý nájezd na Jižní spojku a Štěrboholskou radiálu. K bytu náleží garážové stání v suterénu (již v ceně).
Služby: V okolí Lidl, OC VIVO! Hostivař (kino, fitko, obchody), restaurace. Hostivařský lesopark pro relaxaci je rovněž v pěším dosahu.
PODMÍNKY NÁJMU:
Nájemné: 20 000 Kč / měsíc
Zálohy na služby: 3 500 Kč / měsíc (teplo, voda, odpad, spol. prostory) + elektřina převodem na nájemce.
Kauce: 30 000 Kč
Dostupnost: Volný od 1. 2. 2025.
PROHLÍDKY: Prohlídkový den se koná v stredu 7. 1. 2026. Pro rezervaci času mě neváhejte kontaktovat. Jsem přímý majitel, neplatíte provizi, zprostředkovatelé prosím nevolat.
|
| |||||||||||||||||||||||||||||||
Kontaktovat inzerenta emailem
Kontaktovat emailem může pouze ověřený uživatel.
Ověření je zdarma.
Vaše telefonní číslo *
Kontaktovat emailem může pouze ověřený uživatel.
Ověření je zdarma.
Vaše telefonní číslo *