Stavební pozemek ve Vadkovicích u Nechranické přehrady
- [18.12. 2025]Smazat/ Upravit/ Topovat


























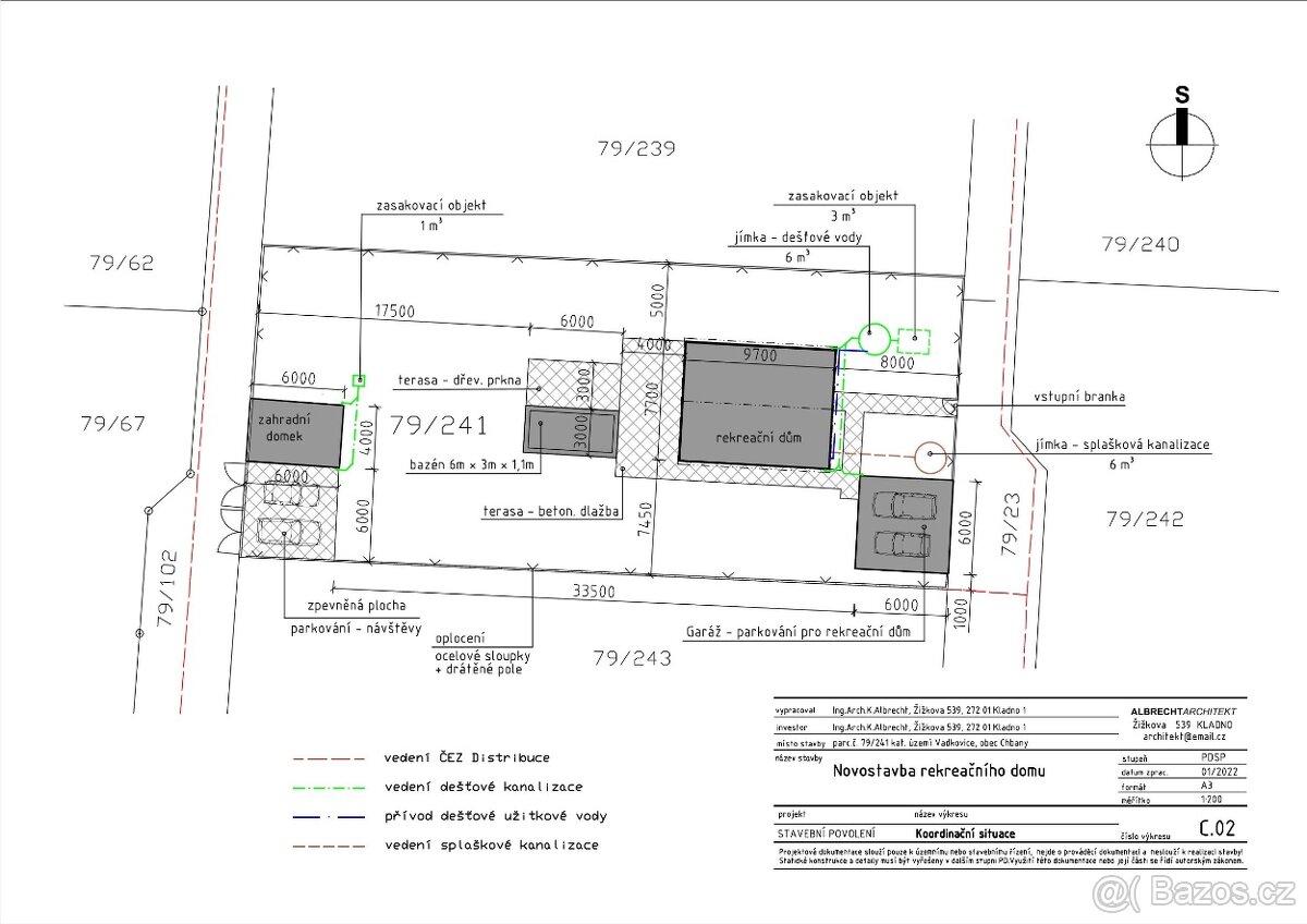
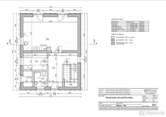
Exkluzivně nabízíme k prodeji stavební pozemek ve vyhledávané lokalitě, v blízkosti Nechranické přehrady, určený ke stavbě pro rodinnou rekreaci. Pozemek je zasíťovaný elektřinou, na hranici pozemku se vyústění vody, je možné vybudovat vodovodní šachtu. Pozemek je rovinatý s výměrou 915 m2, prodej je včetně 1/39 podílu na příjezdové cestě. Na tomto pozemku je vyřízené platné stavební povolení pro celoroční rekreační objekt, viz. foto a zpracovaný projekt pro stavbu je v ceně pozemku.
V okolní zástavbě jsou rekreační chaty a chaty k celoročnímu využití. Klidné místo s dojezdovou vzdáleností do města do 15 km. Bližší informace po telefonu.
V okolní zástavbě jsou rekreační chaty a chaty k celoročnímu využití. Klidné místo s dojezdovou vzdáleností do města do 15 km. Bližší informace po telefonu.
|
| |||||||||||||||||||||||||||||||
Kontaktovat inzerenta emailem
Kontaktovat emailem může pouze ověřený uživatel.
Ověření je zdarma.
Vaše telefonní číslo *
Kontaktovat emailem může pouze ověřený uživatel.
Ověření je zdarma.
Vaše telefonní číslo *





