Prodej bytu 2+1 56 m² ve Frymburku
- [19.12. 2025]Smazat/ Upravit/ Topovat




























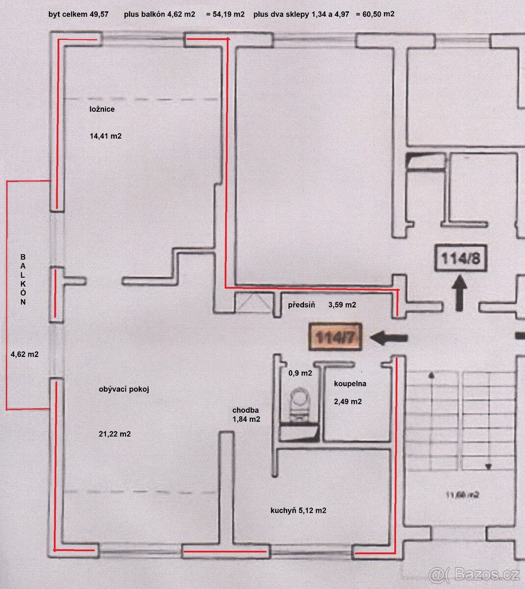
Nabízíme k prodeji atraktivní byt 2+1 v klidné lokalitě Frymburku s výhledem na Lipenské jezero z balkónu. Byt o velikosti 56 m² se nachází ve 3. podlaží cihlového domu a to jsme nepočítali již dříve zmíněný balkón o ploše 5 m². Včetně balkónu tedy celkem 61 m². Vybavený byt je v dobrém stavu a ideální pro trvalé bydlení nebo rekreační účely. Tato nemovitost Vám po malé rekonstrukci jistě poskytne komfortní bydlení. Pohodlně zaparkujete před domem nebo nedaleko domu. Dispozičně je byt situován takto: po vstupu do předsíně uvidíte vlevo nejdříve dveře do koupelny a pak na WC. Následuje ihned volný vzdušný prostor, z něhož opět vlevo chodbou vstoupíte do prostorné kuchyně, která je orientována na východ. Obývací pokoj má víc než 21 m² a je z něj možné se dostat na balkón. Stejně jako z ložnice, která je orientována na západ. Místnosti si samozřejmě můžete změnit, dle svého uvážení. Dům byl v roce 2023 zateplen a také byla vyměněna okna. Nezmeškejte příležitost vlastnit tento pohodlný byt v oblíbené lokalitě nedalo náměstí, nedaleko od jezera a vlastně přímo u cyklostezky.
|
| |||||||||||||||||||||||||||||||
Kontaktovat inzerenta emailem
Kontaktovat emailem může pouze ověřený uživatel.
Ověření je zdarma.
Vaše telefonní číslo *
Kontaktovat emailem může pouze ověřený uživatel.
Ověření je zdarma.
Vaše telefonní číslo *







