Nový zateplený kontejner
- [24.12. 2025]Smazat/ Upravit/ Topovat








Prodám zcela nový kontejner vhodný jako zahradní domek, kancelář, sklad, dílna nebo stavební buňka.
Kontejner nebyl nikdy používán – je nový a připravený k okamžitému použití.
📐 Technické parametry:
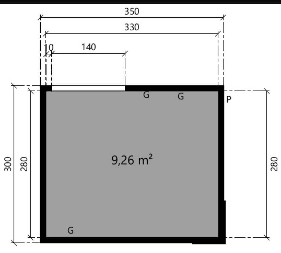
Užitná plocha: 9,26 m²
Výška vnitřního prostoru: 2 300 mm
Hmotnost: cca 1 200 kg
Konstrukce: ocelový rám, trapézový plech
Zateplení (stěny/podlaha/strop): 100 / 80 / 100 mm – URSA GEO DP38
Podlaha: cementotřísková deska 20 mm + PVC krytina Fatra DOMO, šedá
Elektroinstalace: zásuvky, LED osvětlení, jističe, rozvaděč IP40
Dveře: ocelové, uzamykatelné, lakované
Barva: antracit RAL 7016
Stav: nový, nepoužitý
Dopravu zajistím
Kontejner nebyl nikdy používán – je nový a připravený k okamžitému použití.
📐 Technické parametry:
Užitná plocha: 9,26 m²
Výška vnitřního prostoru: 2 300 mm
Hmotnost: cca 1 200 kg
Konstrukce: ocelový rám, trapézový plech
Zateplení (stěny/podlaha/strop): 100 / 80 / 100 mm – URSA GEO DP38
Podlaha: cementotřísková deska 20 mm + PVC krytina Fatra DOMO, šedá
Elektroinstalace: zásuvky, LED osvětlení, jističe, rozvaděč IP40
Dveře: ocelové, uzamykatelné, lakované
Barva: antracit RAL 7016
Stav: nový, nepoužitý
Dopravu zajistím
|
| |||||||||||||||||||||||||||||||
Kontaktovat inzerenta emailem
Kontaktovat emailem může pouze ověřený uživatel.
Ověření je zdarma.
Vaše telefonní číslo *
Kontaktovat emailem může pouze ověřený uživatel.
Ověření je zdarma.
Vaše telefonní číslo *