Lysá nad Labem, prodej RD 2+1, 78 m2 na pozemku 110 m2, okr.
- [24.12. 2025]Smazat/ Upravit/ Topovat

























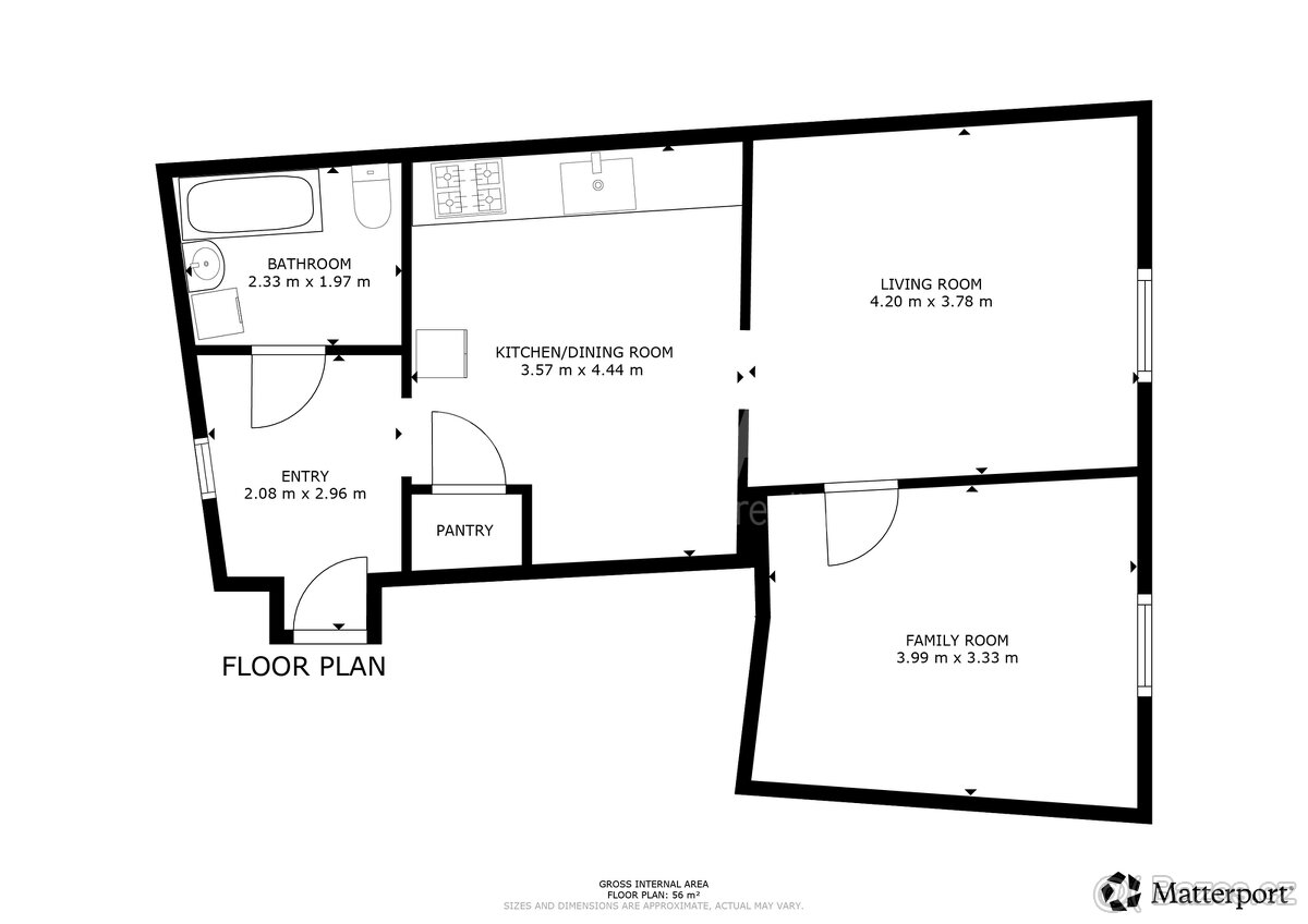
Nabízíme Vám k prodeji rodinný dům 2+1, 78 m2 na pozemku o celkové výměře 110 m2, v obci Lysá nad Labem, okr. Nymburk.
Rodinný dům je dispozičně řešen jako 2+1. Dispozice domu: vstupní chodba, koupelna s vanou a WC, kuchyň, komora, obývací pokoj, ložnice. Kuchyňská linka zůstane poté vybavena plynovým sporákem a odsávačem par.
V domě je možné využít i půdu, nyní jako úložný prostor, případně pro vybudování dalších obytných místností. Podlahové krytiny: koberec a dlažba. Ohřev teplé vody zajišťuje bojler. K dispozici je dvorek s krytým sezením a krbem.
V obci je veškerá občanské vybavenost, s výbornou dopravní dostupností - vlakové nádraží je vzdálené 1,2 km od domu. Dálnice D10 a D11 v dojezdu na okraj Prahy, cca 20 minut.
V docházkové vzdálenosti od domu se nachází náměstí, historické centrum se zámkem, zámeckým parkem a kostelem sv. Jana Křtitele.
PENB nebyl dosud doložen.
ev.č.: 4107
Cena je uvedena včetně právních služeb a advokátní úschovy peněz.
třída energetické náročnosti budovy: G - Mimořádně nehospodárná
dle vyhlášky č.264/2020 Sb.
poloha objektu: Samostatný
druh objektu: Smíšená
stav objektu: Dobrý
umístění objektu: Okraj obce
typ domu: Patrový
velikost: 3 pokoje
zastavěná plocha (m2): 78
užitná plocha (m2): 78
plocha parcely (m2): 110
počet podlaží objektu: 2
Rodinný dům je dispozičně řešen jako 2+1. Dispozice domu: vstupní chodba, koupelna s vanou a WC, kuchyň, komora, obývací pokoj, ložnice. Kuchyňská linka zůstane poté vybavena plynovým sporákem a odsávačem par.
V domě je možné využít i půdu, nyní jako úložný prostor, případně pro vybudování dalších obytných místností. Podlahové krytiny: koberec a dlažba. Ohřev teplé vody zajišťuje bojler. K dispozici je dvorek s krytým sezením a krbem.
V obci je veškerá občanské vybavenost, s výbornou dopravní dostupností - vlakové nádraží je vzdálené 1,2 km od domu. Dálnice D10 a D11 v dojezdu na okraj Prahy, cca 20 minut.
V docházkové vzdálenosti od domu se nachází náměstí, historické centrum se zámkem, zámeckým parkem a kostelem sv. Jana Křtitele.
PENB nebyl dosud doložen.
ev.č.: 4107
Cena je uvedena včetně právních služeb a advokátní úschovy peněz.
třída energetické náročnosti budovy: G - Mimořádně nehospodárná
dle vyhlášky č.264/2020 Sb.
poloha objektu: Samostatný
druh objektu: Smíšená
stav objektu: Dobrý
umístění objektu: Okraj obce
typ domu: Patrový
velikost: 3 pokoje
zastavěná plocha (m2): 78
užitná plocha (m2): 78
plocha parcely (m2): 110
počet podlaží objektu: 2
|
| |||||||||||||||||||||||||||||||
Kontaktovat inzerenta emailem
Kontaktovat emailem může pouze ověřený uživatel.
Ověření je zdarma.
Vaše telefonní číslo *
Kontaktovat emailem může pouze ověřený uživatel.
Ověření je zdarma.
Vaše telefonní číslo *




