Vracov, prodej bytové jednotky na klíč, 3+kk
- [28.12. 2025]Smazat/ Upravit/ Topovat
























Nabízíme Vám novou nemovitost na prodej.
Jedná se výstavbu přízemních bytové jednotky na klíč.
Byt se nachází ve Vracově, leží v rovinaté krajině mezi Strážnicí a Kyjovem v okrese Hodonín v Jihomoravském kraji, ležící osm kilometrů jihovýchodně od Kyjova, ve vinařské oblasti Slovácka.
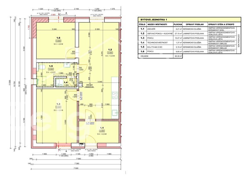
Tento byt vystavený z materiálů cihel a ytongu, mají dispozici 3+kk a celkovou plochu 65 m2. K nemovitosti se vyřizuje i pozemek vhodný k výstavbě pergoly či posezení.
Jelikož se jedná o bytový dům tak bude nový majitel vlastnit podíl na budově samotné.
Rozložení a dispozice nemovitosti jsou popsány ve vizualizacích a půdorysech:
Byt sestává ze vstupní chodby, ze které je vstup do obývacího pokoje s kuchyňským koutem, koupelny se sprchovým koutem a wc, technické místnosti a 2 prostorných pokojů situovaných jako ložnice.
Konkrétnější představu a inspiraci pro vybavení nemovitosti lze získat z vizualizací.
Energetická náročnost budovy je v kategorii D.
Byt je možné doupravit podle představ klienta, stejně tak i úprava pozemku na míru.
K bytu náleží i dostatek prostoru k zaparkování i 4 aut.
Byt je k nastěhování od 1.1.2026.
Byt se nachází v klidné lokalitě s dobrou dostupností, veřejnou příměstskou dopravou a blízkostí veškeré občanské vybavenosti jako jsou restaurace, školka i škola, kulturní zařízení a obecní úřad.
S financováním Vám rádi pomůžeme.
Pro více informací či domluvení schůzky nás kontaktujte.
★ Operace: Prodej
★ Typ nemovitosti: Byt
★ Okres: Hodonín
★ Adresa: Vracov, Vracov
★ Podlaží: 1
★ Celkem podlaží: 1
★ Plocha podlahová: 65 m2
★ Plocha užitná: 65 m2
★ Druh objektu: Smíšená
★ Vybavení: Venkovní stání
★ Stav objektu: Novostavba
★ Dostupnost: Příměstská doprava, Silnice
★ Infrastruktura: Škola, Školka, Restaurace, Pošta, Obecní úřad, Lékař, Kulturní zařízení
★ Energetická náročnost budovy: D - Méne úsporná | podle vyhlášky 264/2020 Sb.
Jedná se výstavbu přízemních bytové jednotky na klíč.
Byt se nachází ve Vracově, leží v rovinaté krajině mezi Strážnicí a Kyjovem v okrese Hodonín v Jihomoravském kraji, ležící osm kilometrů jihovýchodně od Kyjova, ve vinařské oblasti Slovácka.
Tento byt vystavený z materiálů cihel a ytongu, mají dispozici 3+kk a celkovou plochu 65 m2. K nemovitosti se vyřizuje i pozemek vhodný k výstavbě pergoly či posezení.
Jelikož se jedná o bytový dům tak bude nový majitel vlastnit podíl na budově samotné.
Rozložení a dispozice nemovitosti jsou popsány ve vizualizacích a půdorysech:
Byt sestává ze vstupní chodby, ze které je vstup do obývacího pokoje s kuchyňským koutem, koupelny se sprchovým koutem a wc, technické místnosti a 2 prostorných pokojů situovaných jako ložnice.
Konkrétnější představu a inspiraci pro vybavení nemovitosti lze získat z vizualizací.
Energetická náročnost budovy je v kategorii D.
Byt je možné doupravit podle představ klienta, stejně tak i úprava pozemku na míru.
K bytu náleží i dostatek prostoru k zaparkování i 4 aut.
Byt je k nastěhování od 1.1.2026.
Byt se nachází v klidné lokalitě s dobrou dostupností, veřejnou příměstskou dopravou a blízkostí veškeré občanské vybavenosti jako jsou restaurace, školka i škola, kulturní zařízení a obecní úřad.
S financováním Vám rádi pomůžeme.
Pro více informací či domluvení schůzky nás kontaktujte.
★ Operace: Prodej
★ Typ nemovitosti: Byt
★ Okres: Hodonín
★ Adresa: Vracov, Vracov
★ Podlaží: 1
★ Celkem podlaží: 1
★ Plocha podlahová: 65 m2
★ Plocha užitná: 65 m2
★ Druh objektu: Smíšená
★ Vybavení: Venkovní stání
★ Stav objektu: Novostavba
★ Dostupnost: Příměstská doprava, Silnice
★ Infrastruktura: Škola, Školka, Restaurace, Pošta, Obecní úřad, Lékař, Kulturní zařízení
★ Energetická náročnost budovy: D - Méne úsporná | podle vyhlášky 264/2020 Sb.
|
| |||||||||||||||||||||||||||||||
Kontaktovat inzerenta emailem
Kontaktovat emailem může pouze ověřený uživatel.
Ověření je zdarma.
Vaše telefonní číslo *
Kontaktovat emailem může pouze ověřený uživatel.
Ověření je zdarma.
Vaše telefonní číslo *
Podobné inzeráty
Vracov, prodej 2 bytových jednotek na klíč, 2x3+kk - [7.11. 2025]Nabízíme Vám novou nemovitost na prodej.
Jedná se výstavbu dvou sousedících, přízemních bytových jednotek na klíč. Nemovitosti se prodávají dohromady.
Byty se nachází ve Vracově, leží v rovinaté krajině mezi Strážnicí a Kyjovem v okrese Hodonín v J ...
8 800 000 Kč
Hodonín
696 42
696 42
416 x
Označit špatný inzerát Chybnou kategorii Ohodnotit uživatele Smazat/Upravit/Topovat



