Pronájem komerční nemovitosti 800 m²
- [29.12. 2025]Smazat/ Upravit/ Topovat



























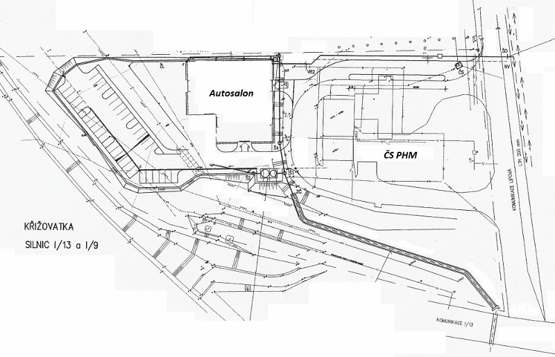
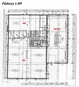
Nabízíme k pronájmu provozní areál v Novém Boru. Široké možnosti využití areálu, perfektní umístění na frekventované křižovatce. Dispozice: prodejní plocha (235m2), servisní hala (360m2), sklad (2 x 115m2), 5 x kancelář, soc. zařízení, sprchy pro zaměstnance, velké parkoviště (40 parkovacích míst + manipulační plochy). Pozemky 5.259m2, zastavěná plocha 800m2. Výborná poloha u komunikace 1. třídy, frekventovaná křižovatka Liberec, Děčín, Česká Lípa, Nový Bor (proudí tudy veškerá tranzitní doprava, areál ze silnice k nepřehlédnutí). Nájem 75.000,-Kč/měsíc + energie. Kauce 3x nájem.
|
| |||||||||||||||||||||||||||||||
Kontaktovat inzerenta emailem
Kontaktovat emailem může pouze ověřený uživatel.
Ověření je zdarma.
Vaše telefonní číslo *
Kontaktovat emailem může pouze ověřený uživatel.
Ověření je zdarma.
Vaše telefonní číslo *






