Prodej stavebního pozemku 1200 m2 Liberec
- [4.1. 2026]Smazat/ Upravit/ Topovat




















Včetně právního servisu., Prodej stavebního pozemku BO - bydlení všeobecné o velikosti 1200 m² pro stavbu rodinného domu se zastavitelnou plochou 10% dle ÚP. Pozemek v obci Liberec, katastrální území Vratislavice nad Nisou, ul. Za Tratí je svažitý se zarovnáním do rovných teras s krásným výhledem na západní stranu do údolí a v letním období celodenně prosluněným. Místem vás pozemek nadchne maximálním soukromím bez rušivých elementů sousedů. Budoucí vlastníci se mohou těšit na soukromí a unikátní umístění pozemku.
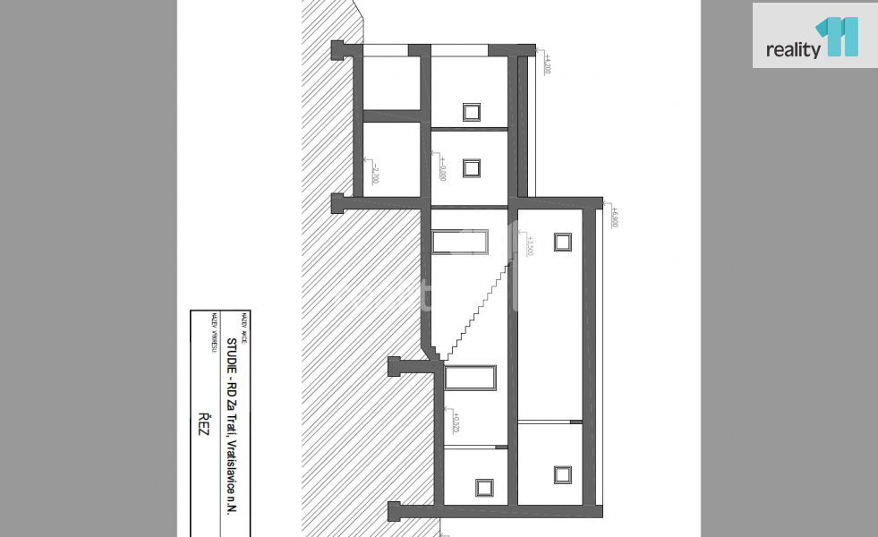
Na hranici pozemku elektřina, voda z řadu a plyn, kanalizace v ulici není, odpady řešit formou ČOV, jímka. Přístup k pozemku po obecní asfaltové komunikaci. Připravena studie pro stavbu moderního terasového rodinného domu s parkováním pro 2 vozy. Zájemce si však může připravit svou vizi nového bydlení. K pozemku je i přístup po nově asfaltové cestě ze strany od Rádla - Milíře. Tramvajová zastávka 2 minuty chůze od pozemku.
Více informací podá makléř Reality11 Liberecko. Ev. číslo: 27164.
Na hranici pozemku elektřina, voda z řadu a plyn, kanalizace v ulici není, odpady řešit formou ČOV, jímka. Přístup k pozemku po obecní asfaltové komunikaci. Připravena studie pro stavbu moderního terasového rodinného domu s parkováním pro 2 vozy. Zájemce si však může připravit svou vizi nového bydlení. K pozemku je i přístup po nově asfaltové cestě ze strany od Rádla - Milíře. Tramvajová zastávka 2 minuty chůze od pozemku.
Více informací podá makléř Reality11 Liberecko. Ev. číslo: 27164.
|
| |||||||||||||||||||||||||||||||
Kontaktovat inzerenta emailem
Kontaktovat emailem může pouze ověřený uživatel.
Ověření je zdarma.
Vaše telefonní číslo *
Kontaktovat emailem může pouze ověřený uživatel.
Ověření je zdarma.
Vaše telefonní číslo *